Tovární budova s barevnou historií
Dříve zkušebna barev a laků, dnes sídlo tískařské a grafické firmy. Budova s barevnou historií se nachází v té oblasti Vysočan, ve které v minulosti dominantně převládala výrobní funkce spojená s komplexem průmyslových areálů továren ČKD. Území ohraničené ulicemi Kolbenova a Poděbradská bylo po zániku ČKD definováno jako území rozvojové. Územní plán předpokládá zachování některých průmyslových objektů a jejich využití pro drobnou nerušící výrobu a funkce jiné než výrobní.
Martina Buřičová , 4. 5. 2017
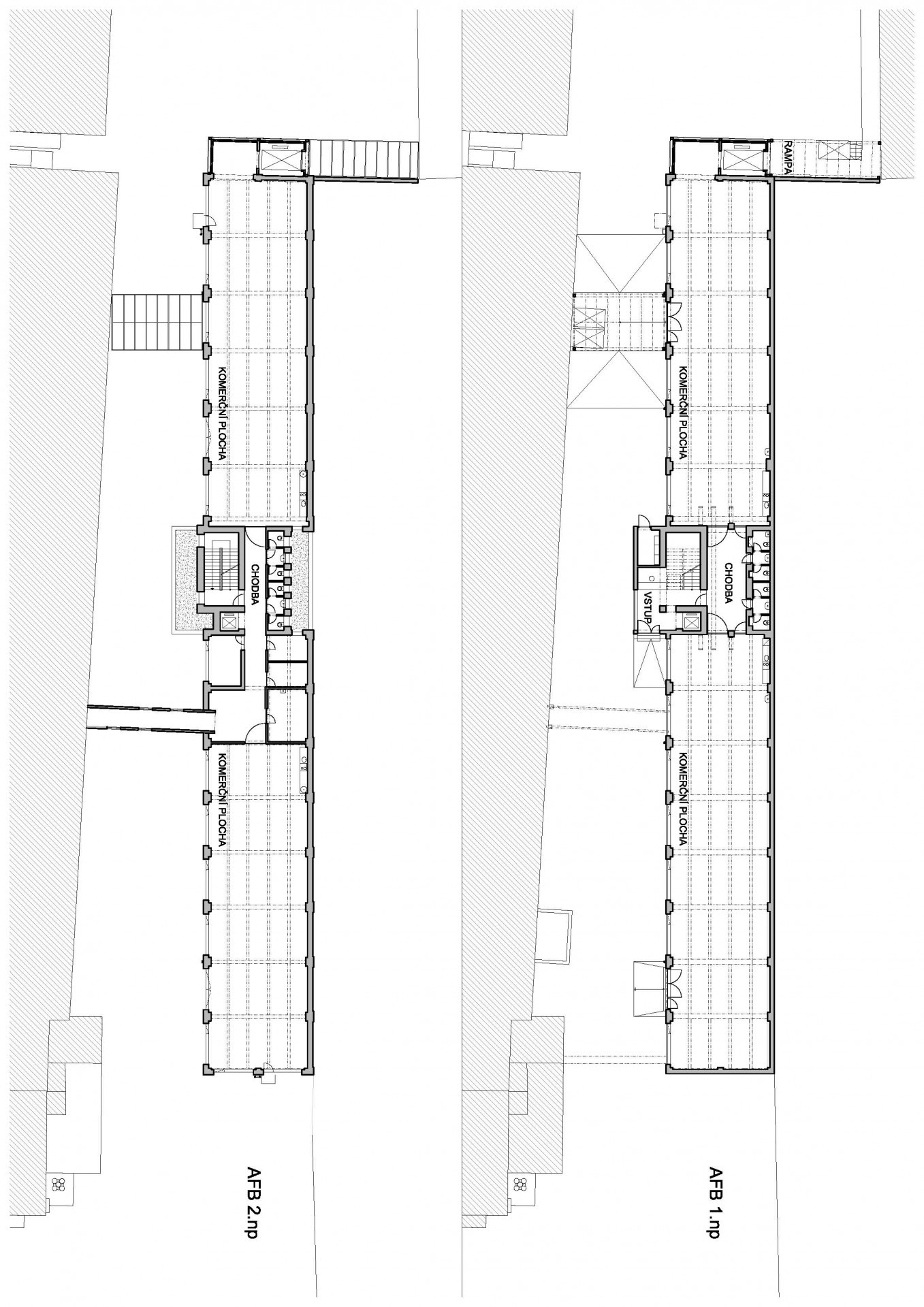
Areál společnosti AF BKK s.r.o. prochází postupnou komplexní renovací. V roce 2006 byla dokončena přestavba sousedního menšího objektu a celý areál je průběžně, za provozu, a dle potřeb tiskárny (majitele areálu) opravován. Tento projekt se zabývá rekonstrukcí největšího čtyřpodlažního objektu areálu, který tvoří jeho východní hranici. Opravený objekt bude sloužit k rozšíření provozu tiskárny AF BKK s.r.o. a případné zbytkové plochy lze pronajímat jako kanceláře, provozovny služeb, nebo provozovny drobné výrobny. Na objekt je navržena nástavba – reprezentativní dvoupodlažní ateliér sloužící pro potřeby majitele tiskárny (severní polovina) a terasa s příležitostným sportovištěm (jižní polovina). Cílem přestavby je vytvořit areál, který bude ve stávající stavební struktuře bývalých průmyslových staveb soustředit různé funkce administrativy, služeb, nerušící drobné výroby a svou výraznou architektonickou formou průmyslové zástavby bude připomínat původní genius loci lokality, která je zasažena změnou využití území po zániku výrobního provozu bývalého ČKD, zejména sousední předimenzovanou bytovou výstavbou vzniklou v posledních pěti letech.
Původní stav
Průmyslový objekt byl postaven roku 1934 firmou Weissberger a spol. a byl donedávna plně využíván - za socialismu jako sídlo Výzkumného ústavu barev a laků a poté firmou Lavis. Jedná se o čtyřpodlažní, nepodsklepený objekt, s dominantní nosnou konstrukcí železobetonového trámečkového skeletu a charakteristickými továrními tabulkovými okny. Dispozičně i tvarově jednoduchá, výrazově silná budova s centrálním schodištěm uprostřed severní a jižní haly. Jde o krásnou ukázku historické průmyslové architektury zdevastovanou socialistickým hospodařením.
Architektonické principy návrhu přestavby
Odhalit kvality stávajícího objektu, který považujeme za památku hodnou ochrany, jejíž hodnota stoupá s každou další demolicí podobného objektu. Pokora k průmyslové architektuře. Očištění a zdůraznění půvabu původní struktury, výrazu a podstaty budovy. Vybourání a odstranění veškerého dostavovaného nánosu a balastu přístaveb, dostaveb, technologií. Respektování tektoniky a řádu stávajícího železobetonového skeletu. Zvýšení únosnosti jednotlivých podlah, reprofilace a sanace nosné konstrukce. Zachování výrazu průmyslových oken použitím náročných kopií původních tabulkových oken s důrazem na současné tepelně technické požadavky a protisluneční ochranu interiéru. Důsledná, jasná a jednotná identifikace novotvaru – konstrukčně, materiálově a barevně kontrastní prvky střešní nástavby, přístavby výtahu a pláště spojovacího mostku. Dimenze nových ocelových konstrukcí odkazují na robustnost původního betonového skeletu. Černobílá barevnost povrchů se stříbrnými pozinkovanými doplňky a černými rámy nových konstrukcí.
Materiály a barevnost se v každém patře mění v závislosti na funkčním využití jednotlivých pater. Prostorový kontrast nízkého úzkého komunikačního jádra a vysokých prostorných prosvětlených hal. Velkorysé vertikální propojení ateliéru ve 4.NP s nástavbou v 5.NP. Dosažení variability prostoru v souvislosti s neustále se měnícími požadavky dynamické společnosti majitele. Vytvoření vhodného sociálního zázemí pro novou univerzální funkci objektu - sociální zařízení, kuchyňky, denní místnosti apod. Využití střechy objektu – terasa a venkovní sportovní hřiště. Technické zhodnocení objektu - zajištění technického vybavení budovy odpovídajícímu současným požadavkům – výtahy, topení, chlazení, vzduchotechnika, osvětlení, datové sítě apod.
Účel a funkce objektu
V minulosti byl objekt využíván jako výzkumná zkušebna barev a laků. Návrh předpokládá využití jednotlivých hal odlišně dle podlaží. Přízemí a první patro jsou propojeny nákladním výtahem a budou sloužit jako provozní prostory tiskárny – tiskařský provoz a knihárna. Druhé a třetí patro budou velkoplošné administrativní prostory stávající tiskárny a souvisejících činností např. grafického studia a reklamní agentury. Ateliér v severní polovině propojující třetí a čtvrté nastavené patro bude sloužit pro reprezentativní a společenské potřeby firmy jako výstavní a kongresový prostor a podobně. Jižní polovina střechy bude využívána jako terasa a příležitostné sportoviště pro uživatele objektu.
- Autoři: Martina Buřičová, Štěpán Kubíček
- Ateliér: caraa.cz
- Země: Česká republika
- Generální dodavatel: SKD Průmstav stavby a.s.
- Subdodavatel: DNA CZ s.r.o.
- Město: Prague