
Cenu za nejlepší rekonstrukci interiéru získal panelákový byt. Místo příček tu visí závěsy
Jedna z cen soutěže Interiér roku letos putovala do paneláku na pražském Žižkově. Zase se ukázalo, že panelové byty mohou mít nečekané kvality.
Sára Kročková , 8. 7. 2025
Mladý pár chtěl byt v žižkovském paneláku původně prodat. Chtěli si pořídit „lepší“ byt než ten v panelovém domě. Avšak Žižkov se jim nakonec zalíbil svou blízkostí do centra města, a tak mu dali šanci. O návrh rekonstrukce se postaralo studio Iva Hájková a nakonec se z tak trochu nechtěného bytu stalo místo, které skvěle odpovídá potřebám mladé městské rodiny.

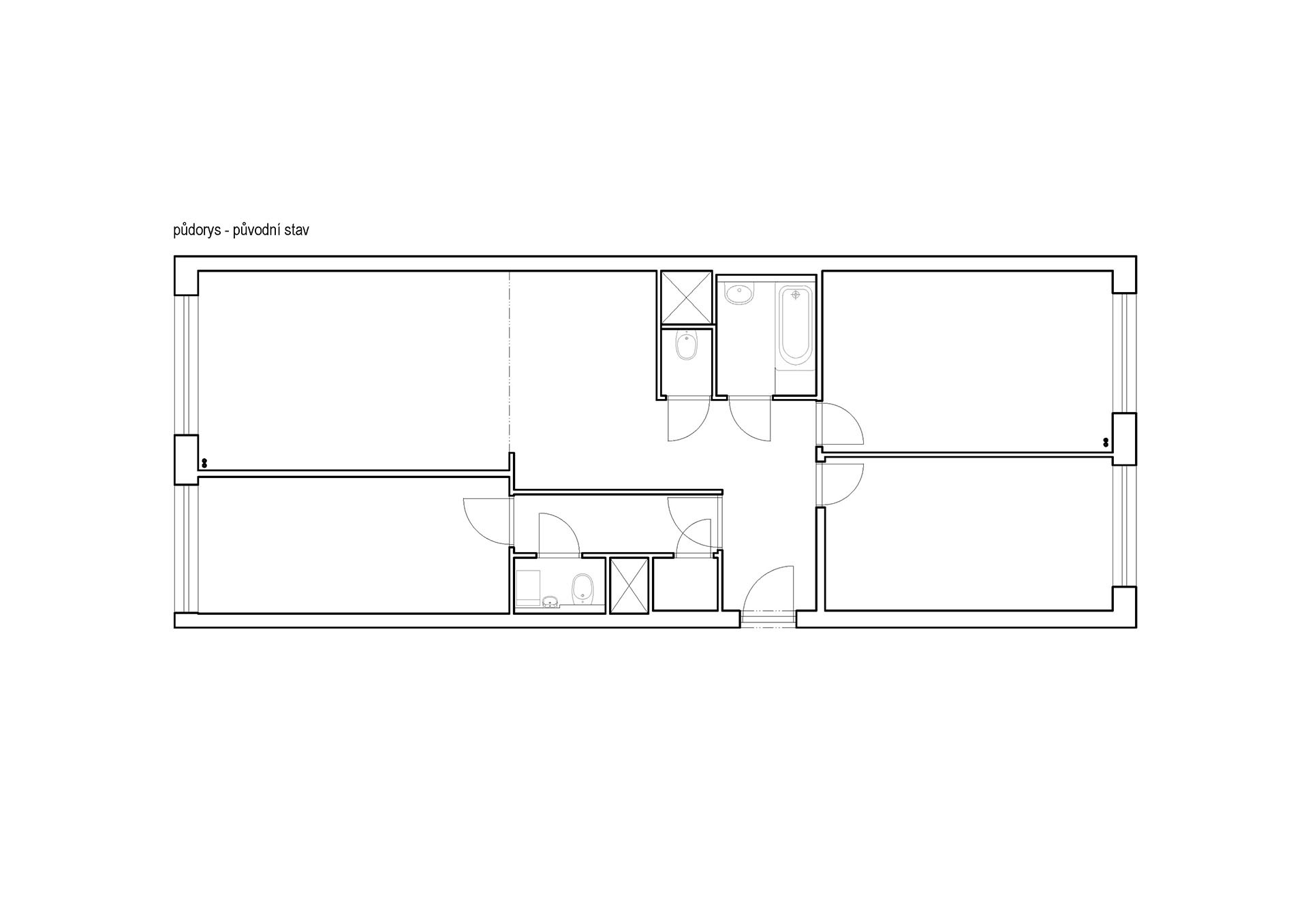
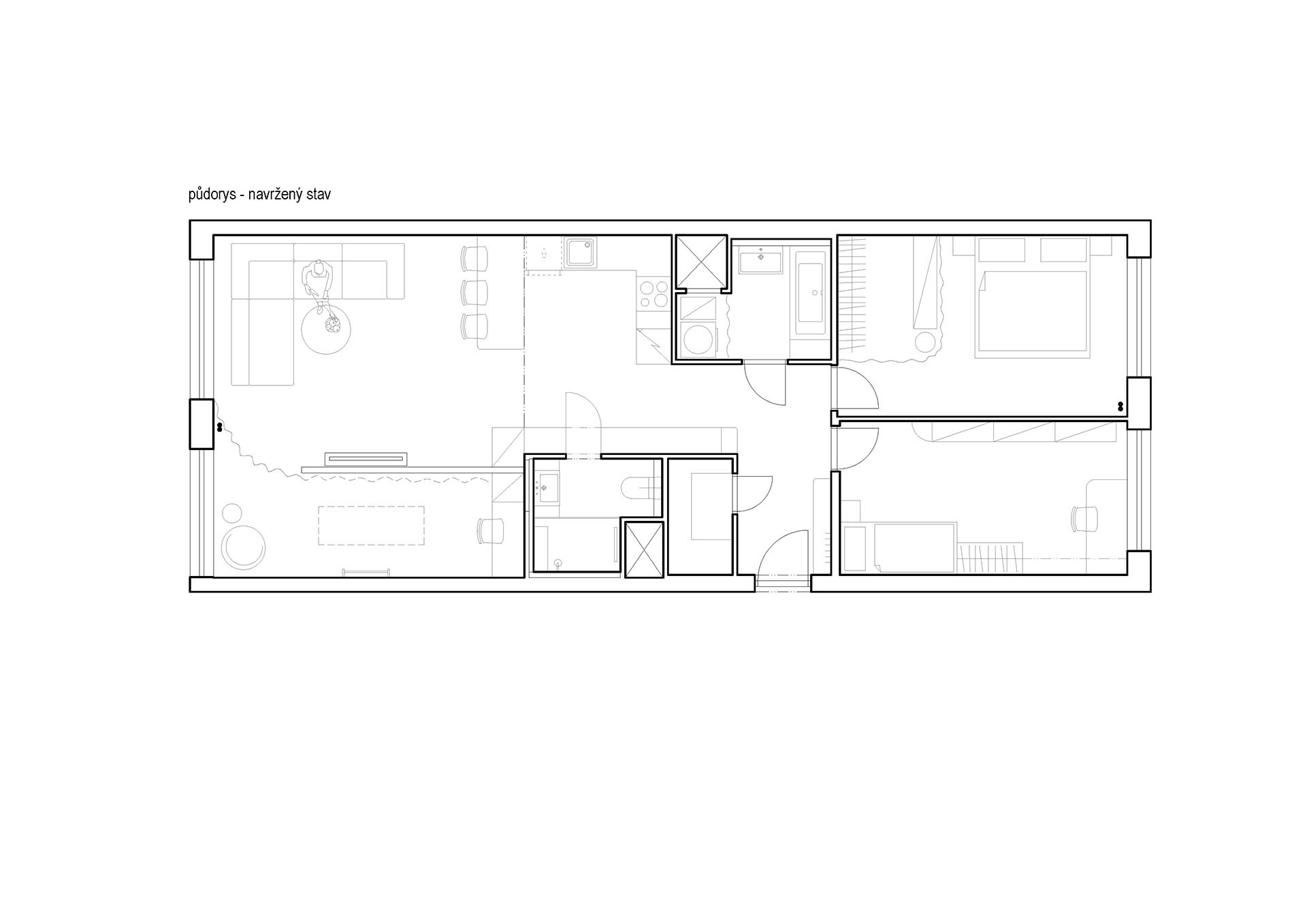
„Na začátku stálo přání vytvořit otevřený, světlý a klidný domov, kde si každý člen rodiny najde svůj prostor,“ vysvětluje Iva Hájková. Zásadní roli sehrála práce s dispozicí. Architektky odstranily příčku mezi dvěma místnostmi a vytvořily centrální obytný prostor, který zůstává otevřený, ale díky copilitové stěně a závěsu umožňuje částečné oddělení a soukromí.
Copilit, skleněná tvárnice známá z industriálních staveb, dodává prostoru jemný, rozptýlený světelný efekt. „Naturální vzhled odhalených betonových panelů se přirozeně propojuje se zelenkavou barvou skla copilitových tvárnic a společně vytváří dojem vody a kamene – přeneseně vodopádu ve skalách,“ doplňuje Iva Hájková.
Lité terazzo v hlavním obytném prostoru a v něm barevné kamínky v odstínech zelené, růžové, béžové a šedé propojují jednotlivé části bytu a doplňují zvolenou materiálovou paletu. V interiéru dominuje dřevo, kámen, zrcadla a zeleň.

Pevné příčky nahradily závěsy, jež cíleně zjemňují tvrdý beton. Objevují se nejen podél copilitové stěny, ale i v ložnici, kde oddělují šatnu. Závěsy zde nejsou jen funkčním prvkem, ale také zásadní součástí vizuálního a atmosférického řešení celého interiéru.
Koupelny vznikly rovnou dvě – jedna s vanou a skrytou pračkou, druhá se sprchou a toaletou. Jednu z koupelen obtékají vestavěné skříně s integrovanými dveřmi do koupelny. Interiér díky tomu působí čistě a kompaktně, bez rušivých prvků.
Více k tématu
Projekt „U vodopádu“, jak studio rekonstrukci pojmenovalo, získal ocenění Interiér roku v kategorii Rekonstrukce. A právem. Ukazuje totiž, že i v domě ze 70. let může vzniknout současné, poetické a inspirující bydlení. Bez velkých gest – a bez příček.
- Autoři: Iva Hájková, Kateřina Šmardová
- Ateliér: Iva Hájková Studio
- Země: Česká republika
- Město: Praha
- Projekt: 2023
- Realizace: 2024
- Užitná plocha: 95 m²
- fotografie: KUBÍČEK.STUDIO
- Nábytek na míru: HAKO nábytek
- Závěsy, textilie: Hana Kroa Studio
- Stavební dozor a rekonstrukce: Zednici.cz
- Skleněná příčka: SKLOMONT – BAREŠ
- Jídelní židle, knihovna, křeslo: Master & Master
- Pohovka: Natuzzi Italia
- Sanita: SIKO
- Zásuvky, vypínače: Berker
- Světla nad jídelní stůl: IKEA
- Dekorační vázy, sklo: DECHEM studio
- Betonový stůl: CRÉER