Prosklená roubenka. Vyrobili ji ve Finsku a poskládali v Jevanech
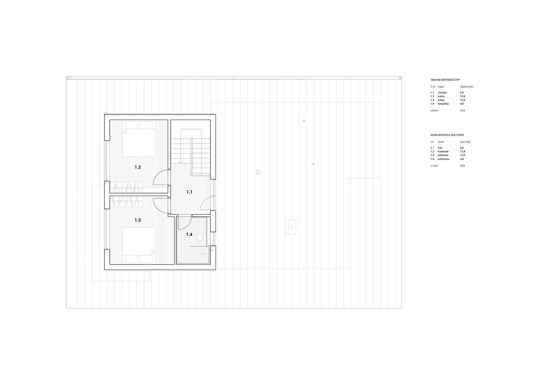
Dřevostavba z masivních kmenů stojí v obklopení zeleně. Koupelna a pokoj pro hosty jsou v černé kostce.
EARCH.CZ , 28. 3. 2025
V obci Jevany, v chatové oblasti nedaleko Voděradských bučin, se nachází rodinný dům na parcele obrostlé listnatými stromy. Postavit si ho zde nechal manželský pár původem z Ostravy. Hledali nové útočiště, kde by měli dostatek klidu a přírodu na dosah. Přání se jim vyplnilo. Majitelé mají kolem sebe tolik zeleně, jakoby žili na samotě.
Příroda vstupuje i dovnitř domu. O to se postaralo architektonické studio monom, které navrhlo rodinný dům jako dřevostavbu s prosklenou fasádou. Snažili se „vymazat hranici mezi interiérem a exteriérem a otevřít dům do zahrady tak, aby dobře komunikoval s okolní zelení,“ říkají.

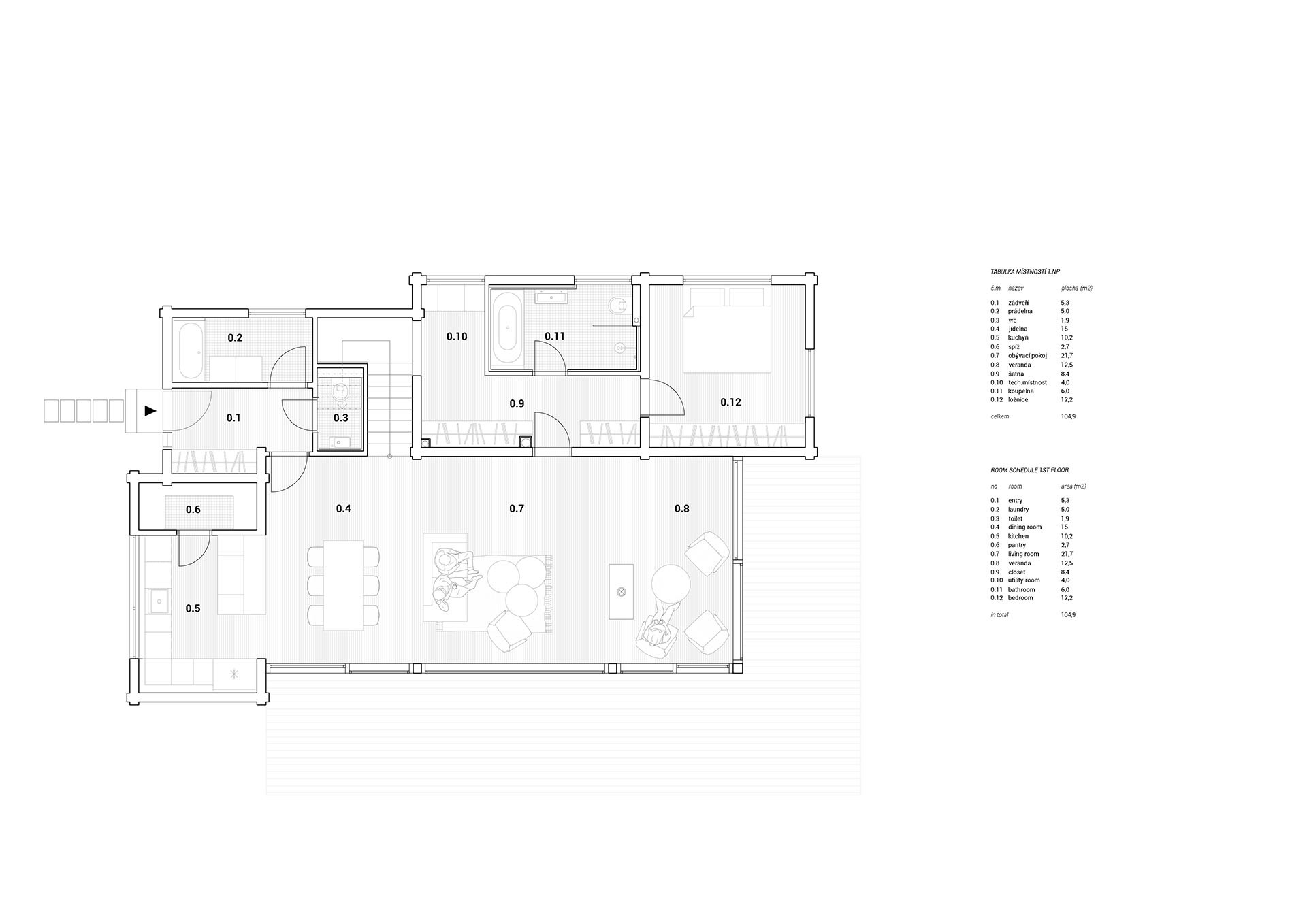
Dřevěný dům a v něm černá kostka
Dům má jednu zvláštnost – je postavený z masivního dřeva, z kmenů z finské borovice. Dodavatel, společnost Honka, dodává kmeny borovice opracované na CNC strojích. Finská borovice roste výrazně pomaleji než u nás, což se pozitivně projevuje v hustotě a následné kvalitě materiálu. Celá nosná konstrukce je vyrobena na milimetr přesně ve Finsku a na místě složena ve velmi krátkém čase.
Není to ale tradiční „roubenka“. Dovnitř dřevěné konstrukce architekti vložili „černou kostku“. Ta je dobrým vizuálním kontrastem k jinak přírodním materiálům a zeleni v okolí.
V černé kostce se nachází zázemí pro hosty a také všechny místnosti utilitárního charakteru, jako je např. koupelna nebo technické zázemí. Zbylý prostor je otevřený, světlý a prostorný. Pomyslným těžištěm dispozice se stává obývací pokoj s kuchyní, ze kterého se dá vyjít přímo na venkovní terasu a pokračovat do zahrady.

Výrazným prvkem stavby je také nepřehlédnutelná střecha s velkým přesahem. Je navržena tak, aby zastřešovala venkovní terasu. Majitelé chrání před deštěm i ostrým sluncem a vytváří tak příjemné místo pro posezení.
Více k tématu
Nemusíte do Jevan, stačí jít na výstavu
Kdo by chtěl o dřevostavbách vědět víc, může 3. dubna vyrazit na konferenci Salonu dřevostaveb. V tentýž den začíná v Národní technické knihovně výstava, která bude následně putovat po celé České republice. Rodinný dům v Jevanech bude jeden z dvaceti vystavených dřevěných realizací.
- Ateliér: monom
- Autoři: Michal Bernart, Igor Hobza, Veronika Výborná, Tomáš Vaněček, Anna Pospíchalová
- Země: Česká republika
- Město: Jevany
- Dodavatel: Honka