Architekt Kamil Mrva představuje budovu potravin Hruška v Trojanovicích
Minulý rok dokončil architekt Kamil Mrva se svým týmem rekonstrukci a přestavbu obecní budovy v Trojanovicích pro potřeby samoobsluhy i dalších služeb. Projekt je navíc součástí dlouhodobé vize vytvořit novodobou náves beskydské obce. Proces návrhu i myšlenky, které formovaly výsledek této mimořádné přestavby, přibližuje architekt Mrva v 10. díle pořadu Architektura v betonu, který přináší EARCH.TV ve spolupráci se společností Českomoravský beton.
Trojanovice jsou dvou a půl tisícová obec na úpatí Moravskoslezských Beskyd. V jejím čele stojí starosta Jiří Novotný, který již čtvrté volební období určuje rozvoj obce i jejího okolí. A nutno říct, že si v tomto směru počíná velmi aktivně. Novotný jako spoluzakladatel občanského sdružení Naše Beskydy bojujícího proti těžbě černého uhlí v beskydské krajině inicioval například realizaci známé dřevěné zvoničky podle návrhu Kamila Mrvy na nedalekých Horečkách, která ztělesňuje odhodlání místních v boji proti otevření dolů.
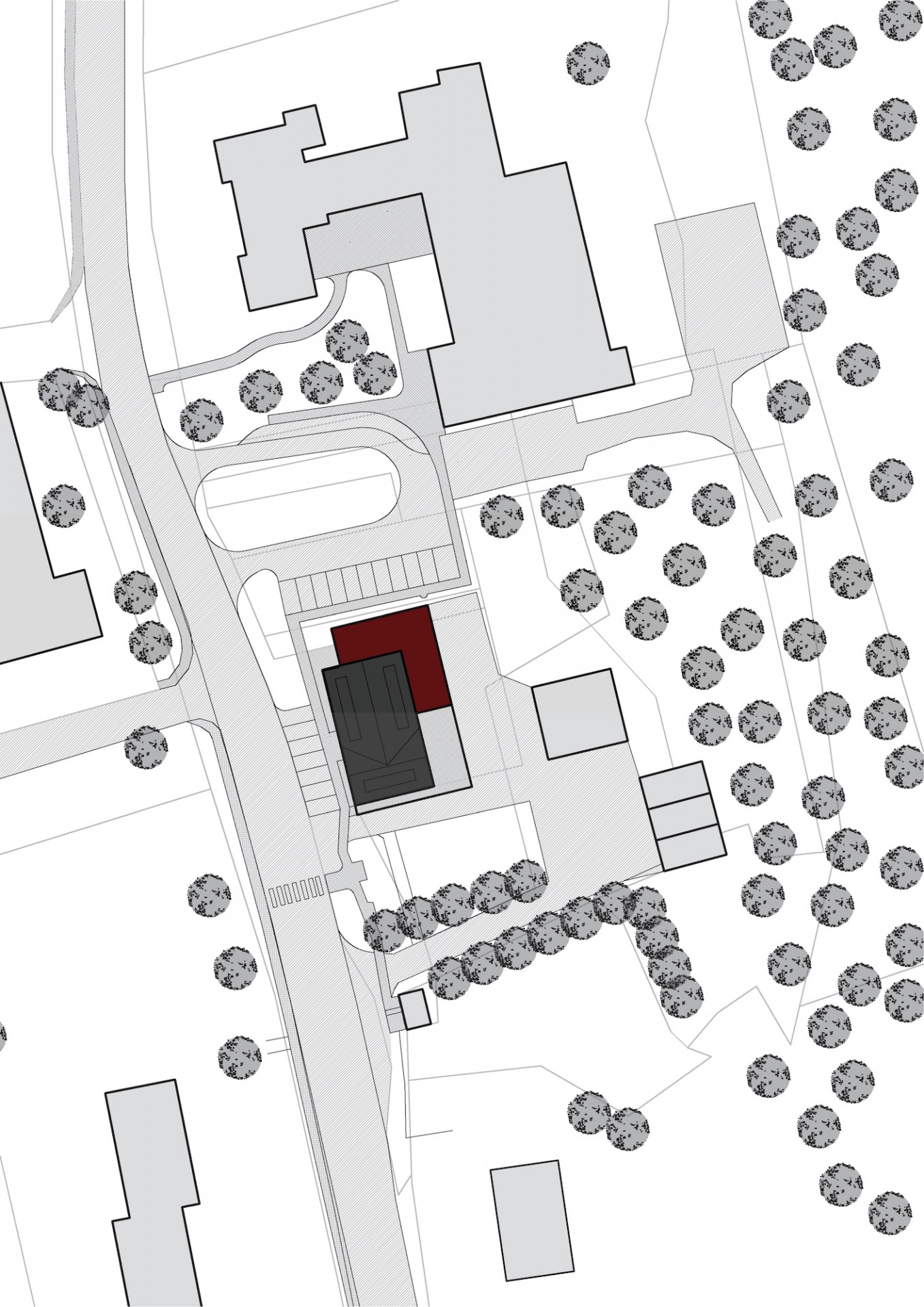
Kamil Mrva se v této době před deseti lety stal postupně dvorním architektem populárního starosty. Následovaly tak projekty rekonstrukcí veřejných obecních budov v Trojanovicích i hostinec Rekovice, opět na Horečkách. V současnosti Mrva s Novotným pracují na poměrně ambiciózním plánu pro obec podobného měřítka. Tím se má stát nová náves (společenské centrum) Trojanovic. První krok v rámci této vize představuje celková rekonstrukce a rozšíření obecní budovy, ve které se již před tím nacházela samoobsluha českého řetězce potravin Hruška.
Více k tématu

Úkolu rekonstrukce se znovu ujal Kamil Mrva, který se se svým studiem snažil oprášit kvality původního, sto padesát let starého domu a nově jej doplnit moderní přístavbou. „Pokud mám dělat rekonstrukci v této době za účelem rozšíření a nové potřeby, tak k tomu přistupuji soudobě,“ zdůvodňuje Mrva svůj návrh v přiloženém krátkém dokumentu.
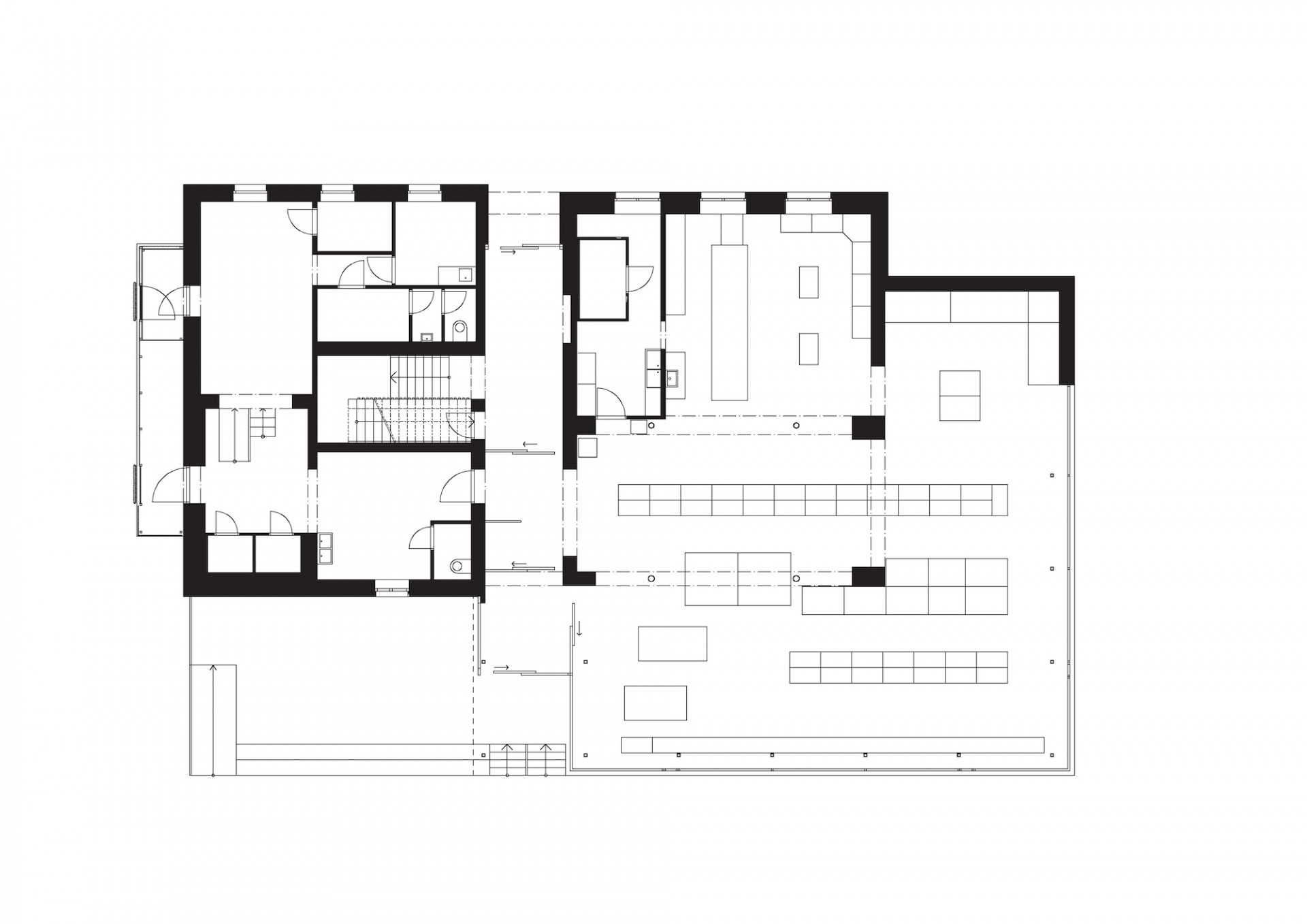
Původní budovu proto nechali architekti očistit od předchozích přístavků a navrhli jí nový bílý plášť. Tím vznikl důstojný solidní dům, ke kterému pak přibyla nová část. Od stávajícího domu ji nápadně odlišuje především hlavní použitý materiál – pohledový beton v kombinaci s velkými prosklenými plochy. Beton Mrva použil díky jeho konstrukčním i estetickým kvalitám s tím, že jej není třeba již dále upravovat dalšími vrstvami omítky. Mrva zároveň zdůrazňuje, že beton patří mezi nejlepší materiály také v souvislosti s klimatickou změnou, neboť disponuje nadstandardními tepelnými vlastnostmi.

Při návštěvě trojanovické Hrušky příjemně zarazí, že oproti drtivé většině ostatních potravin prostor ani stěny nezahlcuje vizuální smog v podobě různých reklamních poutačů, slev či nápisů ve výlohách. Na přítomnost prodejny upozorňuje pouze jednoduchý kovový banner před budovou. Celý projekt totiž financovala obec coby majitel objektu (bez dotací), která se také se zástupci řetězce domluvila na regulaci reklamy. V patře, které přisvětlují nové vikýře, se pak nachází několik soukromých podniků (masáže, zubní ordinace) a pronajímatelné kanceláře.
Prodejna Hruška úspěšně funguje v novém prostoru již rok a podle všeho se těší velké oblibě – kromě místních do ní jezdí nakupovat i lidé z „přespolního“ Frenštátu a podle slov Kamila Mrvy se tržby meziročně zdvojnásobily. Vedle Hrušky pak Mrva dokončil také přestavbu malého objektu dřívějších garáží na kavárnu, řeznictví a obchod, následovat bude proměna sousedního domu na poštu a infocentrum.

Tento článek vznikl za podpory společnosti Českomoravský beton v rámci popularizace tématu "Beton v architektuře".
Českomoravský beton, a. s., je holdingovou společností, která prostřednictvím vlastních betonáren a dceřiných společností dodává transportbeton v široké škále pevnostních tříd a druhů na území České republiky a Slovenska. Skupina, jejíž vznik spadá do počátku 90. let minulého století, v současné době provozuje 85 nově postavených nebo zrekonstruovaných betonáren, které mají zavedený systém managementu kvality, systém managementu hospodaření s energií a splňují nejpřísnější ekologická kritéria. Celá skupina – holdingová společnost a její dceřiné společnosti, historicky označované ve svém názvu TBG – vystupuje na trhu ČR pod jednou společnou obchodní značkou Českomoravský beton.

- autor: Matěj Beránek *
- publikováno: * 23. 9. 2019