S Kamilem Mrvou na návštěvě v surově betonovém rodinném domě v Novém Jičíně
V zástavbě na okraji Nového Jičína mezi katalogovými domy vyniká hmotově čistá stavba od předního českého architekta Kamila Mrvy. Dominantní pohledový beton zde vystupuje v co nejsurovějším stavu, a to v interiéru i exteriéru. Projekt navíc reprezentuje aktivní přístup zručného investora, který se na stavbě z velké části podílel. EARCH.TV ve spolupráci se společností Českomoravský beton přináší premiéru 6. dílu cyklu Architektura v betonu věnovaného právě rodinnému domu v Novém Jičíně.
S Kamilem Mrvou se poprvé setkáváme přímo v kopřivnickém ateliéru-manifestu, jehož realizace na přelomu milénia otevřela mladému architektovi dveře k dalším zakázkám. Jednoduchá dřevostavba v kombinaci se zděnou obytnou částí působí uprostřed voňavého rozkvetlého sadu opravdu kouzelně. Objekt zároveň slouží jako vizitka autorského rukopisu čistých a účelných forem spojených s citlivým přístupem k prostředí i materiálům.
Pozemek pro stavbu ateliéru Mrva zdědil po dědečkovi, proto ho k místu váže ryzí osobní vztah. V Kopřivnici ostatně strávil celé mládí. Po studiích v Brně i v Praze a absolvování praxe u Karla Pragera se nakonec rozhodl vrátit zpět a založit si vlastní kancelář tady v regionu. Patrný je také zájem o práci Franka Lloyda Wrighta, na jehož stavby se zaměřil během studijní cesty do Ameriky. Obývací pokoj v domě Kamila Mrvy dokonce zdobí replika slavného domu u vodopádu složená z lega. Kromě toho v interiéru najdete ikonické křeslo Barcelona od Miese van der Roheho, vázu Savoy od Alvara Aalta nebo vlastní experimentální prototyp židle odlité z betonu.
Rodák z Nového Jičína bezesporu patří ke špičkám současné architektonické scény. Dnes ateliér Kamil Mrva Architects souběžně pracuje na zhruba šedesáti projektech, přičemž značná část z nich se realizuje v okolí. Blízký vztah k regionu a touha po jeho zvelebování je zřejmá jak z Mrvova vyprávění, tak hlavně z odvedené práce. Jako příklad slouží obec Trojanovice při úpatí Beskyd, která je pro architekta srdeční záležitostí. Během zhruba deseti let se tu podařilo spolupracovat na patnácti projektech včetně známé dřevěné zvoničky na Horečkách.
Mrvovy stavby často navazují na typologii valašských roubenek v souladu s funkčním bydlením pro moderního člověka. Architekt se proslavil využitím dřeva, ale rád pracuje i s kamenem, sklem či betonem.
Více k tématu

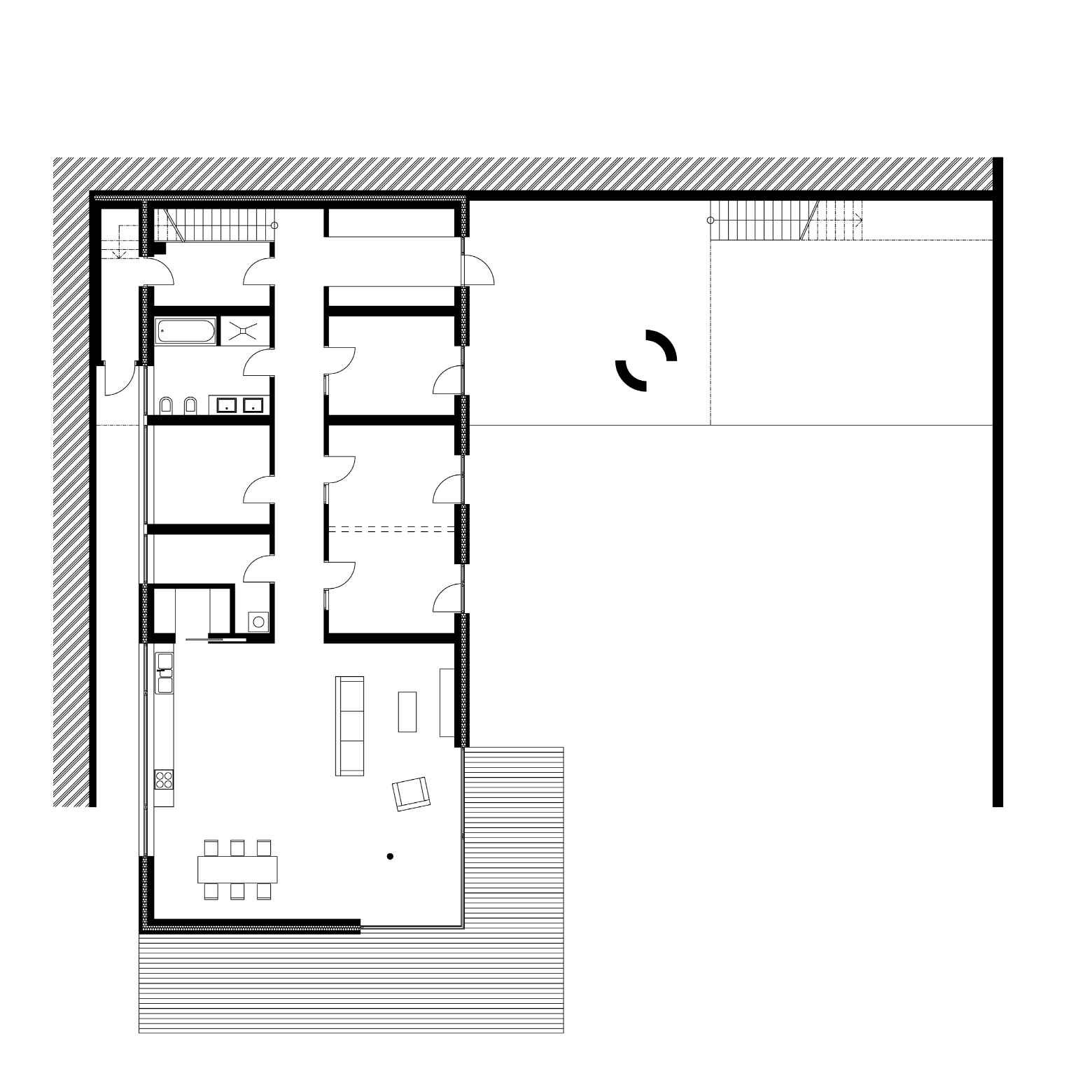
V roce 2011 přišel za Kamilem Mrvou klient s požadavkem na chladný, pevný, prostorný a bezúdržbový dům z betonu. Rodinný dům měl být betonový maximálním možným způsobem – jak zvenku, tak zevnitř. Hned na začátku přišla výzva v podobě limitace pozemku v zástavbě na kraji Nového Jičína. V neregulované lokalitě pro výstavbu nových rodinných domů měla vzniknout jednoduchá hmota poskytující majitelům soukromí. Kontrast s okolím je znatelný hned při příjezdu, kdy člověk míjí pestrobarevné katalogové domy nebo exempláře podnikatelského baroka. Kamil Mrva proto projekt komentuje jako „obdobu rekonstrukce s danými mantinely“, kde ale lokalita není překážkou – důležité je nadšení a přesvědčení investorů.
Na realizaci rodinného domu se aktivně podílel sám investor, a to v maximální možné míře. „Vzpomínám si na krásné začátky, kdy jsme přijeli s kolegou Martinem Rosou na stavbu a pan investor byl v bagru, protože si chtěl vyzkoušet, kolik je toho za den schopný vykopat. Aby měl jistotu nějaké ekonomiky, až bagr předá,“ vybavuje si Mrva stavební počátky projektu.
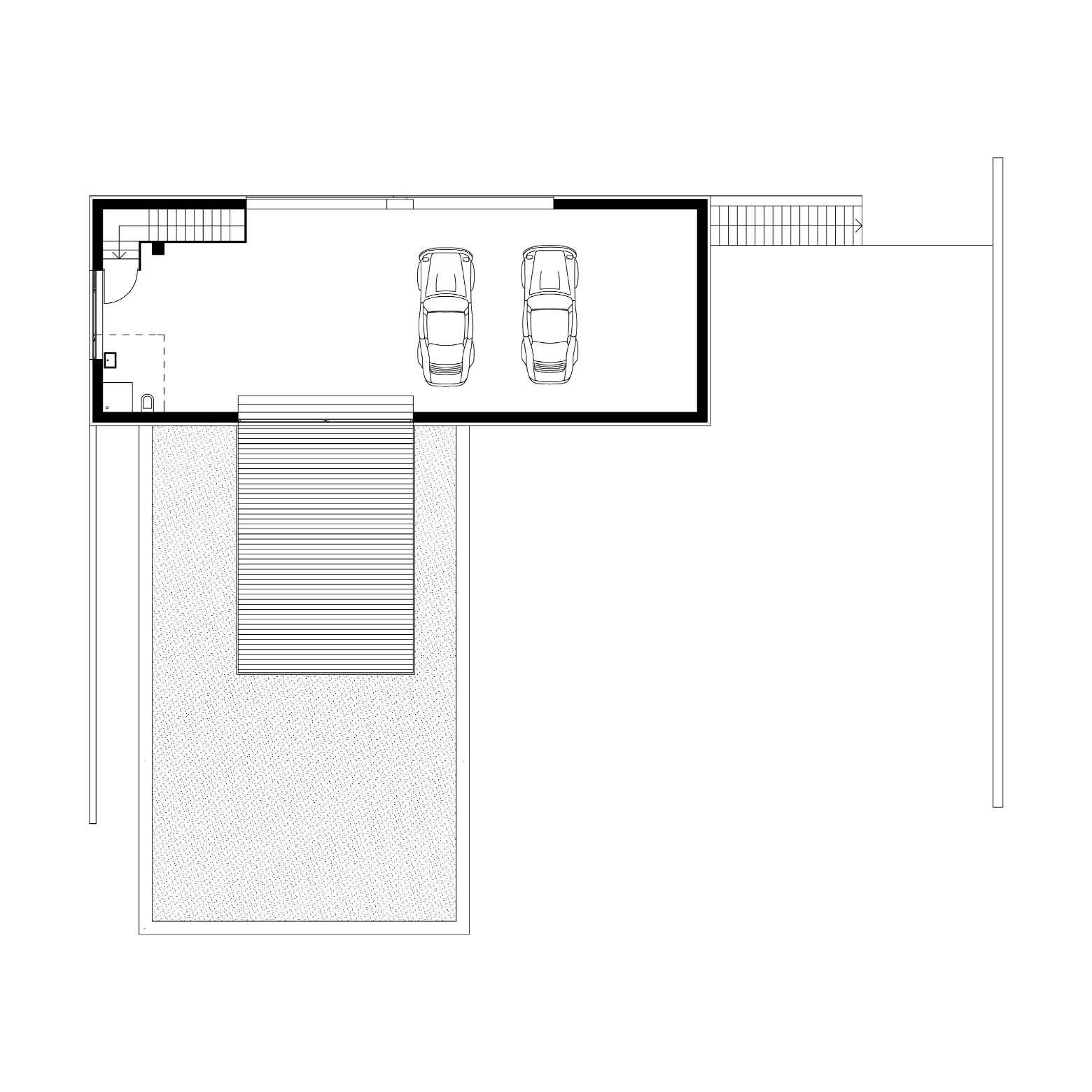
Na prostorově velkorysé svažité parcele vznikl dvoupodlažní objekt zaříznutý do terénu. Právě terénní zářez majitelům zajišťuje dostatečné soukromí i pohledovou izolaci. Obytná část s výhledem na hrad Starý Jičín se nachází v přízemí, „zakopaná“ tři metry pod úroveň komunikace. Jako vstupní objekt slouží montovaná ocelová konstrukce pro garáž a dílnu, přičemž princip sestupování do obytných prostorů je podobný jako ve slavné brněnské vile Tugendhat.

Přáním klienta bylo, aby v domě vystupoval pohledový beton v co nejsurovějším stavu. Proto obvodovou stěnu z většiny tvoří sendvič s vnější a vnitřní pohledovou vrstvou a tepelnou izolací uprostřed. Nosná konstrukce je částečně železobetonová a v menší míře vyzdívaná z keramických tvárnic. Otisk architektova typického materiálu – dřeva – se nevyhnul ani domu z betonu. Vnější strukturu vytváří bednění z desek s reliéfem dřeva. Pozoruhodný betonový prvek v exteriéru představuje speciálně vykružené betonové bednění, které slouží jako podpěra pod konzolou a zároveň i jako venkovní sprcha.
Nekompromisní rozhodnutí postavit celý dům z betonu si majitelé pochvalují. Bytelnost materiálu potom oceňují hlavně nejmladší obyvatelé, jejichž hry v odolném prostoru nenarušují běžná omezení. Kde jinde si totiž děti můžou doma házet míčem o zeď, aniž by je rodiče napomínali?

- autor: Tereza Suntychová *
- publikováno: * 30. 7. 2018