S Markem Štěpánem v dlouho očekávaném kostele bl. Marie Restituty na sídlišti Brno-Lesná
Dlouhých 30 let čekal moravský architekt Marek Jan Štěpán na realizaci kostela v Brně-Lesné. První návrh vytvořil totiž ještě jako student a následně s ním zvítězil v první architektonické soutěži na začátku 90. let. Jak se projekt vyvinul do dnešní podoby? Co bylo při realizaci atypické betonové stavby nejobtížnější? A s jakou náboženskou symbolikou návrh pracuje? Odpovědi najdete v nejnovějším díle pořadu Architektura v betonu, který přináší EARCH.TV ve spolupráci se společností Českomoravský beton.
JDE O SVĚTLO
„Myslím že pro každý sakrální prostor je světlo nejdůležitější prvek modelace prostoru a přenosu atmosféry,“ tvrdí v krátkometrážním dokumentu architekt Marek Jan Štěpán, který se za svou kariéru podílel na návrzích hned několika sakrálních staveb různých měřítek. A světlo hrálo pro Štěpána zcela zásadní roli také při práci své nejnovější realizaci – římskokatolickém kostele blahoslavené Marie Restituty na sídlišti Brno-Lesná.
Více k tématu

CELOREPUBLIKOVÝ VZOR
Právě prostředí, kde se kostel nachází, mělo na komplikovaný vývoj stavby zásadní vliv. Brno-Lesná je odborníky běžně uváděno jako jedno z vůbec nejzdařilejších sídlišť u nás. Jeho podoba totiž vznikala na začátku pokrokových 60. let, kdy tvůrci z různých oborů měli obecně větší možnosti zhmotňovat své osobité myšlenky než v následujících dekádách normalizace. Autoři sídliště František Zounek a Viktor Rudiš vycházeli z modelů kvalitních finských sídlišť a tehdejší představě o ideálním bydlení v podobě domů zasazených do zeleně. Právě mimořádně velkorysý urbanismus je důvodem úspěchu Lesné – hlavní dopravní komunikace se táhne po jeho obvodu, takže veřejný prostor mezi domy nezatěžuje nadměrná doprava. Především ale sídliště nabízí nevídané množství zeleně a vzrostlých listnatých i jehličnatých stromů.

ELÉV VÍTĚZEM
S výstavbou kostela na dnešním místě u Čertovy rokle ve středu sídliště počítali už sami autoři Lesné. Sešněrované poměry 70. a 80. let ale projektu nepřály a tak se o něm začalo vážně uvažovat až po revoluci. Když se začalo s přípravou první architektonické soutěže na návrh kostela, studoval Marek Jan Štěpán ještě na Vysokém učení technickém v Brně. Tématem se zabýval ve své diplomové práci pod vedením doc. Jaroslava Drápala, a tak se roku 1991 soutěže coby čerstvý absolvent sám zúčastnil. A vyhrál. (Mimochodem, v porotě soutěže zasedl taky František Zounek.)

ZMĚNY PROJEKTU
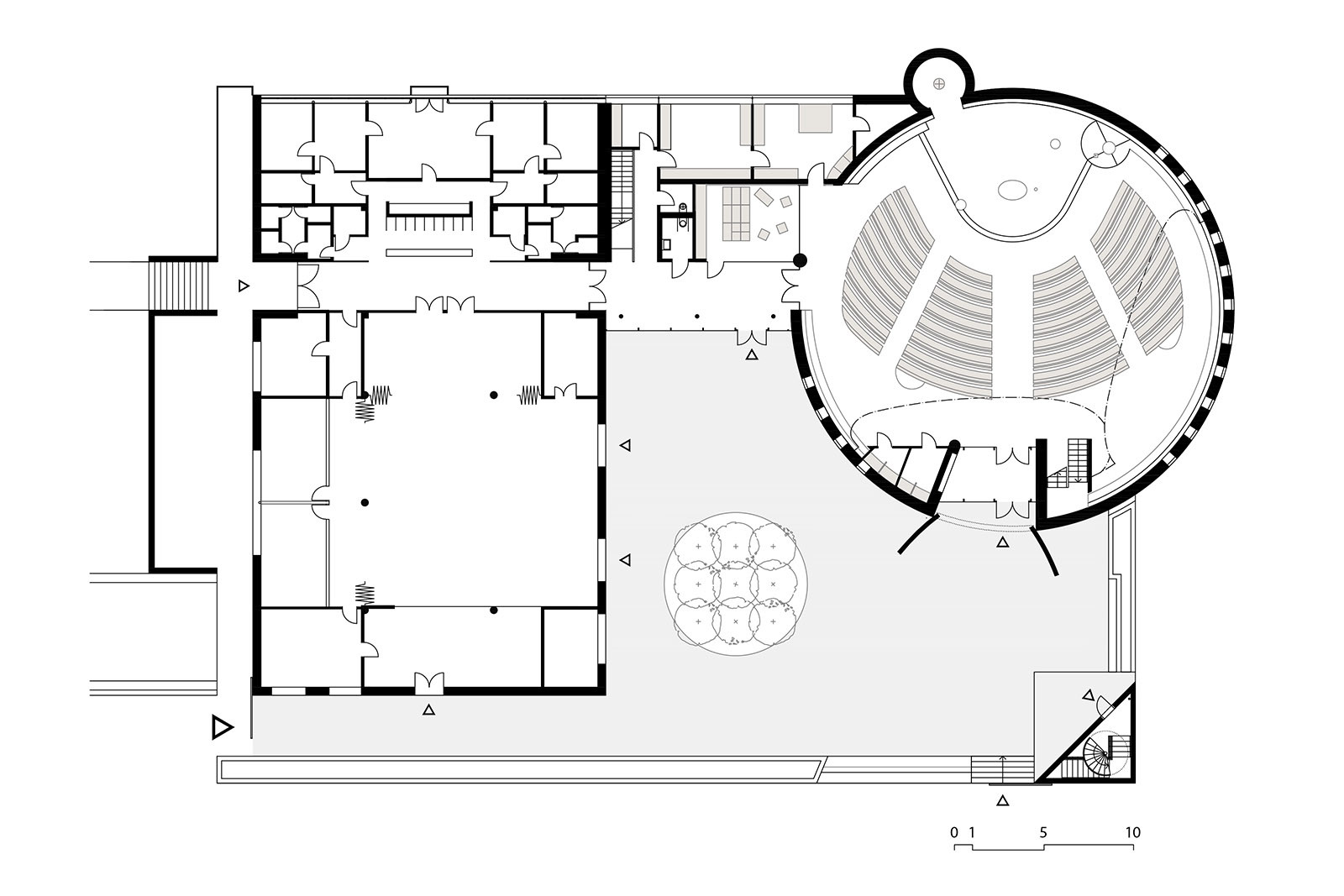
Výsledek soutěže ovšem vyšel během následujících let do ztracena a Štěpán se projektem začal opět intenzivně zabývat až téměř o dvě dekády později v souvislosti s dalšími soutěžemi, na základě kterých se rozhodlo o realizaci právě jeho návrhu. Celkově šlo v pořadí již o 36. návrh kostela pro toto místo. Výstavba kostela musela vzít v potaz také starší Duchovní centrum od architekta Zdeňka Bureše z roku 2004, na které přímo navazuje.

A kolik se toho oproti prvotnímu Štěpánovu návrhu změnilo? Základní principy zůstaly podobné. Elipsovitý tvar kostela se pouze změnil na kruhový a přibyla také jedenatřicetimetrová trojúhelníková věž se zvonohrou a vyhlídkou na město. K dílčím úpravám finálního návrhu musel pak Štěpán přistoupit kvůli nutným finančním úsporám. Fasádu kostela tak netvoří zamýšlené oblé betonové panely jasně odkazující k okolním panelákům, ale břízolit. Umělecky ztvárněné dilatační spáry na břízolitové fasádě jsou dílem Petra Kvíčaly, který je doplnil také o kresby různých světských symbolů (například pivní půllitr se přímo vztahuje k blahoslavené Marii Restitutě, řeholnici moravského původu, kterou umučili nacisté a které je kostel také zasvěcen).

V BARVĚ DUHY
Zcela zásadní význam pro celkovou koncepci kostela představuje duhový prstenec o délce 80 metrů obepínající celou horní část kruhové budovy. Díky pestrobarevným skleněným panelům pronikají dovnitř kostela duhově zbarvené sluneční paprsky, které vytvářejí na betonové kopuli zcela jedinečnou hru světel. Také v tomto efektu se skrývá silná symbolika. Po vstupu do kostela jsou totiž okna proskleného prstence skryta za hlubokou římsou – zdroj světla je zastřen, nevíme, odkud přichází. Hra světla nám naznačuje, že existuje cosi skrytého, něco, co nás přesahuje. Bůh. Duha je pak už od Starého zákonu symbolem smlouvy mezi lidem a Hospodinem.

NEJNÁROČNĚJŠÍ ČÁST
Kopule je odlita z betonu do odřezků z prken, které na jejím povrchu vytvořily působivou scénu připomínající otisk prstu. Vzhledem k jeho velikosti jej architekt s jistou nadsázkou nazývá jako God’s Touch. Právě realizace kopule představovala jednu z technologicky nejobtížnějších fází celé stavby. Na stěnách kostela se pak uplatňují „nepohledové“ betonové konstrukce, jejichž povrch byl nakonec upraven tzv. pemrlováním. Původně totiž architekt zamýšlel zcela jiné řešení, a sice odlití betonových stěn do bednění z bambusu. Ze stěn také vystupují vykonzolované ochozy v podobě určitých bárek.

SÁZKA NA BETON
Architekt se pro beton jakožto základní materiál kostela rozhodl hned z několika důvodů. Počítal s ním ostatně už ve svých prvních návrzích. Kromě architektonického záměru odkazuje beton také na své okolí, sídliště a zároveň tento materiál umožnil nejefektivnější realizaci složitých konstrukcí. Beton sehrál navíc důležitou úlohu z pohledu statiky. Výsledná realizace se nesnaží svému okolí dominovat svou velikostí, ale nápaditou kompozicí tvarů a forem.

Slavnostní žehnání kostela se v důsledku pandemie koronaviru přesunulo z letošního května na 12. září, kdy během mše od 11:00 proběhne také sbírka na vybavení interiérů – celá výstavba kostela byla totiž financována ze sbírek a darů.
V pořadu Architektura v betonu dále vyšlo: Alena Šrámková - Nová budova FA ČVUT, Roman Koucký - Trojský most, David Chmelař - 4Blok, Stanislav Fiala - DRN, Josef Pleskot - Vila v Podolí, Kamil Mrva - Rodinný dům v Novém Jičíně, Petr Hájek - Centrum environmentálního vzdělávání Vrchlabí, Stanislav Fiala - Golf klub Čertovo Břemeno, Petr Hájek - DOX+, Kamil Mrva - Polyfunkční dům Hruška, Tomáš Hradečný - Vrbatova bouda, Chybík&Krištof - Vinařství Lahofer

Tento článek vznikl v úzké spolupráci a za podpory společnosti Českomoravský beton, a. s. v rámci popularizace tématu "Beton v architektuře".
Na stavbu kostela dodávala beton společnost TBG BETONMIX, a.s., člen skupiny Českomoravský beton, z betonárny Brno-Královo Pole. Samotná realizace dodávek transportbetonu probíhala v období od 2018 do 2019 v celkovém objemu 2000 cbm. Obchodní ředitel, Ing. Miroslav Smutný, upřesňuje: „Pro pohledové betonové konstrukce byl požadován světlejší beton. Nakonec byla pro toto řešení navržena receptura z cementu CEM II/B-S 32,5R s vápencem. Naši technologové byli při realizaci pohledových konstrukcí neustále k dispozici a ladili pohledové betony dle aktuální situace na stavbě.“ Zajímavostí při realizaci stavby byla i betonáž klenby: „Zde byl požadavek stavby na modul pružnosti 34 GPa. Z toho důvodu byla navržena receptura na beton C35/45 XF1 S4 Ecm=34 GPa, kde jsme použili kamenivo 8/16 pro dosažení modulu pružnosti ze Želešice,“ dodává obchodní ředitel. Technologický dohled této stavby včetně návrhu receptur a zkoušek betonu zajišťovala akreditovaná brněnská laboratoř společnosti BETOTECH, s.r.o.
Českomoravský beton, a. s. je holdingovou společností, která prostřednictvím vlastních betonáren a dceřiných společností dodává transportbeton v široké škále pevnostních tříd a druhů na území České a Slovenské republiky. Skupina Českomoravský beton patří k největším výrobcům transportbetonu na českém trhu. Svými dodávkami se podílí na velkých stavbách dopravní infrastruktury, průmyslových, komerčních a bytových komplexů, ale i na drobných rekonstrukcích a stavbách rodinných domů. Českomoravský beton je spolu se společnostmi Českomoravský cement a Českomoravský štěrk součástí silné mezinárodní skupiny HeidelbergCement.

- autor: EARCH.CZ *
- publikováno: * 31. 8. 2020