Architekt Petr Hájek představuje proces návrhu DOX+ zasvěceného tanci a hudbě
Úspěšné pražské Centrum současného umění DOX minulý rok obohatily nové prostory pro tanec, hudbu a vzdělávání. Za projektem DOX+ stojí se svým týmem uznávaný architekt Petr Hájek, který v novém díle pořadu Architektura v betonu odhaluje celý proces a vývoj návrhu hudebního a tanečního sálu. Krátkometrážní film přináší EARCH.TV ve spolupráci se společností Českomoravský beton.
Fasáda připomínající svým vzhledem i měkkostí pohodlnou polstrovanou sedačku, asketicky zařízené prostory z pohledového betonu, výtečná akustika tanečního a hudebního sálu. Tím vším se proslavilo nové rozšíření Centra současného umění DOX v pražských Holešovicích, od jehož otevření uplynulo minulý rok deset let.
Právě k tomuto jubileu se rozhodl zakladatel a ředitel DOXu Leoš Válka doplnit instituci zaměřenou na vystavování současného umění o nové prostory zasvěcené primárně tanci a hudbě. Pro spolupráci na projektu oslovil architekta Petra Hájka, který má s podobnými typy staveb bohaté zkušenosti. Se svým bývalým ateliérem HŠH navrhl unikátní multifunkční sál v zámecké jízdárně v Litomyšli nebo společenský sál v rámci rekonstrukce Arcidiecézního muzea v Olomouci. Oba projekty se se sálem DOX+ potkávají především rovině experimentálního řešení akustiky, neboť Hájek vždy hledá nové cesty a způsoby pojetí konkrétního typu stavby.
Více k tématu

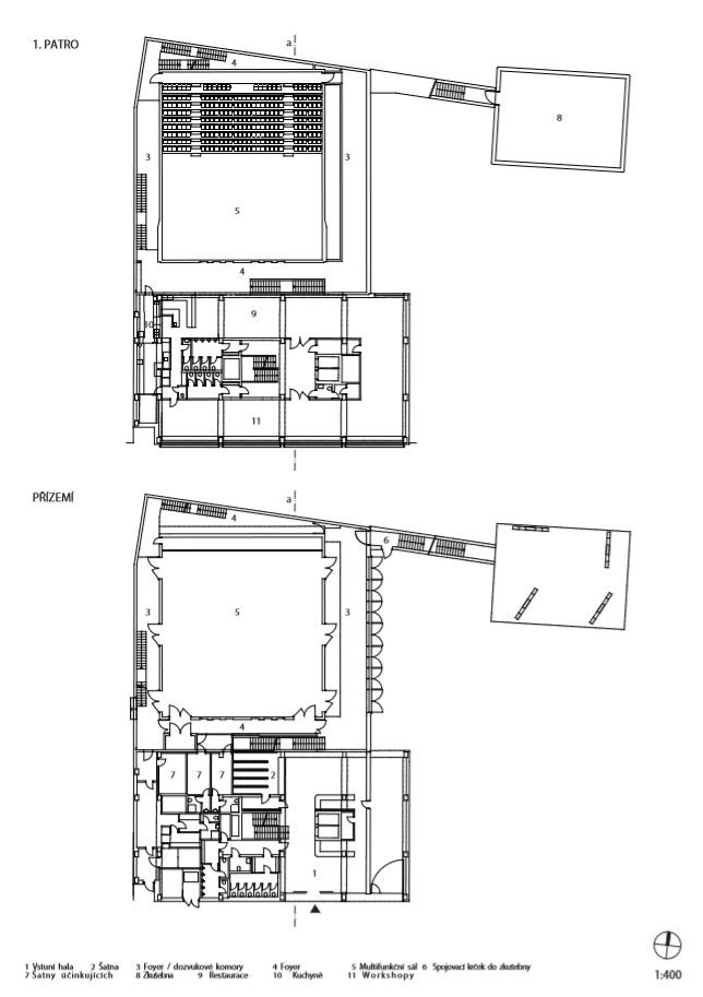
Celý projekt DOX+ zahrnuje zahrnuje celkem tři objekty. Kromě hlavního sálu a samostatné zkušebny stojících na nádvoří navrhl Petr Hájek také rekonstrukci administrativní budovy dřevařských závodů, která s galerií přímo sousedí. Šestipatrovou stavbu ze 70. let, která je součástí blokové zástavby, Hájek upravil s ohledem na dobu jejího vzniku – proto v ní najdeme třeba oranžové linoleum, dýhované dveře nebo teraco. V současnosti zde sídlí soukromá škola architektury ARCHIP.
Při umisťování koncertního a tanečního sálu do vnitrobloku uprostřed rušného města musel Petr Hájek důkladně promyslet především akustiku objektu, a to nejen ve vztahu k zaručení co nejlepšího zážitku divákům. Taková budova produkuje samozřejmě velké množství hluku, který je třeba pohltit, aby nerušil sousedy. I vzhledem k žádoucí vizuální expresivitě (objekty jsou součástí galerie současného umění) nakonec Hájek se svými kolegy přišel s řešením fasád hlavního sálu a zkušebny nápadně připomínajícím čalouněné sedačky. Měkká vrstva zabraňuje šíření hluku zevnitř ven a naopak a zároveň slouží také jako tepelný izolant.

Hlavní sál s kapacitou 550 lidí připodobňuje Petr Hájek hudebnímu nástroji, neboť jej lze obdobně naladit podle potřeb konkrétní produkce. K tomu slouží především otáčivé stropní panely se třemi různými povrchy, které dokáží regulovat a distribuovat akustiku celého sálu. Stavební řešení pro zlepšení akustiky pak představují foyer táhnoucí se po obvodu sálu. Stěny všech vnitřních prostor tvoří pohledový beton, který výrazným způsobem určuje atmosféru místa a díky své neutrální syrovosti posiluje zážitek z představení.
Návštěvníci a studenti architektury mohou využívat také pobytovou střechu objektu multifunkčního sálu, ze které lze pozorovat venkovní akrobatická představení, pro která je určena také visutá lávka. Právě odtud se nabízí pohled na jinak obyčejný pražský vnitroblok, který s příchodem DOXu zázračně oživnul.

Dodavatelem betonu pro tuto stavbu byla společnost TBG METROSTAV s.r.o., člen skupiny Českomoravský beton, která na stavbu dodala celkem 1 600 m3 betonu různých druhů a tříd. Uplatnění zde našly také speciální značkové produkty: litá cementová pěna Poriment, litý anhydritový potěr Anhyment a litý cementový potěr Cemflow v celkovém objemu 300 m3, který dodala společnost TBG Pražské malty, člen skupiny Českomoravský beton. Velkou výzvou pro dodavatele betonu byla doprava, protože prostor je nízký a úzký a jen některé druhy autodomíchávačů se do něj vešly a mohly zajistit bezproblémové dodání požadovaného stavebního materiálu.

Tento článek vznikl za podpory společnosti Českomoravský beton v rámci popularizace tématu "Beton v architektuře".
Českomoravský beton, a. s., je holdingovou společností, která prostřednictvím vlastních betonáren a dceřiných společností dodává transportbeton v široké škále pevnostních tříd a druhů na území České republiky a Slovenska. Skupina, jejíž vznik spadá do počátku 90. let minulého století, v současné době provozuje 85 nově postavených nebo zrekonstruovaných betonáren, které mají zavedený systém managementu kvality, systém managementu hospodaření s energií a splňují nejpřísnější ekologická kritéria. Celá skupina – holdingová společnost a její dceřiné společnosti, historicky označované ve svém názvu TBG – vystupuje na trhu ČR pod jednou společnou obchodní značkou Českomoravský beton.

- autor: EARCH.TV *
- publikováno: * 7. 5. 2019