Rodinný dům Benešovsko

Pozemek je svažitý od severu k jihu, celkové převýšení dosahuje 15 metrů na 100 metrů jeho délky. Podél severní hranice pozemku vede silnice, která spojuje okolní obce.
Umístění domu vychází z tvaru terénu a z přístupnosti pozemku ze severní strany, je ale určeno zejména polohou stromů. Stavba využívá kvality prostředí, které vzrostlé stromy vytvářejí, také výhled na krajinu a na horizont je v této výškové úrovni nejhezčí. V jižní polovině plochy pozemku zůstává louka.
Dům svou výškou nepřesahuje domy v sousedství. Střechu má přístupnou z terénu – od horní hranice pozemku jsou vidět pouze zelené plochy střechy, které navazují na severní svah.

Investor předpokládá sezónní obývání domu v rámci širší rodiny. Dům je rozdělen na dvě samostatné části – větší dvoupodlažní a k ní přiléhající jednopodlažní část na zvýšené úrovni. Prostor, který tímto uspořádáním vznikl v jihozápadní části, se využívá jako venkovní plocha s terasami, místo společného setkávání rodiny.
Prosklené fasády opticky propojují vnitřní prostory s venkovními a umožňují široký výhled do okolní krajiny. Vzrostlé duby přirozeně stíní terasy i fasádu před přímým jihozápadním sluncem. Zároveň zachovávají intimitu místa.

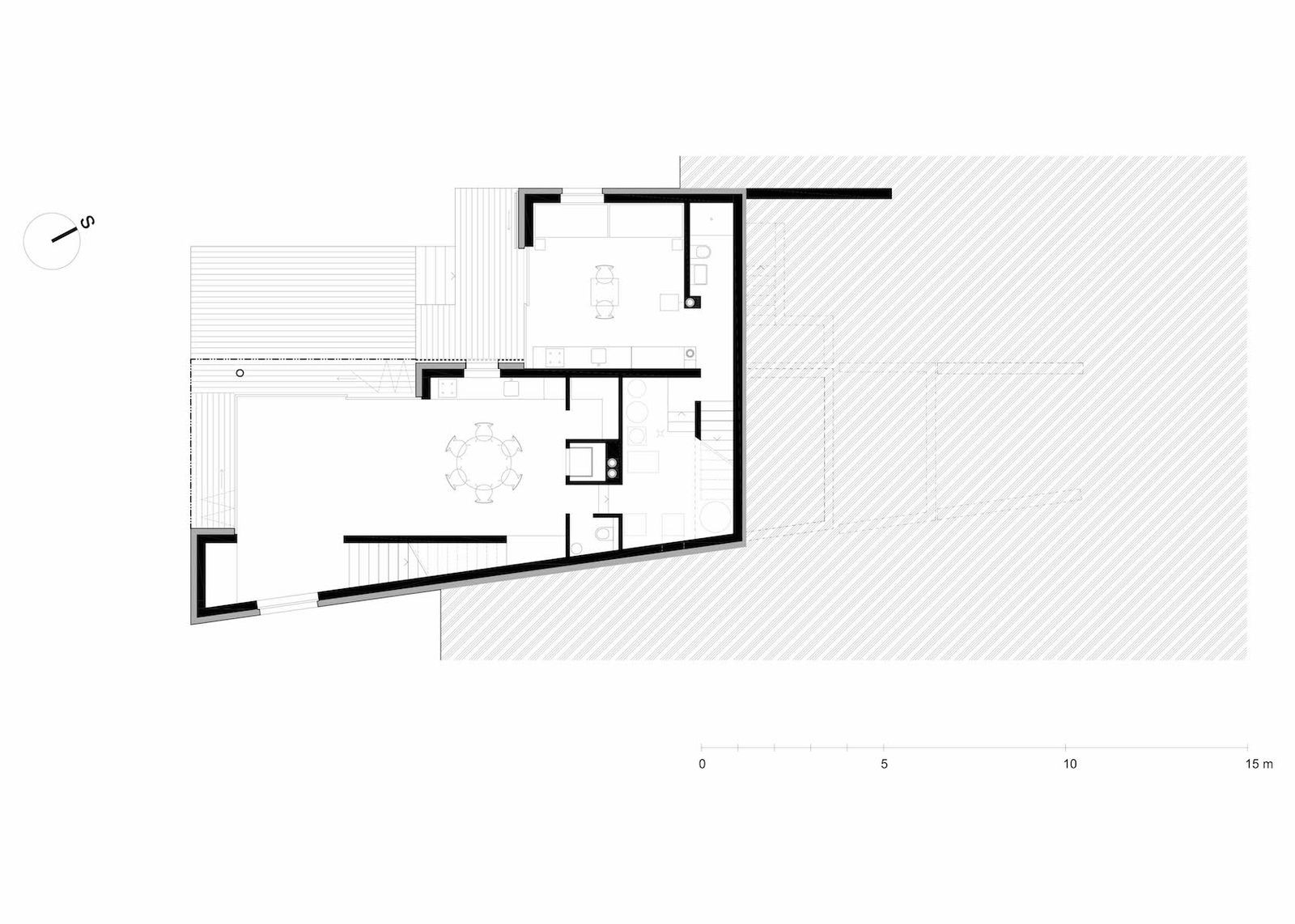
Dispoziční řešení
Hlavní vstup je na úrovni druhého nadzemního podlaží. Ze zádveří vede schodiště do menší samostatné obytné části s jedním pokojem, kuchyňským koutem a koupelnou. Z pokoje je přímý vstup na venkovní terasu.
Ve vstupním podlaží jsou tři ložnice, společná koupelna a sauna. Z ložnicového patra vede schodiště do přízemí, kde je hlavní obytná místnost s kuchyní a jídelnou. Velkou prosklenou plochou jižní a západní fasády prostor navazuje na terasu. V severní části přízemí jsou provozní prostory (spíž, WC a technická místnost).

Stavební řešení
Dům je postavený z jednovrstvého zdiva s tepelnou izolací a omítkou. Západní fasáda má dřevěný plášť z modřínových latí. Část obvodových stěn je železobetonová, provedená z tvárnic ztraceného bednění. Stropy jsou keramické a železobetonové. Plochá střecha je zelená extenzivní, část pokrývá terasa z modřínových prken. Stavba je založena na základových pasech. Horní část základů tvoří betonové stěny ze ztraceného bednění.
- Autoři: Aleš Kubalík, Josef Kocián, Jakub Našinec, Veronika Sávová
- Ateliér: sporadical
- Země: Česká republika
- Realizace: 2015 - 2016
- Projekt: 2013 - 2015
- Adresa:: okres Benešov
- Užitná plocha: 174 m2
- Zastavěná plocha: 160 m2
- Plocha pozemku: 3950 m2
- Obestavěný prostor: 785 m3
Související projekty
Související architekti
Související ateliéry a firmy
Mohlo by vás zajímat





















