Rodinný dům od Marka Štěpána se soustřeďuje do intimního oválného atria
V Novém Jičíně vyrostla nejnovější realizaci známého brněnského architekta Marka Štěpána. Návrh nápaditě řešené rodinné vily s velkým oválným atriem představuje autor v 15. díle pořadu Architektura v betonu z produkce EARCH.TV, který vzniká ve spolupráci se společností Českomoravský beton.
UVAŽOVAT JINAK
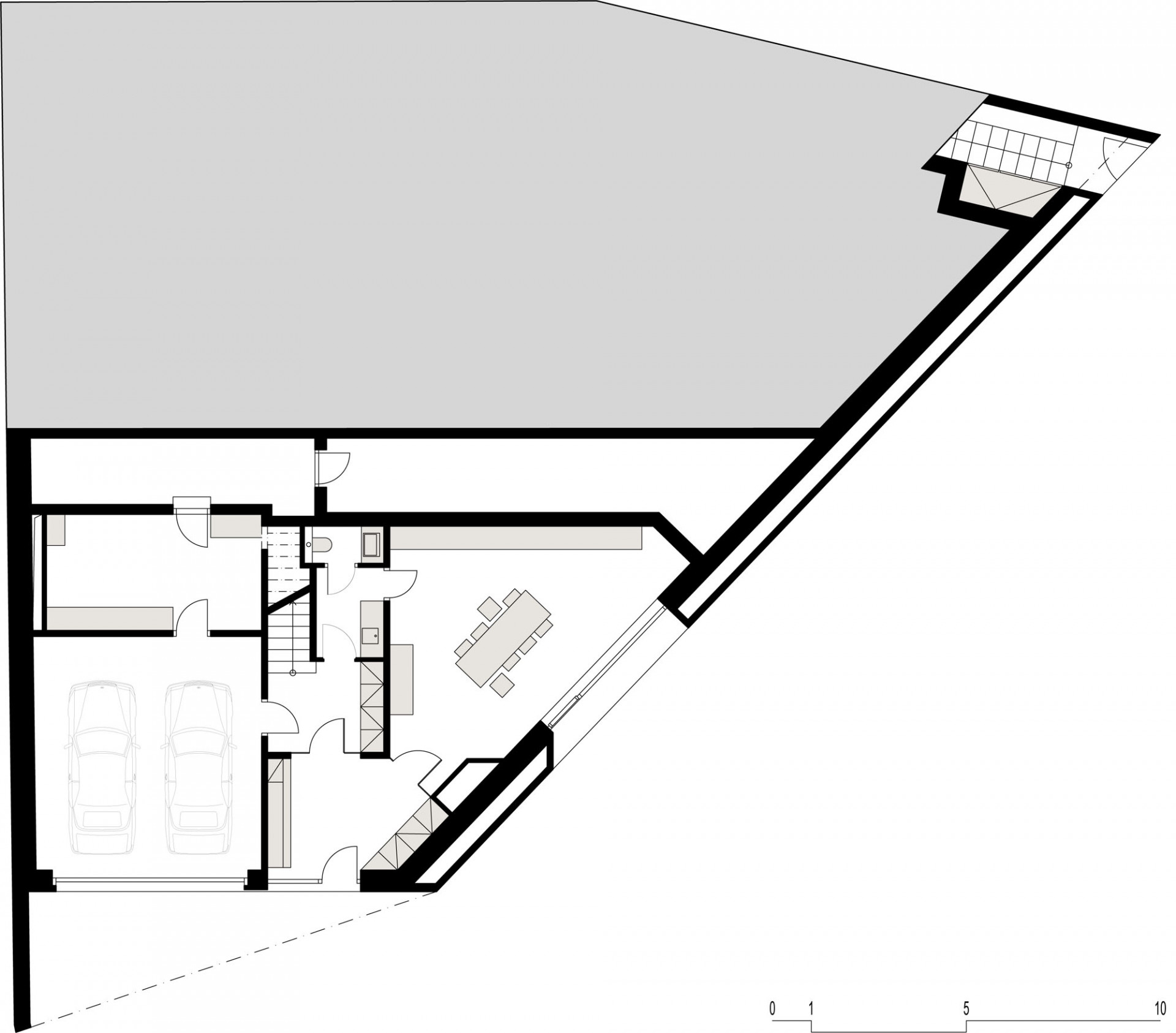
Při promýšlení svého návrhu musel architekt Marek Štěpán vycházet především z několika omezení urbanisticky komplikovaného pozemku poblíž centra Nového Jičína. Parcela se totiž nachází v mírném svahu při rušné hlavní silnici, přičemž nabízí skromnou plochu 505 metrů čtverečních.
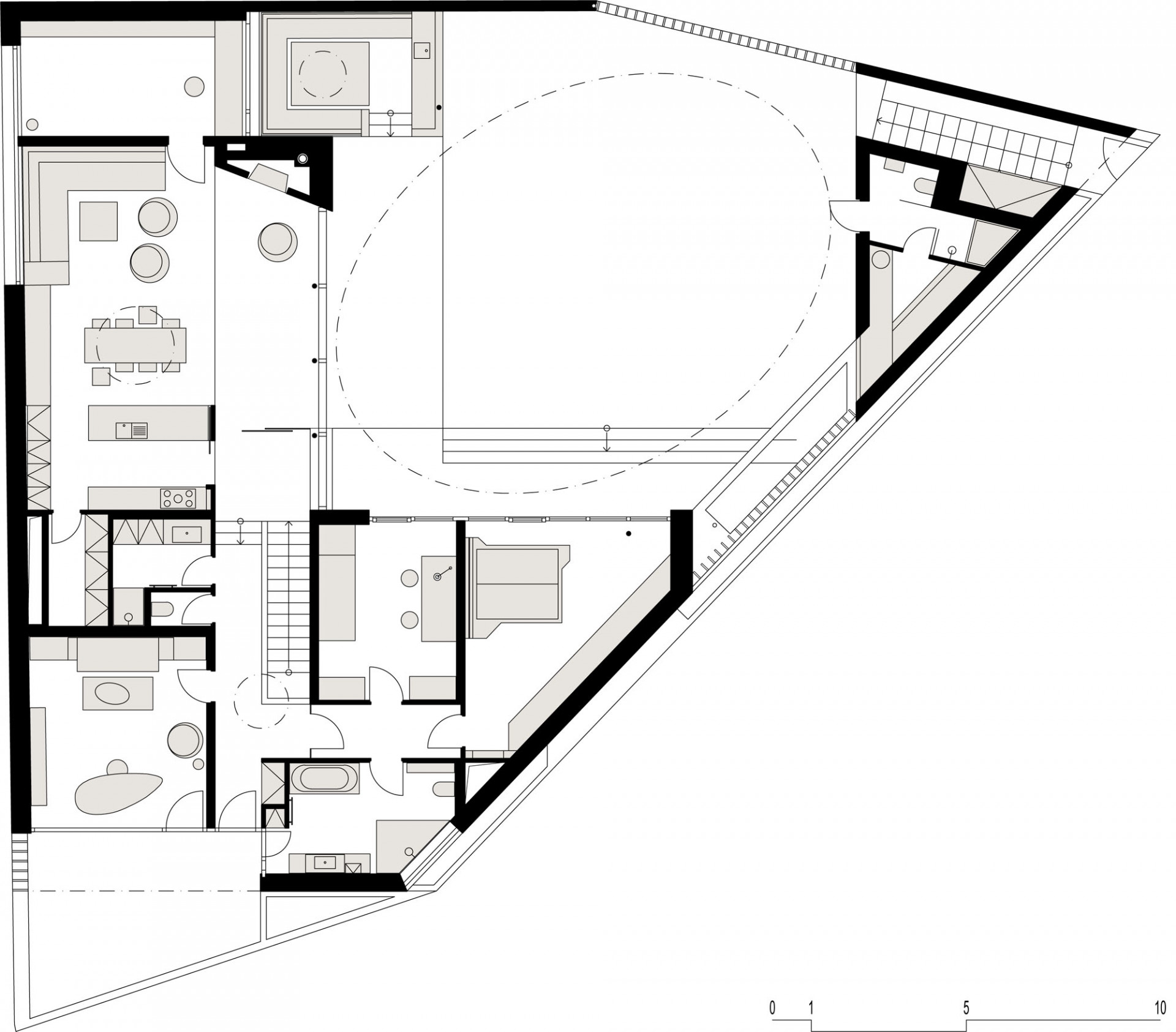
Jak architekt Štěpán ve videu zdůvodňuje, právě tyto podmínky ho přiměly uvažovat nad návrhem domu trochu jiným způsobem – a sice zahradu soustředit do středu pozemku a samotnou stavbu pak umístit kolem ní. Díky tomu se z atria stává jakási vnitřní krajina, do které se otevírá jak velký obývací prostor s jídelnou, tak i manželská ložnice.

BETON A DŘEVO
„Novojičínská vila je variací na antický atriový dům. Konkrétně Atrium displuviatum, tedy bezokapové atrium, které popisuje Vitruvius ve svých Deseti knihách o architektuře. Je to atrium bez sloupů a střešní voda je svedena mimo něj,“ představuje koncept domu Marek Štěpán.
Jedná se o dvoupodlažní stavbu, přičemž pro obě patra zvolil architekt se svým studiem Ateliér Štěpán různé konstrukční materiály. Přízemí, které je částečně zasazené do svažitého terénu, nechali autoři jakožto solidní základnu celého domu odlít z železobetonu. V přízemí najdeme kromě hlavního vstupu a technického zázemí dvojgaráž, šatnu a prostornou kancelář. Všude tady se přitom uplatňují přiznané plochy z pohledového betonu.

Beton, který dodávala na stavbu spol. Českomoravský beton, a.s., zde hraje nezastupitelnou roli. Plní dlouhodobě svou statickou funkci nosné konstrukce, ale také vytváří jedinečné architektonické řešení.
Konstrukci patra pak architekti navrhli jako dřevostavbu z CLT panelů. Život v patře se přitom odehrává ve dvou výškových úrovní, neboť intimní část domu s ložnicemi je vyvýšena o půl metru oproti úrovni atria. V interiéru se uplatňuje především dřevo, zaujmou pak také kruhové světlíky, přičemž ten největší se nachází přímo nad velkým jídelním stolem.

VLASTNÍ SVĚT
I přes zmiňovaná omezení ovšem pozemek majitelům zajišťuje výhodnou polohu kousek od historického jádra města, díky čemuž to má rodina jen pár kroků od veškeré občanské vybavenosti. Dům se navíc nachází mezi dvěma velkými městskými parky, což má taky pozitivní vliv na místní klima.
Při pohledu může kolemjdoucí jen částečně nahlédnout do atria skrze mezery mezi dřevěnými prkny, které prostor vizuálně oddělují od okolí. To ale majitelům nikterak neubírá na pocitu soukromí i při pobytu venku. Atrium totiž vytváří intimní svět, kde může rodina díky krytým terasám trávit podstatnou část roku.


Tento článek vznikl v úzké spolupráci a za podpory společnosti Českomoravský beton, a. s. v rámci popularizace tématu "Beton v architektuře".
Dodávky betonu pro realizaci betonových konstrukcí zajišťovala betonárna v Novém Jičíně, společnosti Českomoravský beton, a. s. Vedoucí betonárny Roman Volek k tomu doplňuje: „Na základy byly dodávány betony v pevnostních třídách C16/20 a C20/25. Pro realizaci pohledových železobetonových konstrukcí typu bílá vana našel uplatnění vodonepropustný beton PERMACRETE v pevnostní třídách C25/30 - XA1 a C30/37- XA1 s maximální velikostí zrna 16 mm a 8 mm. Celkem jsme na tuto stavbu dodali 420 cbm betonu v průběhu let 2016–2017.“
Českomoravský beton, a. s. je holdingovou společností, která v letošním roce slaví 30. výročí od svého vzniku. Prostřednictvím vlastních betonáren a dceřiných společností dodává transportbeton v široké škále pevnostních tříd a druhů na území České a Slovenské republiky. Skupina Českomoravský beton patří k největším výrobcům transportbetonu na českém trhu. Svými dodávkami se podílí na velkých stavbách dopravní infrastruktury, průmyslových, komerčních a bytových komplexů, ale i na drobných rekonstrukcích a stavbách rodinných domů. Českomoravský beton je spolu se společnostmi Českomoravský cement a Českomoravský štěrk součástí silné mezinárodní skupiny HeidelbergCement.
- autor: EARCH.CZ *
- publikováno: * 1. 10. 2021