Rodinný dům Dobřichovice
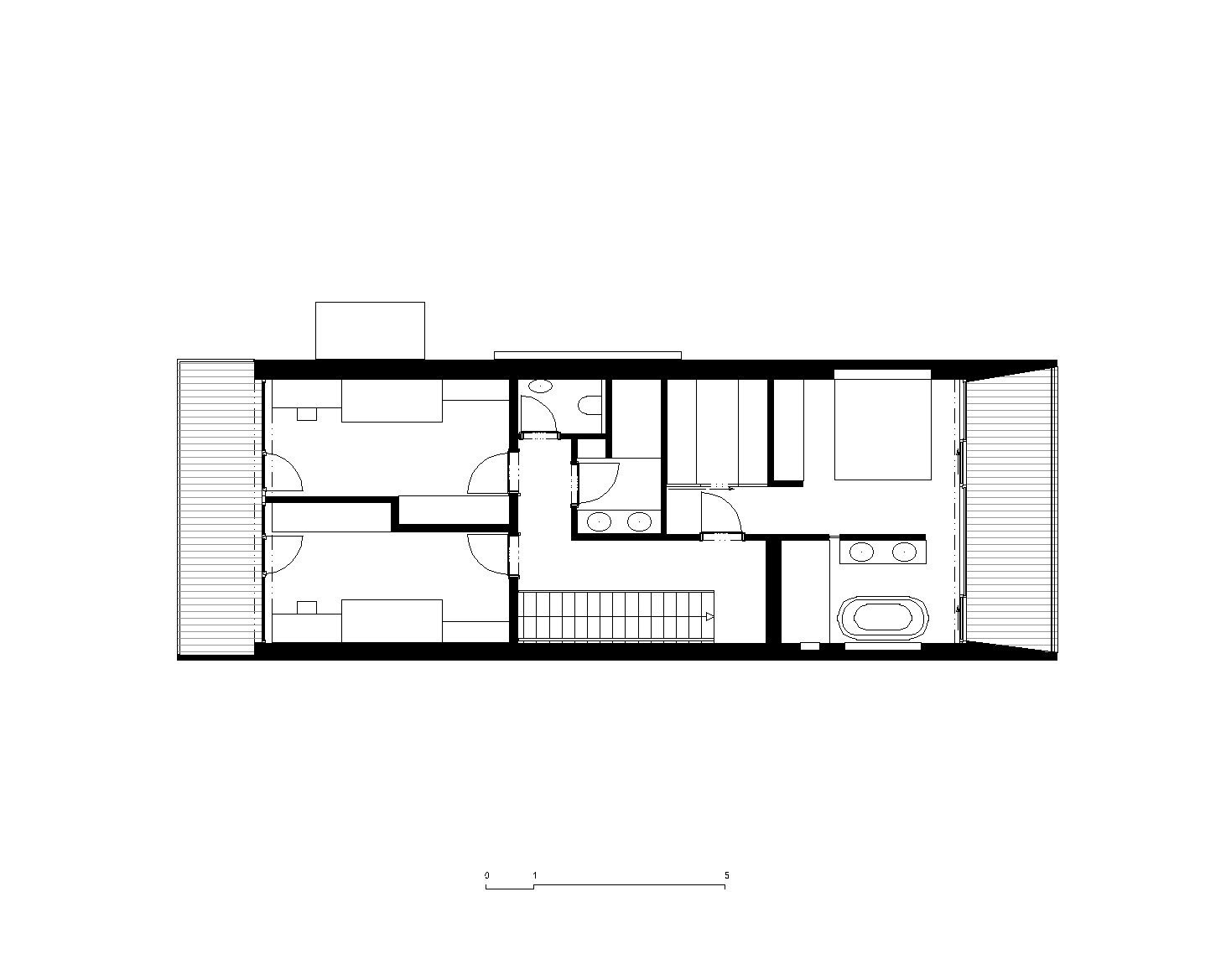
Novostavba rodinného domu je umístěna v komplikovaných podmínkách členitého pozemku a s limitovanou velikostí stavby. Dispozice domu jsou účelné a splňují nároky uživatelů. Řešení interiéru je založeno na kombinacích vybraných základních materiálů použitých v maximální možné míře v jejich přirozených formách.

Cílem návrhu bylo propojení interiéru stavby s exteriérem – jak faktické prostřednictvím prosklených stěn v přízemí, tak i optické v obytných místnostech ve druhém podlaží.

V interiéru je ve vybraných pozicích přiznána základní nosná železobetonová konstrukce stavby, doplněná o interiérové prvky navržené z dubové dýhy a tmavě šedých desek.
- Ateliér: Expert Architects
- Autoři: Petr Vacek, Monika Čížková
- Země: Česká republika
- Město: Dobřichovice
- Realizace: 2018
Mohlo by vás zajímat
Rodinný dům Dobřichovice od Expert Architects
Foto: Archiv Expert Architects
1/19
Rodinný dům Dobřichovice od Expert Architects
Foto: Archiv Expert Architects
2/19
Rodinný dům Dobřichovice od Expert Architects
Foto: Archiv Expert Architects
3/19
Rodinný dům Dobřichovice od Expert Architects
Foto: Archiv Expert Architects
4/19
Rodinný dům Dobřichovice od Expert Architects
Foto: Archiv Expert Architects
5/19
Rodinný dům Dobřichovice od Expert Architects
Foto: Archiv Expert Architects
6/19
Rodinný dům Dobřichovice od Expert Architects
Foto: Archiv Expert Architects
7/19
Rodinný dům Dobřichovice od Expert Architects
Foto: Archiv Expert Architects
8/19
Rodinný dům Dobřichovice od Expert Architects
Foto: Archiv Expert Architects
9/19
Rodinný dům Dobřichovice od Expert Architects
Foto: Archiv Expert Architects
10/19
Rodinný dům Dobřichovice od Expert Architects
Foto: Archiv Expert Architects
11/19
Rodinný dům Dobřichovice od Expert Architects
Foto: Archiv Expert Architects
12/19
Rodinný dům Dobřichovice od Expert Architects
Foto: Archiv Expert Architects
13/19
Rodinný dům Dobřichovice od Expert Architects
Foto: Archiv Expert Architects
14/19
Rodinný dům Dobřichovice od Expert Architects
Foto: Archiv Expert Architects
15/19
Rodinný dům Dobřichovice od Expert Architects
Foto: Archiv Expert Architects
16/19
Půdorys
Foto: Expert Architects
17/19
Půdorys
Foto: Expert Architects
18/19
Pohled
Foto: Expert Architects
19/19