Josef Pleskot představuje unikátní městskou vilu v novém díle pořadu Architektura v betonu
Přední český architekt Josef Pleskot navrhl před pár lety v Praze-Podolí výraznou městskou vilu, která přináší nový impuls do jinak konzervativní zástavby. Dům charakterizuje především pečlivá práce s pohledovým betonem a dalšími materiály v přirozené podobě. Internetová televize EARCH.TV ve spolupráci se společností Českomoravský beton nyní v premiéře uvádí 5. díl cyklu Architektura v betonu věnovaný právě podolské vile architekta Pleskota.
Jihočeský rodák Josef Pleskot patří v současnosti bezesporu k nejrespektovanějším a zároveň nejslavnějším architektům v České republice. Od začátku 90. let, kdy založil vlastní architektonický ateliér AP, zrealizoval více než 60 projektů prakticky všech měřítek i typologií. Mediálně nejznámějším a suverénně nejrozsáhlejším projektem v Pleskotově portfoliu pak představuje celková revitalizace a dostavba industriálního komplexu Dolní oblasti Vítkovice v Ostravě – dílo, jaké u nás nemá obdoby.
S ateliérem AP postavil Josef Pleskot první rodinný dům v polovině 90. let pro Petra Kellnera ve Vraném nad Vltavou. Při zpětném ohlédnutí jde v kontextu divokých devadesátých let o výjimečný příklad vily pro bohatého investora, která ignorovala dobovou nabubřelost forem a touhu po „výjimečnosti“. Svoji výjimečnost vila totiž vyjádřila zcela odlišným způsobem od tehdejší produkce – jednoduchým půdorysným řešením a použitím přírodních materiálů bez větších povrchových úprav.
Tomuto konceptu se Pleskot výrazně přiblížil i v případě městské vily v pražské rezidenční čtvrti nad Podolskou vodárnou. Přestože domy dělí celých dvacet let, používají stejné materiály i další architektonické principy.

Podolská vila ředitele developerské společnosti Crescon Jana Jerieho stojí na svažitém pozemku v klidné Procházkově ulici. Sám Pleskot zmiňuje, že poněkud konzervativní charakter okolí, kde se nacházejí prakticky pouze obytné domy, hrál v návrhu důležitou roli. Architekt si všiml vzájemných podobností okolních staveb a širších vztahů, které chtěl při návrhu vily uplatnit.
Za společné jmenovatele přilehlých domů Pleskot označuje kromě stejného období vzniku jejich kubické základny a oblé tvary různých výčnělků, například balkonů a arkýřů. Z podobných principů vychází celková forma vily. Tvoří ji čtvercové jádro půdorysu a zakulacená nároží vystupujících částí směrem do ulice.
I přes tyto společné znaky novostavby se sousedními domy ovšem vila ze svého okolí jasně vystupuje. Kromě rovné střechy je to dáno hlavně materiálovým zpracováním. Fasády i vnitřní stěny tvoří pohledový beton s obtiskem prken bednění, který místy doplňuje dřevěný obklad. Z ulice upoutají také velká fixní okna s reflexním zasklením, ve kterých se odráží okolní stromy, střechy domů i obloha.

Pohledový beton ovládá jak jak exteriér, tak interiér domu, kde tvoří veškeré stěny včetně koupelny, kuchyně nebo dětského pokoje. Z toho důvodu byla práci s betonem věnována maximální pozornost a drobné detaily jasně potvrzují úspěšnou spolupráci mezi představiteli všech zainteresovaných oborů: od architektů a investora až po řemeslníky, realizační firmu a dodavatele betonu. Josef Pleskot používá odhalené betonové plochy ve svých projektech často, v případě podolské vily ovšem formují celý dům. Jak říká architekt v novém díle pořadu Architektura v betonu, na betonu si nejvíce cení jeho „definitivnosti a solidnosti“, které vytvářejí charakter tvrdého materiálu podobně jako u kamene.
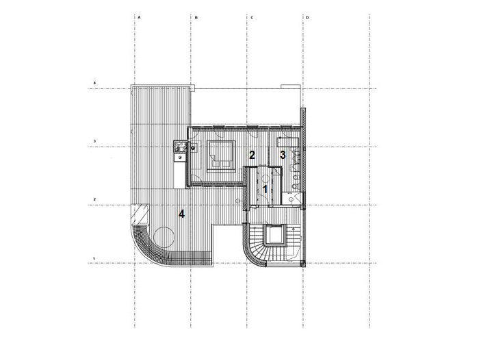
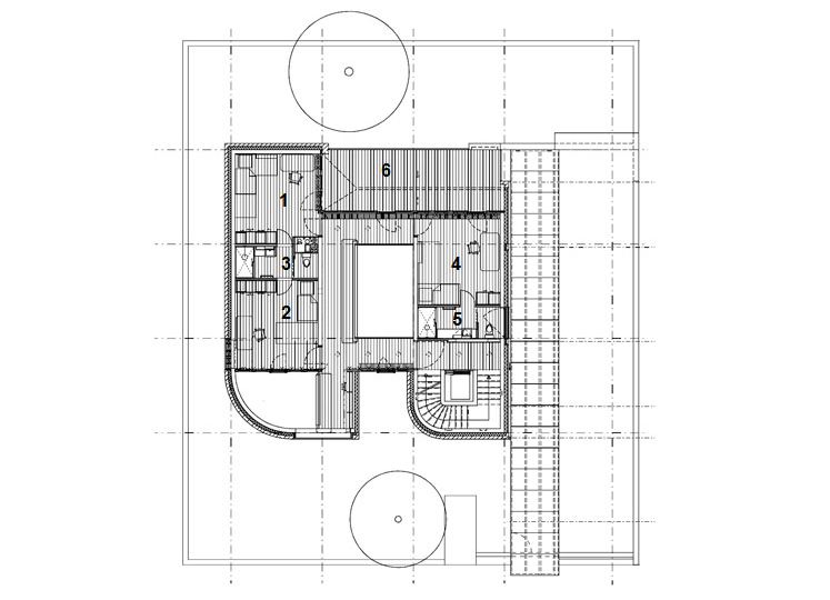
Celý interiér působí velmi světle. Sluneční světlo do něj přichází velkými prosklenými stěnami, okny i světlíky. Šíření světla taky výrazně napomáhá vertikální propojení přízemí s patrem pomocí galerie sloužící zároveň jako knihovna. Přízemí slouží jako společný prostor rodiny, v prvním patře najdeme soukromé pokoje a celé druhé patro pak zabírá hlavní ložnice s koupelnou a vlastní terasou.

Zvýšením úrovně pozemku o necelý metr navíc mohlo vzniknout ještě podzemní podlaží se saunou, vířivkou a technickým zázemím. Kvůli centrálnímu umístění na pozemku dům zabírá velkou část zahrady – tu se proto snaží částečně nahradit několik velkých teras propojující pokoje s venkem.
Navzdory opravdu velkorysým vnitřním prostorům nepůsobí třípodlažní vila mohutně. Přesně naopak. Josef Pleskot totiž velmi šikovně využil sklon pozemku a velkou část hmoty tak „odclonil“ pohledům kolemjdoucích. Podobný koncept přitom Pleskot využil i při návrhu neméně významného bytového domu, na kterém pracoval ve stejný čas jako při návrhu betonové vily. Můžete se ostatně přesvědčit sami – z adresy Procházkova 3 si stačí udělat několikaminutovou procházku do Vápencové 1.

- autor: Matěj Beránek *
- publikováno: * 14. 6. 2018