
Kostel na Smíchově je otevřený všem - k modlitbě i tanci
V Česku se chodí do kostela většinou jen o Vánocích. V Praze na Smíchově to chtějí změnit. Zdejší kostel Českobratrské církve evangelické nabízí kromě bohoslužeb i program pro širokou veřejnost – můžete si tu třeba zatančit.
Karolína Vránková , 22. 12. 2023
Kostel ČCE stojí pod smíchovskou Santoškou už od 30. let 20. století. Za první republiky prožíval zdejší sbor rozkvět, měl až dva tisíce členů, mezi něž patřila i Milada Horáková, členové pořádali akce pro veřejnost a starali se o pozvednutí Smíchova.
Na začátku nového tisíciletí byla ale činnost v útlumu. „Mnohé části budovy byly v předhavarijním stavu a během nedělní sbírky jsme nebyli schopni vybrat ani na topení pro danou neděli,“ vzpomínal na to farář Maroš Klačko v měsíčníku Český bratr; sbor dokonce zvažoval, že velký a náročný sborový dům opustí. Právě za Klačkova působení ale padlo rozhodnutí využít budovu pro všechny a vybudovat tu komunitní centrum.
Více k tématu
Dnes se tu koná sborový program, je tu ovšem také kavárna a malá galerie současného umění pro veřejnost, pořádají se tu kurzy, divadlo nebo pravidelné tančírny. Na jedné z teras je komunitní zahrada, na další chovají včely.
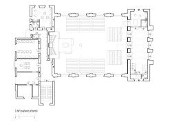
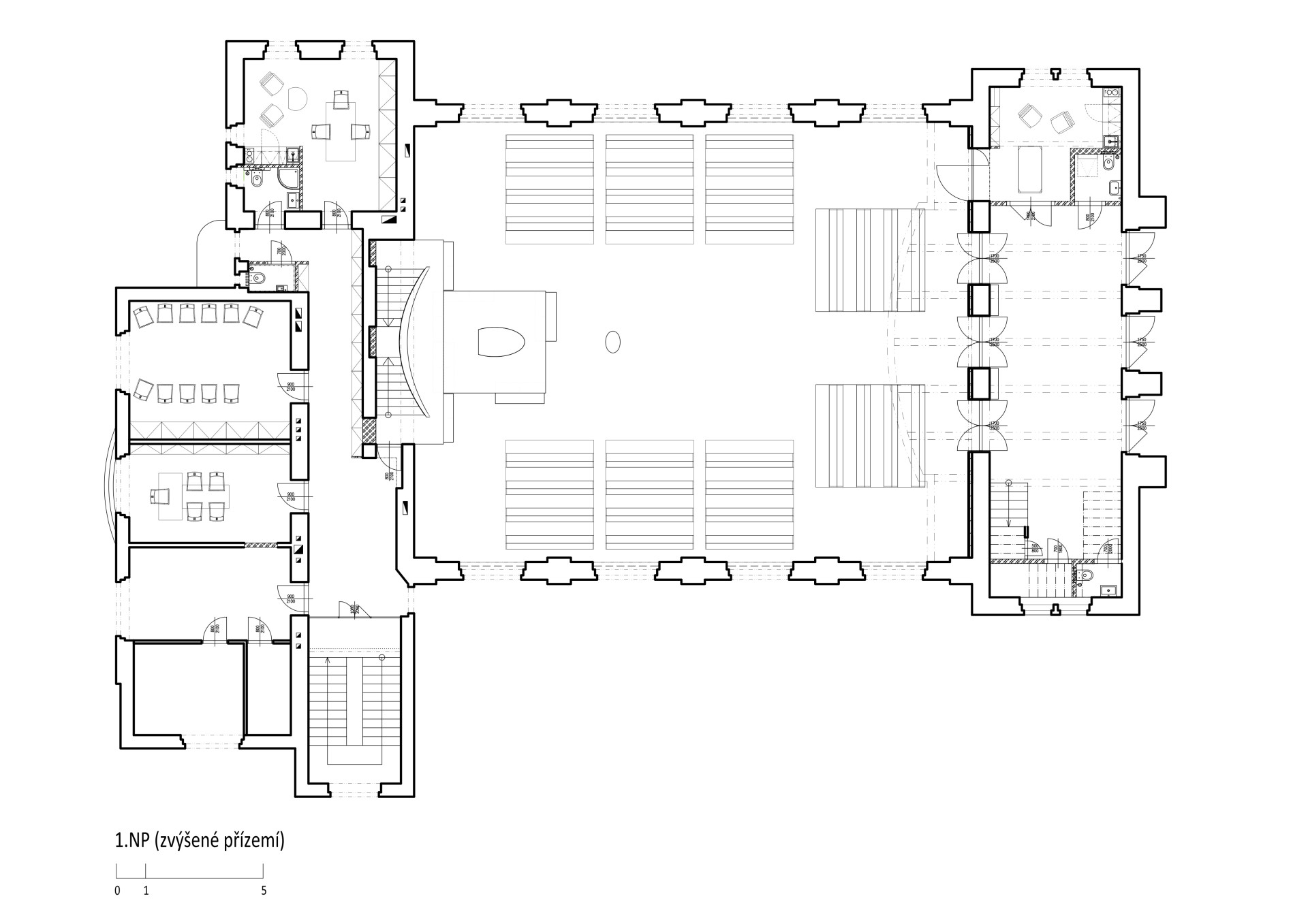
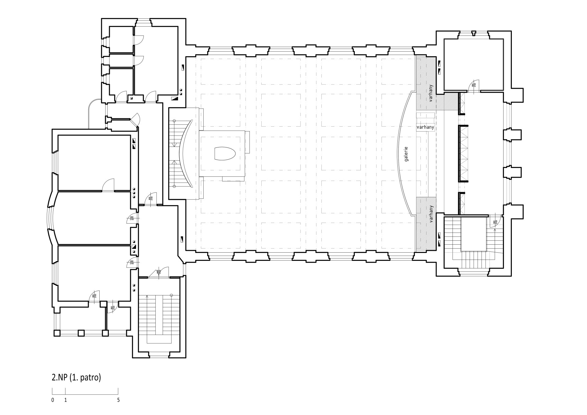
S plánem otevřít kostel veřejnosti a zřídit tu komunitní centrum probíhala také rekonstrukce. Sbor uspořádal otevřenou architektonickou soutěž – jednu z mála v prostředí evangelických církví, kde se většinou obracejí na už osvědčené architekty. Zvítězil v ní projekt ateliéru MCA Pavly Melkové a Miroslava Cikána.

Trochu agresivně barevný žlutý a hnědý interiér architekti sjednotili a spojili. Zlepšili akustiku, takže je tu teď lépe rozumět kázání, ale prostor lze používat také pro koncerty. Další podstatná změna je nábytek – lavice získaly pojízdné podložky, takže je možné je odvézt ke straně a díky tomu tu tančit, za působení kazatele (a tanečníka) Klačka se konaly dokonce taneční bohoslužby.
Barevné a materiálové pojetí je prosté: „Zvolili jsme civilnější charakter zvolených materiálů a tvarosloví: dřevěných nových objektů, očištěného původního dřevěného mobiliáře, obnovených dubových parket, jednoduchých forem původní výzdoby a ztišující jednotné barevnosti, alternující světelné přechody světla a stínu,“ vysvětlují architekti z MCA.
Neokázalé je také nové liturgické zařízení – architekti navrhli kazatelnu, křtitelnici a stůl Páně, který svým tvarem připomíná nakrojený chléb.

Sborový dům byl postaven v roce 1931 na základě vizí člena, presbytera a kurátora Filipa Křížka a stavebních plánů jeho syna, architekta Jaroslav Křížka. A již tehdy bylo v plánu „ubírat se směrem vzdělávání a kultivace člověka“; byla tu knihovna, pořádalo se divadlo, promítaly avantgardní filmy. Za války se pak členové sboru zapojili do odboje v rámci skupiny Předvoj. Docházela sem i Milada Horáková a její manžel Bohuslav Horák. Sbor aktivně fungoval i za socialismu, tradice nebyla vlastně nikdy přerušena.
Dnes je tedy na co navázat. Sborový dům se „otevřel pro širokou veřejnost, která “přináší do evangelického prostředí tvořivost a hledání,“ jak to vysvětlil Maroš Klačko. Rekonstrukce od „neevangelického“ ateliéru MCA je součástí téhle vize.
- Ateliér: MCA atelier s. r. o.
- Spolupráce: Miroslav Cikán, Pavla Melková, Vojtěch Ertl, Radek Novotný, Pavel Košťálek
- Země: Česká republika
- Město: Praha - Smíchov
- Adresa:: Na Doubkové 8, Praha 5
- Projekt: 2019
- Realizace: 2022