Dům pro seniory spojený se školkou. Když architektura sbližuje generace
Bývalá chatová oblast, frekventovaná silnice a blízkost lesa – v tomto prostředí vyrostl neobvyklý soubor staveb, který propojuje domov pro seniory s mateřskou školou. Setkávají se tu dvě generace, které se vzájemně obohacují.
Sára Kročková , 24. 7. 2025
Horní Jirčany se nachází pouhých deset minut od Prahy. I proto tu chaty postupně nahrazují rodinné domy. Nově vzniklý dům pro seniory se školkou reaguje na nové potřeby obce, a hlavně vytváří místo, kde se potkávají dvě odlišné generace, které se od sebe učí.

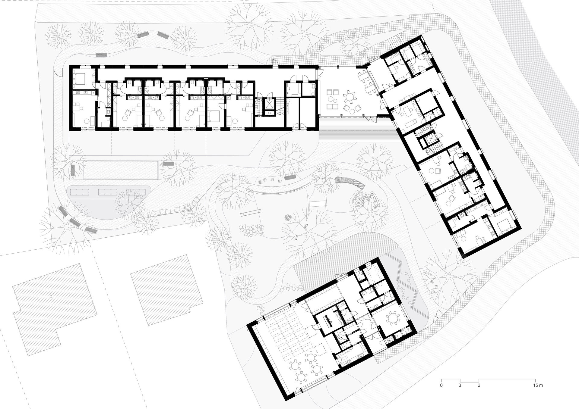
Domy pro seniory, navržené jako menší objemy s jemně odlišenými fasádami, si zachovávají lidské měřítko. „Budovy slouží jako hluková bariéra vnitřní pobytové zahradě, společné pro oba provozy,“ popisují architekti z ateliéru ti architekti.
Byty jsou orientovány do zahrady zalité světlem, zatímco směrem k silnici jsou umístěny domovní komunikace. Díky tomuto uspořádání se podařilo vytvořit klidné prostředí odcloněné od silnice, jež je pro starší obyvatele zásadní.
Mateřská škola s jednou třídou a komunitní učebnou navazuje svým tvarem na sousední dům pro seniory, a přesto si zachovává vlastní charakter. „Na první pohled lze poznat, že k sobě patří, přesto díky odlišnému zpracování fasády vytváří výrazný kontrast,“ dodávají architekti. Školka se nachází na okraji pozemku u lesa a umožňuje dětem přímý vstup na zahradu plnou přírodních herních prvků.

Zahrada hraje v celém konceptu klíčovou roli. Dřevěné lávky mezi bylinkami, travnaté valy, vodní koryto s hrázkami a stín pod vzrostlými stromy podporují spontánní setkávání dětí a seniorů. Právě tady dochází k tomu nejcennějšímu – ke vzájemnému sdílení času, úsměvů i zkušeností. Je to odvážná kombinace věkových skupin, ale zdá se, že funguje.

Projekt ukazuje, že když je záměr investora podpořen kvalitní architekturou, může vzniknout místo, které pomáhá proměňovat život v obci k lepšímu. Domov pro seniory a školka nejsou jen dvě oddělené instituce, ale sousedé, kteří se mohou vzájemně obohatit, a prostor kolem nich podporuje přirozený kontakt a vznik komunity.
Více k tématu
A není divu, že si tohoto neobvyklého vizionářského propojení všimla i odborná veřejnost. Projekt, který vznikl ve spolupráci s obcí Jesenice, byl nominován na Českou cenu za architekturu, kde jeho kvality ocenila mezinárodní porota.
- Ateliér: ti architekti
- Autoři: Martin Machů, Martina Loskotová, Pavel Zezula
- Spolupráce: Jiří Dvořák, Radka Matoušková
- Země: Česká republika
- Město: Jesenice
- Realizace: 2024