3D/BIM pasport - SCAN4BIM

Mračna bodů společně s panoramatickými fotografiemi primárně SCAN4BIM využívá pro vynesení (vymodelování) stávajícího stavu objektu. Kromě toho mohou být mračna bodů také podkladem k porovnání stávajícího (aktuálního) stavu s dřívějšími stavy objektu. Jednotlivá mračna bodů zaměřená v různých časových etapách lze využít pro sledování vývoje konstrukcí, respektive k identifikaci problémů jednotlivých stavebních konstrukcí.
3D laserové skenování svým způsobem změnilo tradiční dosavadní postupy zaměřování staveb. 3D/BIM pasport zpracovaný na podkladu výstupů sběru dat pomocí 3D laserového skenování přináší nové možnosti. Zatímco dřívější tradiční postupy zaměřování garantovaly výstupy především v podobě 2D dokumentace ve formě půdorysů, řezů či pohledů zaměřované stavby, nové technologie postavené na 3D laserovém skenování se řadí k progresivním technologiím. Zpracování zaměření a zdokumentování stávajícího stavu stavby pomocí 3D laserového skenování přináší nové možnosti výstupů, především s ohledem na digitální podobu výstupů. Tradiční 2D dokumentace tak nemusí být zdaleka jediným výstupem, nové postupy nám nabízejí nové možnosti.
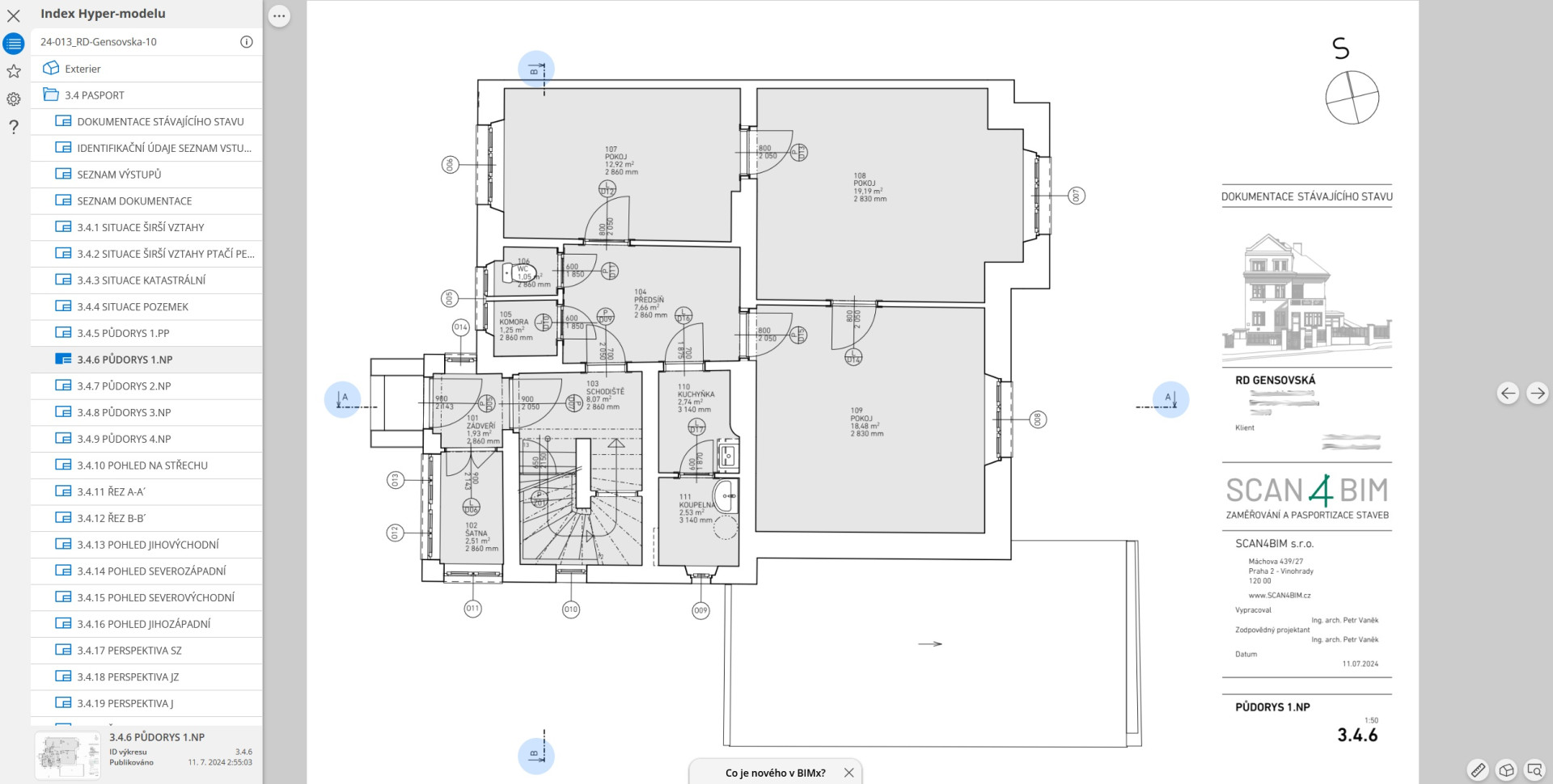
Jedním z nich může být například 3D prezentace projektu pomocí nástroje BIMx. Digitální data lze interpretovat v různých formátech pro různá zařízení. Příkladem prezentace může být možnost publikovat 3D/BIM model v kombinaci s 2D projektovou dokumentací stávajícího stavu objektu do prostředí aplikace BIMx. Prostředí je dostupné jako webová (Win, MacOS) i mobilní aplikace pro platformu Android a iOS.
Další produkty




