Architekti z ateliéru A8000 dokončili přestavbu pavilonu ze 70. let na českobudějovickém výstavišti

Pavilon Z na výstavišti v Českých Budějovicích získal při rekonstrukci zcela novou fasádu a interiéry. Z původní stavby ze 70. let zachovali architekti ocelovou konstrukci, která prošla složitými inženýrskými úpravami.
Adéla Vaculíková , 2. 3. 2022 / Advertorial
Architekti ze studia A8000 na výstavišti v Českých Budějovicích realizovali už svůj druhý projekt. Vedle novostavby Pavilonu T z roku 2010 si teď na konto připsali ještě rekonstrukci jednoho z pavilonů starších. Pavilon Z, patřící k nejvýraznějším budovám výstaviště, zde v 70. letech realizovali architekti Libor Erban a Jan Benda. Stavba dlouhá léta sloužila především velké zemědělské výstavě Země živitelka, nyní ale přestala vyhovovat. Výstaviště České Budějovice se proto rozhodlo podrobit pavilon kompletní rekonstrukci. Výsledkem se stal multifunkční objekt vhodný pro různé druhy společenských a kulturních akcí.
Více k tématu
Původní skelet jako výchozí princip
Architekti ze studia A8000 při rekonstrukci záměrně navázali na původní architektonický koncept ze 70. let − tří na sebe vrstvených a postupně se zvětšujících kvádrů. Z původní stavby zachovali její ocelovou konstrukci, kterou skryli pod nový vzdušný plášť. „Původní pavilon byl odstrojen na kost. Odhalený ocelový skelet je nově přiznán a povýšen na výchozí princip interiéru,“ vysvětlují svůj záměr architekti.

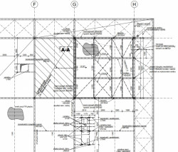
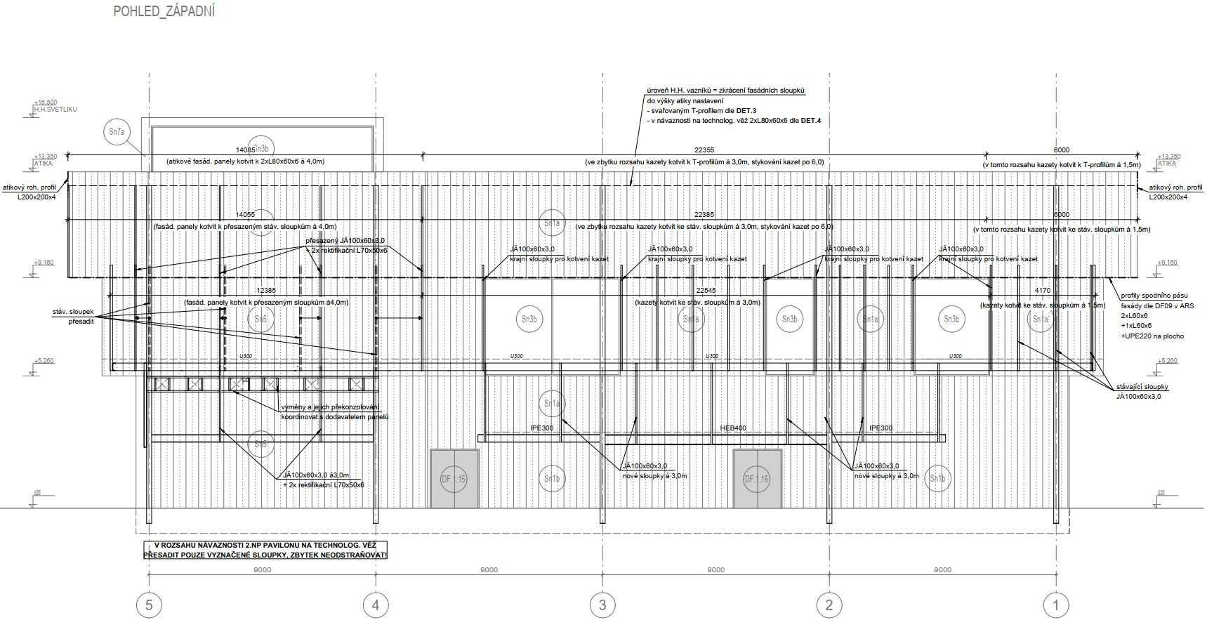
Fasádu, které dominuje bílá barva a transparentní úseky z čirého a profilovaného nazelenalého skla, do velké míry vynáší skutečně původní hmota konstrukce. Výzvu statického řešení rekonstrukce si na sebe vzala pražská firma STATIKON, která ocelový skelet sanovala a zesílila. „Obecně bylo naší snahou co nejvíce z původní konstrukce zachovat, tomu odpovídala i použitá technologie spřažení plechobetonových stropních desek se stávajícími stropními nosníky, díky níž byla navýšena zatížitelnost stropů dle současných normových požadavků. Střešní vazníky byly v rozhodujících částech zesíleny ocelovými příložemi z důvodu lokálního přitížení střechy technickými rozvody a radiokomunikačními technologiemi, stejně jako závěsy pro divadelní a světelnou techniku nad atriem sálu,“ vysvětluje řešení Petr Müller ze společnosti STATIKON. Samotnou efektní fasádu vynáší ocelové krakorce ve stropní konstrukci.

Prostorový model konstrukce
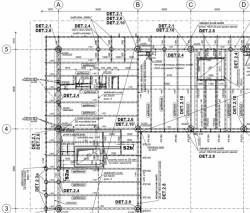
Výkresovou dokumentaci projektanti statiky vytvořili za použití programu Allplan. Vedle 2D výkresů zpracovali i prostorový 3D model celé konstrukce ve statickém programu Scia Engineer. Vytvořený model následně exportovali do formátu .ifc a zpětně importovali do Allplanu. „S tímto modelem jsme dále pracovali v rámci koordinace s kolegy stavaři a profesanty a řešili kolize plynoucí z probíhající stavby, což se zejména v prostoru komplikované konstrukce střechy ukázalo jako výrazná pomoc až nutnost,“ vysvětluje Petr Müller.

Vzdušnost a variabilita
Hlavními aspekty rekonstrukce se stala vzdušnost a variabilita. Vedle nové lehké fasády se obojí projevilo i uvnitř pavilonu. Hlavní hala, která je srdcem celé stavby, nově funguje jako multifunkční prostor s kapacitou až 850 míst. „Základní myšlenkou bylo vytvořit multifunkční a maximálně variabilní prostor, nikoliv jednoúčelovou halu. Pavilon by měl sloužit různorodým akcím, jako jsou veletrhy, výstavy, kongresy, ale i plesy či koncerty,“ popisuje architekt Martin Krupauer z ateliéru A8000. Vedle hlavní haly pavilon nabízí i další dva menší sály, které lze rovněž upravovat podle aktuální potřeby.
Interiérům dominuje vedle odhalené konstrukce zejména jednoduché černo-bílé ladění. Právě hlavní halu architekti navrhli jako celo-černou, světlo do ní přivádí především rozsáhlé skleněné plochy, které zároveň umožňují propojit interiér s exteriérem. Výhodou černé haly je ale také to, že se od svého okolí může kompletně izolovat, a to díky těžkým závěsům. „Jakmile jsou rozhrnuté, vniká okolní zeleň přímo do nitra sálu, jakmile se zatáhnou, vzniká naopak dokonalý blackbox,“ vysvětlují architekti.

Architektům z ateliéru A8000 se v Českých Budějovicích podařilo díky zachování konstrukce pavilonu ze 70. let navázat na jeho původní výraznou siluetu. Výstaviště v Českých Budějovicích tak nepřišlo o svou ikonickou stavbu, která na sebe díky své centrální poloze v areálu strhává velkou míru pozornosti.
- Autoři: Martin Krupauer, Pavel Kvintus, Daniel Jeništa, Petr Hornát
- Ateliér: A8000
- Spolupráce: Anežka Vonášková, Jaroslav Kedaj
- Město: České Budějovice
- Projekt: 11/2019–04/2021
- Realizace: 12/2020–09/2021
- Zastavěná plocha: 2 400 m²
- Užitná plocha: 3 200 m²
- Obestavěný prostor: 28 500 m³
- Celkově náklady: 141 milionů Kč
- Architektonicko-stavební řešení: Zdeněk Fux, Milan Oktabec, Ladislav Krlín
- Dodavatel stavby: OHLA ŽS, a.s
- Technický dodavatel: ŠTROB & SPOL., s.r.o.
- Statika: STATIKON Solutions s.r.o.