1/22
Rekonstrukce kostela sv. Anny ve Verneřicích - foto
Foto: Jaroslav Antoš
2/22
Rekonstrukce kostela sv. Anny ve Verneřicích - foto
Foto: Jaroslav Antoš
3/22
Rekonstrukce kostela sv. Anny ve Verneřicích - foto
Foto: Jaroslav Antoš
4/22
Rekonstrukce kostela sv. Anny ve Verneřicích - foto
Foto: Jaroslav Antoš
5/22
Rekonstrukce kostela sv. Anny ve Verneřicích - foto
Foto: Jaroslav Antoš
6/22
Rekonstrukce kostela sv. Anny ve Verneřicích - foto
Foto: Jaroslav Antoš
7/22
Rekonstrukce kostela sv. Anny ve Verneřicích - foto
Foto: Jaroslav Antoš
8/22
Rekonstrukce kostela sv. Anny ve Verneřicích - foto
Foto: Jaroslav Antoš
9/22
Rekonstrukce kostela sv. Anny ve Verneřicích, stav před rekonstrukcí - foto
Foto: Jaroslav Antoš
10/22
Rekonstrukce kostela sv. Anny ve Verneřicích, stav před rekonstrukcí - foto
Foto: Jaroslav Antoš
11/22
Rekonstrukce kostela sv. Anny ve Verneřicích, stav před rekonstrukcí - foto
Foto: Jaroslav Antoš
12/22
Rekonstrukce kostela sv. Anny ve Verneřicích, Pohled severní na zřícenou část korunní římsy v severozápadním průčelí - 2007 - foto
Foto: Jaroslav Antoš
13/22
Rekonstrukce kostela sv. Anny ve Verneřicích, Pohled na vyměněnou část tesařské konstrukce - foto
Foto: Jaroslav Antoš
14/22
Rekonstrukce kostela sv. Anny ve Verneřicích, stav před rekonstrukcí, Prostor pro manipulaci byl v prostoru lucerny velmi stísněný. Montážní středový sloup je podložen hydraulickým zvedákem, kterým byla celá horní část věže nad lucernou vyzdvižena. - foto
Foto: Jaroslav Antoš
15/22
Rekonstrukce kostela sv. Anny ve Verneřicích, stav před rekonstrukcí, Pohled na vyměněnou část tesařské konstrukce - foto
Foto: Jaroslav Antoš
16/22
Rekonstrukce kostela sv. Anny ve Verneřicích, Po dokončení nosné tesařské konstrukce bylo provedeno nové bednění. Nově byla rovněž vyrobena obvodová římsa z masivu ve spodní části lucerny v původní profilaci. - foto
Foto: Jaroslav Antoš
17/22
Rekonstrukce kostela sv. Anny ve Verneřicích, stav před rekonstrukcí, Nové bednění horní části lucerny bylo provedeno přesně podle původního originálu. - foto
Foto: Jaroslav Antoš
18/22
Rekonstrukce kostela sv. Anny ve Verneřicích, Na opravené bednění opláštění věže bylo provedeno nové oplechování z měděného plechu. Jeho veškerá profilace odpovídá původnímu provedení. - foto
Foto: Jaroslav Antoš
19/22
Rekonstrukce kostela sv. Anny ve Verneřicích - návrh barevnosti fasády - pohled jižní
20/22
Rekonstrukce kostela sv. Anny ve Verneřicích - návrh barevnosti fasády - pohled západní
21/22
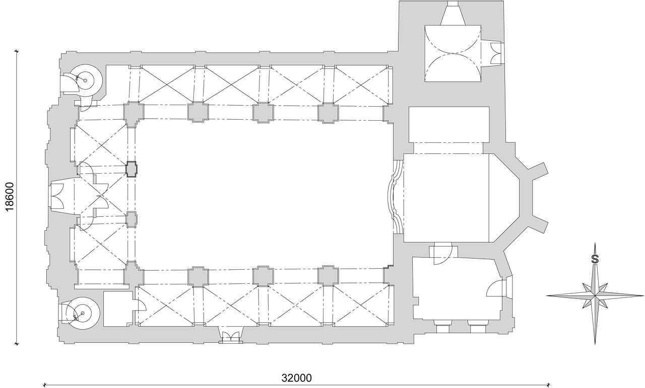
Rekonstrukce kostela sv. Anny ve Verneřicích - návrh barevnosti fasády - půdorys
22/22