
Bývalou faru na severu Čech doplnila střídmá přístavba. Fungují jako spolkové centrum i knihovna
Vratislavice nad Nisou mají nové spolkové centrum. Navrhl ho liberecký ateliér Atakarchitekti, který do dvou objektů vměstnal místnosti pro činnost spolků, knihovnu i kinosál.
Adéla Vaculíková , 8. 11. 2022
Vratislavice nad Nisou byly v minulosti velkolepým centrem textilního průmyslu spojeného s továrnou Ginzky. Původně malá obec je dnes městskou částí Liberce, která vedle své industriální minulosti láká také na současnou architektu. Lokální ateliér Atakarchitekti zde zrekonstruoval starou faru a připojil k ní novostavbu opláštěnou falcovaným plechem.
„Objekt z roku 1914 v minulosti sloužil mimo jiné jako sirotčinec, školka a naposledy byl využíván jako učiliště. Záměrem městské části bylo do domu kromě knihovny umístit i menší multifunkční sál, místnosti pro spolky a mateřské centrum,“ objasňují historii bývalé fary architekti Jiří Janďourek a Ondřej Novák. Přes sto let stará stavby nyní prošla komplexní rekonstrukcí, která se řídila původní podobou budovy, ačkoliv byla vážně poškozená. „Z původního domu se oproti předpokladům zachovalo jen obvodové zdivo dvou pater. Kvůli dřevomorce musel být odstraněn krov a veškeré dřevěné stropy. Krov byl nahrazen kopií starého a zakryt šablonami z přírodní břidlice, stropy byly vyměněny za únosnější spřaženou konstrukci z oceli a betonu,“ vysvětlují architekti.
Více k tématu
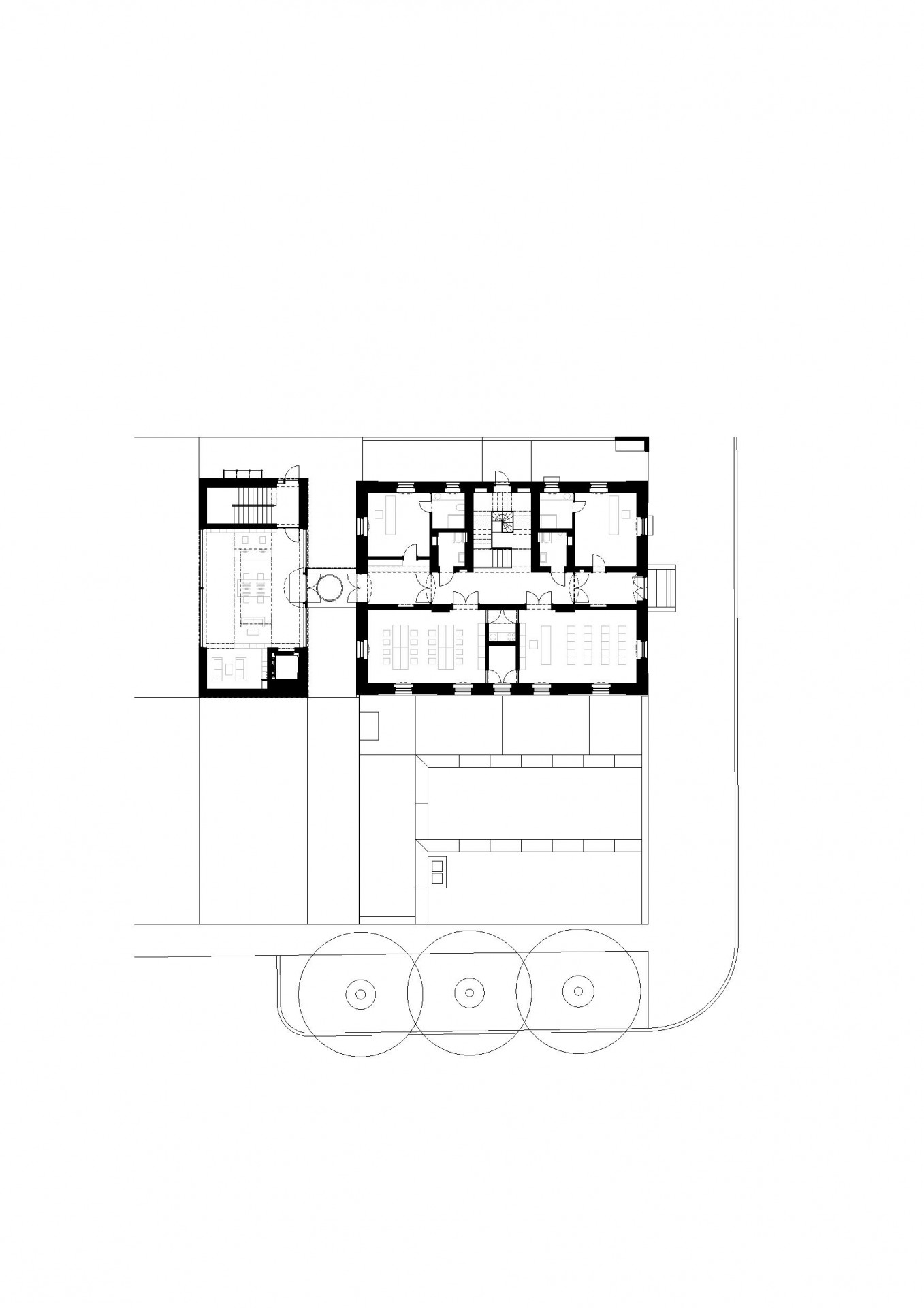
Nový vedlejší objekt se svou elementární formou od původní budovou fary zřetelně odlišuje. Přesto ho architekti koncipovali tak, aby svou formou i umístěním projevoval citlivost k okolí. „Velikost, tvar a umístění přístavby vycházejí z kontextu zámeckého parku a objektu fary, ale i ochranných pásem vzrostlých stromů a vedení sítí infrastruktury,“ říkají. Společně dnes stará a nová budova fungují jako spolkové centrum IGI Vratislavice.
Součástí projektu byla také kultivace okolí. Dvě stavby společně formují nový veřejný prostor, který lze využívat k různým akcím. Rozvíjí přitom urbanistickou stopu města a centrum obce definované radnicí, kostelem a zámeckým parkem.

Objekty jsou vzájemně propojeny na několika úrovních – v suterénu a také v patře krytým proskleným mostkem. V původní stavbě našly své místo převážně prostory věnované spolkovým činnostem. V patře se nachází dětské oddělení knihovny, které se otevírá až do krovu mansardové střechy. Součástí je ale i mateřské centrum, které je naopak situované do původního suterénu. „Po vybetonování nových stropů a vyskládání kleneb daly hluboké základy stavby vzniknout dalšímu využitelnému patru. Odtěžením terénu z jižní strany se k němu dostalo denní světlo a z vyhloubené jámy vznikl základ nového náměstíčka,“ popisují Jiří Janďourek a Ondřej Novák.
Sousední novostavba je již kompletně věnovaná knihovně s kinosálem v suterénu. Interiéry se do okolí otevírají převážně pásovými okny. „V nejvyšším patře je kontakt panoramatickým oknem tak těsný, že čtenáři v čítárně mají pocit, že sedí přímo v korunách stromů,“ poznamenávají autoři.
Formálně odlišné objekty na závěr vizuálně sjednocuje barevné provedení jejich fasád. Vnitřní prostory obou částí centra IGI Vratislavice zase propojuje důraz na odhalené konstrukční materiály a mobiliář ze dřeva.

- Autoři: Jiří Janďourek, Ondřej Novák
- Ateliér: atakarchitekti
- Spolupráce: Jana Janďourková Medlíková
- Země: Česká republika
- Město: Liberec – Vratislavice nad Nisou
- Investor: Městský obvod statutárního města Liberce – Vratislavice nad Nisou
- Projekt: 2018
- Realizace: 2019-2021
- Užitná plocha: 1247 m2
- Zastavěná plocha: 590 m2
- Obestavěný prostor: 6446 m3
- Náklady: 86 000 000 Kč
- Dodavatel stavby: Brex s.r.o.