
Na první pohled odtažitý, uvnitř srdečný. Dům podnikatele z jihu Čech po (skoro) dvaceti letech
Sousedé proti němu podepisovali petici a ani dnes ještě není úplně dokončený. Tenhle originální dům od architekta Ivana Kroupy navštívil Filip Landa, šéfredaktor časopisu ERA21. Povídal si (a mlčel) s jeho majitelem. Betonová vila prý odráží jeho zádumčivou duši.
Filip Landa , 4. 7. 2025
Vnímat architekturu
Horké letní odpoledne, ve stínu ořešáku nasloucháme šumění lehkého vánku, zpěvu ptáků a zádumčivému tichu pana majitele, kterým prokládá své věty se snahou o precizní formulaci myšlenek. Jeho niterné zážitky z návštěvy kaple Ronchamp jsou však slovy nesdělitelné, a tak se zase ponořujeme do poklidné mlčenlivosti. Zaznamenat se mi podařilo jedinou tezi: Ronchamp od Le Corbusiera je prostředí, které rozevírá nové pohledy, otvírá srdce; dům ve Včelné od Ivana Kroupy se naopak usebírá dovnitř, do soustředěnosti. Kaple je harmonie, rodinný dům je jeden tón.

Nejsem zde poprvé a ani se nejedná o moje první setkání s tandemem architekta Ivana Kroupy a stavebníka Jaroslava Karmáška. Už před osmi lety jsem psal text o dostavbě tiskárny Karmášek v Českých Budějovicích (viz také ERA21 #06/2015). Samotná polygrafická provozovna, respektive první fáze její výstavby z roku 2001, stála na začátku jejich souznění. „Koupil jsem si tehdy knihu o současné architektuře a začal jsem hledat vhodného kandidáta pro návrh nového sídla firmy, kterým jsem chtěl navázat na tiskařskou tradici naší rodiny. Nejdříve jsem hledal přímo v Budějovicích, s několika architekty jsem i mluvil, dokonce už jsem měl hotový projekt, ale pořád jsem s tím nebyl spokojený,“ vzpomíná na počátky realizace svého záměru tehdejší ředitel tiskárny, který už před časem předal vedení firmy svému synovi. A právě syn mu jednou přinesl vytržené tři stránky z časopisu Reflex, kde byl publikovaný dům v Mukařově od Ivana Kroupy. „Vše do sebe zapadlo a já přirozeně věděl, že to je ono. Jako když hledáte partnerku a zničehonic víte, že tohle je ta pravá. S architektem Kroupou započala naprosto bezvadná spolupráce.“
Pro dům hledal několik let místo po celém okolí Budějovic, až zakotvil ve Včelné, pár kilometrů od krajského města. V klasické zástavbě meruňkových fasád s valbovými střechami působí vila jako osvěžující zjevení. „Chtěl jsem, aby Ivan navrhl dům pro mou ženu. Věděl jsem, že si s ním natolik rozumím, že není potřeba zadání více upřesňovat. Samozřejmě následovala fáze diskuzí nad optimálním tvarem a dispozičním řešením, až z toho nakonec vznikl opět dům spíše pro mě,“ říká jeho obyvatel s lehkým úsměvem.
Nedokončené ideály
Za našimi zády se nachází citlivě lapidární dřevostavba kůlny – garáže pro karavan, taktéž dílo Ivana Kroupy. Od ořešáku máme naopak výhled na boční fasádu zděného domu, dosud nedokončenou a jakoby zjizvenou. „Setkávám se s námitkami, proč můj dům nemá omítku. Ve skutečnosti má jenom tu základní – většina byla omítnuta strojně, jenom tamhle jsou stopy ruční práce,“ ukazuje pan domácí na čtvercovou plochu. „Už tu byly čtyři firmy, ale žádná nechtěla vytvořit vrchní omítku ručně. Myslím, že někteří řemeslníci ani nepochopili, co po nich chci. Strojní omítka je prý krásná, hladká, bez fleků. Nechápali, že po nich někdo chce opak. A tak zkrátka čekám, že třeba jednou bude méně práce a najde se schopný řemeslník, který by to dotáhnul.“ Dokud se nedokončí omítka, nedokončí se ani strop vstupního zápraží, z něhož i po šestnácti letech trčí připravené kabely pro osazení svítidel.

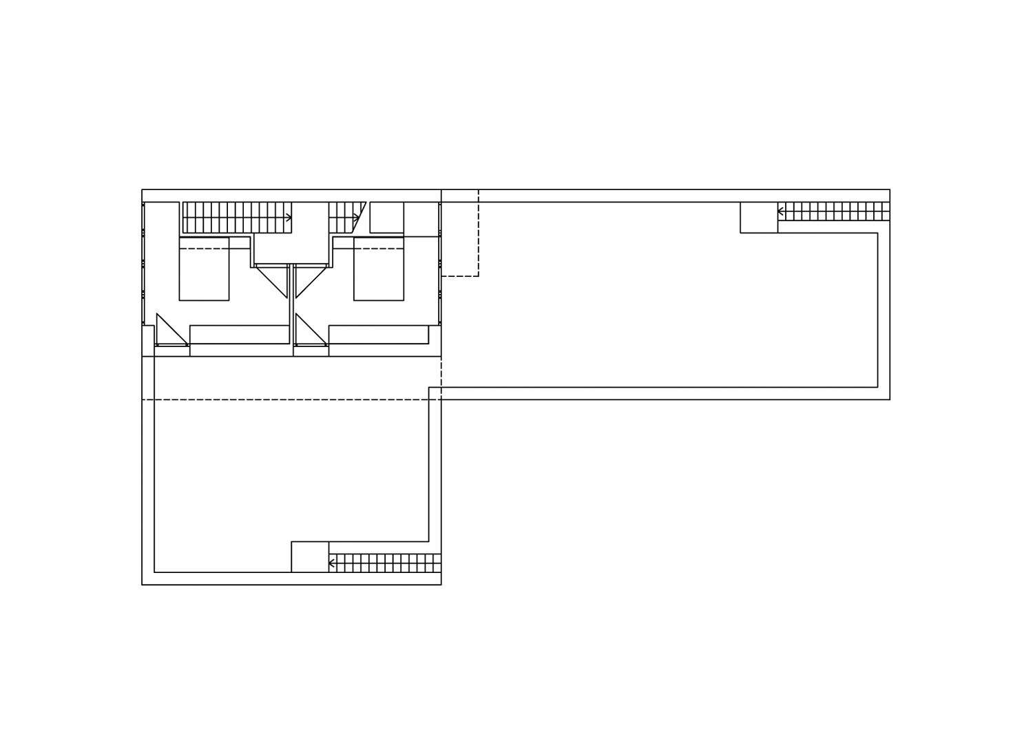
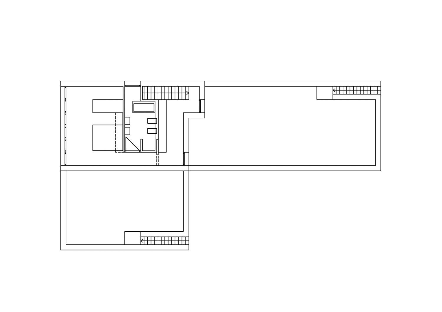
Poklidnou a tichou rozpravu s majitelem zničehonic naruší hlášení obecního rozhlasu. „Je to tady trochu ‚Buranov‘,“ pokračuje pan Karmášek, který v příležitostném boji za lepší architekturu i veřejný prostor zůstává při zasedáních obecního zastupitelstva osamocen a nepochopen. U místních jeho dům vždy budil spíše rozpaky. „Vyslechl jsem si různé názory. Proti stavbě se podepisovala petice a tehdejší starostka dokonce prohlásila, že kvůli tak ošklivému baráku už nikdy nepůjde touto ulicí.“ Objekt přitom poměrně přirozeně reaguje na okolní zástavbu. Pevně stojící parter s hlavním obytným prostorem je největší, směrem nahoru hmota ubývá, v horní ložnicové části se zase drobně rozšiřuje.
Úzkými venkovními schodišti, která samozřejmě nesplňují žádnou normu, stoupáme na střešní terasu. Ani ta není dosud dokončena. Na terasu lze v patře vstoupit ze dvou místností, které slouží spíše jako pracovna nebo hostinský pokoj. V době výstavby domu už byly obě děti odrostlé, takže v něm de facto nikdy nebydlely. Nelze si nevšimnout motivu známého z Karmáškovy budějovické tiskárny – totiž heraklitu v podbití přesahů ložnicového patra.

Promyšlený interiér
A pak už pokračujeme hlavním vstupem dovnitř. Kolem technického a hygienického zázemí a drobné pracovny do hlavního obytného prostoru. Kuchyně od obýváku a jídelního koutu trochu oddělená, přesto kolem dokola průchozí. V centru dění kulečníkový stůl. Dle svých slov si pan majitel občas zahraje. Unikátní závěsy v nepopsatelné metalické barvě z dílny paní Kroupové. Otočná skříňová stěna, která dokáže uzavřít vstup na schodiště do horních podlaží. A nová kamna jako alternativní zdroj vytápění, jenž zrovna teď přes léto nahrazuje původní krb, který prý žádné teplo nedával. V současné chvíli je nám uvnitř docela vedro, avšak pan domácí prý uživatelský komfort v podobě vytápění či chlazení nikdy neřešil. Podstatné jsou pro něj jiné věci.

Stoupáme do dvou vyšších podlaží, všímáme si promyšleného zábradlí vytvořeného z jednoho kusu kovové trubky, důmyslně řešených úložných prostorů, komínu zabudovaného jako součást skříně, průhledů na vzdálené horizonty i výhledu do koruny zvláštního stromu z mistrovské ložnice. Každému detailu zde byla věnována náležitá péče.
Více k tématu
Při návštěvě jsme toho zažili mnohem více. Někdy je lepší méně mluvit a více vnímat. Zkušenost je nepřenosná. Loučíme se se svébytnou stavbou i s její dost možná trvalou nedokončeností, jakož i s nedoslovnou a citlivou povahou pana majitele, který nás po celou dobu hostil a prováděl domem bosý.
Článek spolu s dalšími reportážemi vyšel v časopise ERA21 #04 2023 Rodinné domy dnes II.
- Autoři: Ivan Kroupa, Tomáš Bouma
- Ateliér: Ivan Kroupa architekti
- Země: Česká republika
- Město: Včelná
- Investor: Jaroslav Karmášek
- Projekt: 2004
- Realizace: 2008
- Plocha pozemku: 925 m²
- Zastavěná plocha: 204 m²