Z kulturní památky moderní kulturní centrum Olomouce. Červený kostel získal po rekonstrukci odvážnou přístavbu
Červený kostel v Olomouci se po více než šedesáti letech otevřel veřejnosti. Skrze důkladnou rekonstrukci se původní sklad knih proměnil k nepoznání. Nová přístavba, která kostel spojuje s ředitelstvím knihovny, umožnila proměnit původně nefunkční místo do podoby nového kulturního centra města.
EARCH.CZ , 14. 6. 2023
Olomoucký neogotický Červený kostel byl postaven roku 1902. Od roku 1959 sloužil jako depozit knih Vědecké knihovny Olomouc a byl tudíž veřejnosti uzavřen. Luteránský neogotický kostel, ležící mezi Čechovými sady a Horním náměstím, byl navíc původně oplocen a nevytvářel kolem sebe přirozeně veřejný prostor uvnitř centra města. „Olomoucký kraj jako vlastník této památkově chráněné stavby se rozhodl vybudovat pro uskladnění knižního fondu nový objekt s tím, že kostel může následně sloužit ke kulturním účelům pro potřeby Vědecké knihovny, která budovu užívá.“
Více k tématu
Zde padlo rozhodnutí rekonstruovat kostel takovým způsobem, aby mohl sloužit jako komorní koncertní a divadelní sál, prostor pro veřejná čtení, přednášky, výstavy a mnoho dalších kulturně-společenských akcí. Podstatou architektonického návrhu olomouckého ateliéru atelier-r bylo rekonstruovat a proměnit budovu kostela do podoby nového kulturního prostoru uvnitř centra města umožňující flexibilní náplň, který se namísto uzavření městu naopak maximálně otevře.

Kvůli kritickému a zanedbanému stavu kostela bylo nutné provést několik opatření, aby se kostel vůbec podařilo zachovat. Byly zpevněny základy, sanováno staré zdivo, opraveny omítky a vnější fasáda. Největší pozornost byla věnována krovu. „Krov byl díky zatékání rozsáhle poškozen a hrozil zřícením, proto došlo k jeho výměně s maximální snahou o navrácení původních, nepoškozených prvků. Na místa původních dekorativních prvků střechy, jež se nezachovaly, byly doplněny soudobé artefakty z dílny olomouckého sochaře Jana Dostála,“ doplňují architekti.
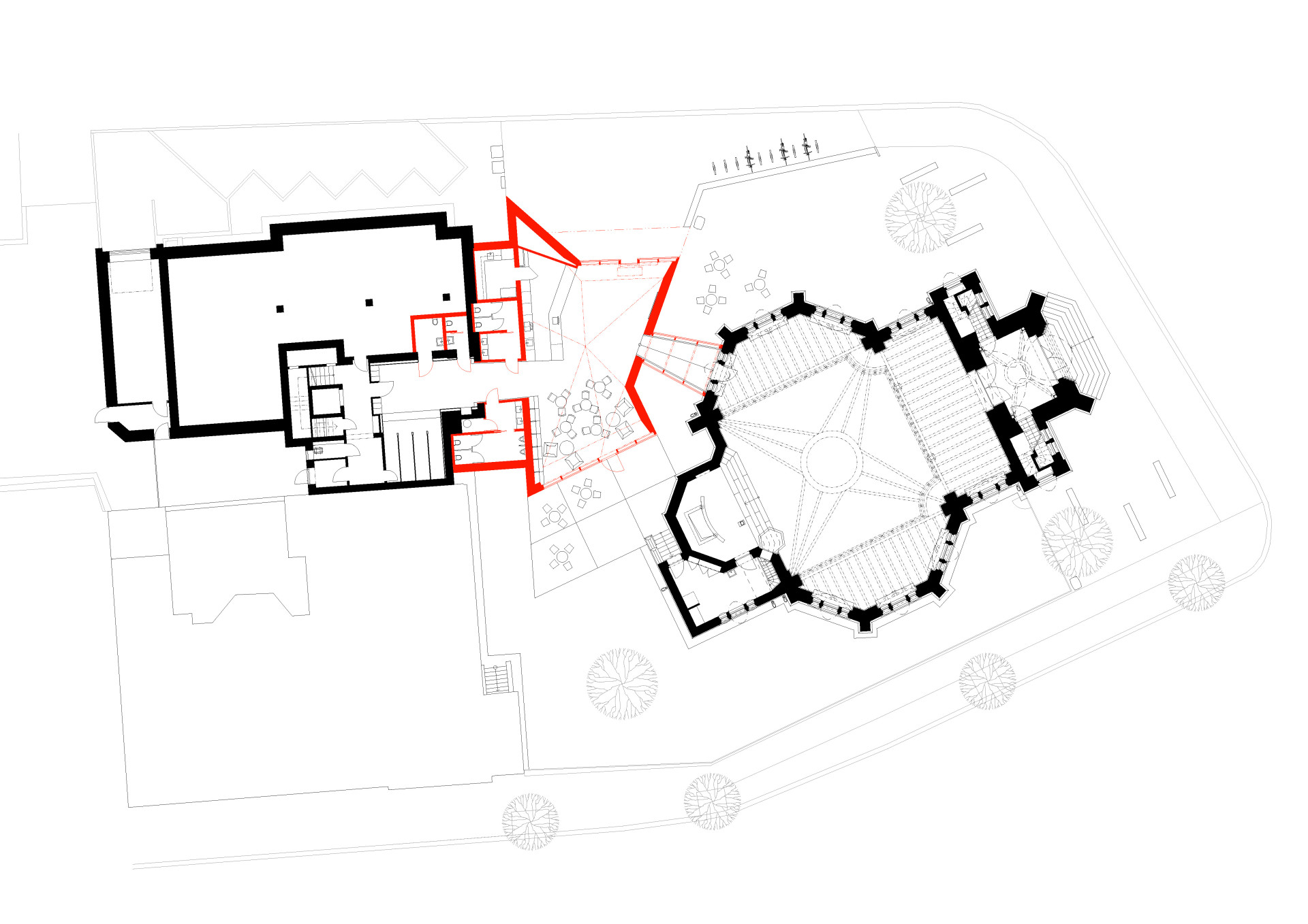
Nová kulturní náplň kostela potřebovala řádné provozní a sociální zázemí, to se ovšem do původní hmoty kostela nevešlo. Architekti se chtěli vyhnout nekoncepčním zásahům a přístavbám kostela, které by narušili jak jeho vnitřní prostor, tak jeho výraz a siluetu z přední strany. Rozhodli se tedy pro přístavbu za kostelem, mezi jeho hlavní lodí a ředitelstvím knihovny. A jelikož spolu oba provozy úzce souvisí, stala se přístavba spojujícím článkem obou objektů, obsahující vstupní prostor s recepcí a kavárnu. Díky odstranění oplocení se navíc z okolí kostela stala veřejná piazzetta s mobiliářem a zelení.

„Přístavba respektuje uliční čáru ulice Bezručovy a udržuje si dostatečný odstup od obou stávajících staveb,“ popisují koncept přístavby architekti. „Krystalická hmota nového objektu reaguje na neogotickou formu Červeného kostela. Rovněž půdorysná stopa nové části vychází z jeho půdorysného členění. Půdorys je výřezem části podlahy kostela a je vysunutý mimo původní platformu. Fasády i střecha objektu jsou provedeny z černého hliníkového sendvičového plechu.“
Nová přístavba tak nejen logicky a funkčně propojuje související provozy, zároveň do areálu vstupuje radikálně a kontextuálně zároveň. Radikálně ve smyslu materiálové, konstrukční a výrazové odlišnosti, kontextuálně ve smyslu urbanistické situace a charakteru, který na neogotickou formu navazuje půdorysným členěním. Interiéru přístavby dominuje beton. Na detailní návrh a výběr interiérových prvků si architekti přizvali Denisa Strmiskova Studio, se kterým společně specifikovali všechny materiály a povrchy interiérů. Nalezneme zde tudíž nespočet zajímavých detailů a originálních kusů nábytku a osvětlení.

Architekti tak dali vzniknout radikálně kontextuálnímu architektonickému dílu, a je to správně. Úkolem současné architektury totiž není replikovat stávající, ani pokoušet se za každou cenu přehnanou exhibicí přehlušit okolní kontext. Úkolem současné architektury je reagovat a navazovat na stávající kontext a minulost s respektem, pokorou a úctou, zároveň však s jistou dávkou odvahy vyjádřené současným tvaroslovím, formou, technologiemi a materiály.
- Ateliér: atelier-r
- Autoři: Miroslav Pospíšil, Daria Johanesová
- Spolupráce: Denisa Strmisková Studio, Studio KOSATKO, Jan Dostál
- Země: Česká republika
- Adresa: Bezručova 1180/3, 779 00 Olomouc
- Město: Olomouc
- Náklady: 170 mil. Kč
- Plocha pozemku: 1520 m²
- Projekt: 2018-2019
- Realizace: 2023
- Investor: Olomoucký kraj