Na pomezí Jizerských hor a Krkonoš stojí nový dům. Je úsporný, útulný a voní dřevem
Dům v Kořenově není ani rekreační chata ani rodinný dům, nabízí svým majitelům sezónní bydlení na delší časové úseky, které chtějí trávit mimo město.
Viktorie Majoberová , 2. 1. 2025
V Jizerských horách stojí nový dřevěný domek. Jeho hmota vychází z charakteru okolní zástavby – má sedlovou střechu a dřevěné obložení. Oproti okolním domům je ale mnohem drobnější. Architekti se ho snažili navrhnout co nejvíc úsporně.

Dům je usazen přibližně ve středu nepravidelného pozemku. Do objektu se vstupuje ze zadní strany orientované na jih. To proto, aby celá severní fasáda orientovaná do údolí mohla být co nejvíce prosklená a mohla nabídnout výhledy do okolní krajiny.
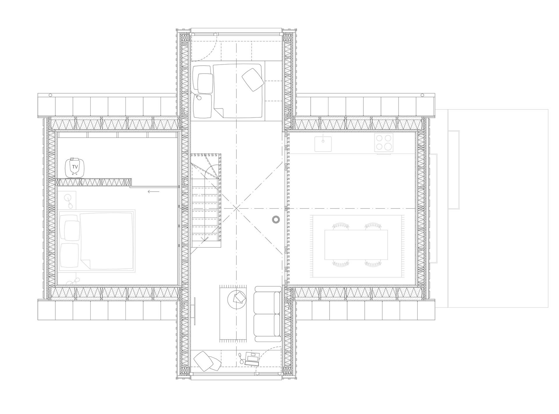
Když vstoupíte do domku, ocitnete se v přízemí. To tvoří hlavně obývací pokoj spojený s kuchyní. Hlavní místnost působí prostorně, a to hlavně proto, že se vertikálně otevírá do podkroví. Uprostřed pokoje stojí krbová kamna, která vyhřívají celý dům. V přízemí se nachází ještě hlavní ložnice a také koupelna, do které se vstupuje z vstupní chodby.
Z hlavního obytného prostoru vedou schody do prvního patra. To autoři nazývají „galerie“. Je to klidový prostor, ve kterém se nachází další malá ložnice. A také útulný kout s gaučem, televizí a pracovním stolem. Ten slouží jako pracovna, nebo „zašívárna“.
Celý interiér je světlý, do pokojů proudí dostatek denního světla skrze velká okna, která rámují výhledy do okolní přírody. Všechny pokoje, kromě koupelny, jsou obloženy dřevem, což dává pocit útulnosti.

Konstrukčně byl dům navržen jako dřevostavba typu „two-by-four“ - stěny tvoří dřevěná konstrukce vyplněná izolací. Nad obytným prostorem je krov se sbíjeným vazníkem. Interiér je obložený palubkami, dveře a nábytek je z biodesek a podlaha z micro terazza. Fasáda domu je variací na lokálně typický lužický obklad. Střešní krytina je lehká, tedy plechová.
Více k tématu
Architekti ze studia Facha vytvořili dům, který svojí estetikou a stavebním materiálem vede hezký dialog s okolními stavbami i přírodou. V Sudetech tak máme další příklad současné horské architektury, která neprovokuje, ale s respektem zapadá.
- Ateliér: Facha architekti
- Země: Česká republika
- Město: Kořenov
- Realizace: 2020
- Projekt: 2017
- Generální dodavatel: Mirhaus s.r.o.
- Fotograf: Jiří Hurt
- Truhlář: ZTVZ a.s.