Dům pro zlatníka, zlatnici a tři děti. Stojí v proluce v Benešově
Vřelý a obyčejný, tak charakterizuje architekt Jan Vaněček rodinný dům, který stojí ve staré zástavbě v Benešově. Zemitý charakter podtrhuje fasáda z cihlového obkladu.
EARCH.CZ , 21. 4. 2026 / Advertorial
Majitelé domu mají zlatnictví, společně podnikají a mají tři děti. Chtěli si pořídit obyčejné a pohodlné rodinné bydlení. K dispozici měli starší domek v proluce v Benešově, který ale nebylo možné rekonstruovat. Ve spolupráci s architektem Janem Vaněčkem a Markétou Míškovou z ateliéru VAS se rozhodli pro novostavbu.
Pro rodinný dům, omezený ještě navíc sousedními parcelami, bylo potřeba hlavně efektivně využít prostor a správně ho uspořádat. Do ulice je dům dvoupodlažní, stejně jako jeho soused. Má ovšem rovnou střechu, aby se horní patro dalo plnohodnotně využít.
Přízemí má větší plochu a je rozšířené směrem do zahrady, s níž je propojené velkoplošným prosklením. „Po vstupu do domu se obytná část otevírá v celé své hloubce a v průhledu směřuje až do zahrady, která se tak stává přirozenou součástí každodenního života i atmosféry interiéru,“ popisuje architekt Vaněček a architektka Míšková. Na obývací pokoj navazuje terasa, z ní lze vyjít na zahradu – ačkoliv se jedná o úzký pruh mezi sousedními pozemky, mají tu majitelé dostatek soukromí.

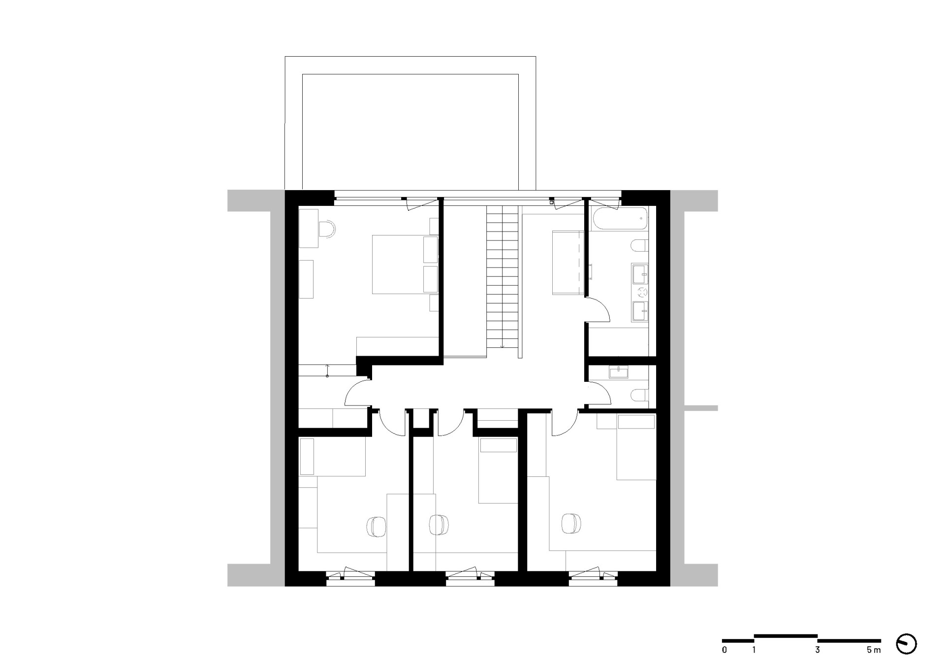
V přízemí je také pracovna a WC. Navazuje na ně garáž a technická místnost, z nichž se dá projít přímo do domu anebo na zahradu. V patře se nacházejí tři dětské pokoje, ložnice rodičů, koupelna a druhá toaleta. Našlo se místo i na „čtenářský koutek“ u okna nad schody. Schodiště má zábradlí z dřevěných latí. Ve dne ho nasvěcuje horní okno, večer je podsvíceno umělým světlem. Tento detail z něj dělá ozdobu a těžiště interiéru.
Bílá a dřevo
V místnostech jinak dominuje bílá barva a dřevo, oživené barevnými detaily jako je modrošedá kuchyňská linka – je to nevtíravé, ale harmonické pozadí k rodinnému životu.
Více k tématu
Zvenčí měl být dům taktéž bílý, na fasádu byla plánovaná omítka. Stojí ovšem ve staré ulici. „Po každém dešti byly kolem louže a báli jsme se, jak bude omítka za chvíli vypadat,“ říká architekt Vaněček. Strávil nějaký čas v Dublinu, majitel zase v Londýně a oba mají rádi cihlovou architekturu britských ostrovů. A tak se rozhodli pro odolnější řešení z cihelného obkladu, který dodalo Klinker Centrum. „Jsme moc rádi, že to tak dopadlo, domu to dodává jeho vřelost,“ říká architekt.
- Ateliér: Ateliér VAS
- Autoři: Jan Vaněček, Markéta Míšková, Mirek Dragoun
- Země: Česká republika
- Město: Benešov u Prahy
- Projekt: 2020–2022
- Realizace: 2022–2025
- Fotograf: Václav Novák
- Návrh zahrady: Ondřej Semotán, studio Architráva