
Obytný box ve svahu s vyhlídkou
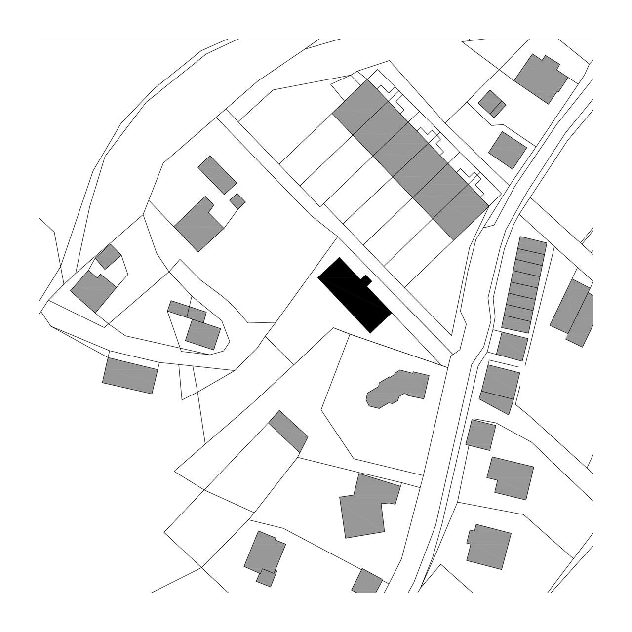
Rodinný dům v Jablonci má to, co mnoho z dnešních drobných realizací postrádá – aktivní a adekvátní zapojení do urbánní struktury. Současný kontext tu dostává nový pozitivní náboj. Svým umístěním na prudkém svahu otevřeným do zastavěného údolí je vlastně nesmírně exponovaný – dům je už z dálky dobře viditelný. Ale i z té dálky jsou jeho koncepční principy dobře čitelné a srozumitelné. Stavba je totiž svou jednoduchostí až provokativní.
Ondřej Beneš , 5. 7. 2013
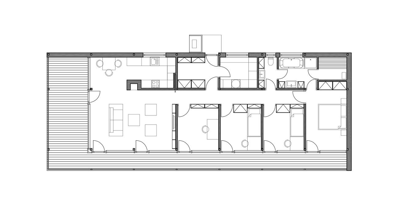
Dům je postaven na „sjezdovce“. Ze strany přístupu je část pozemku srovnána a na stejné úrovni je i hlavní a jediné patro domu. Je to ve své podstatě dřevěná krabice na železobetonové desce, podepřená dvojicí ocelových nosníků. Žádná složitá analýza – „vpíjení se do kontextu“, podřizování se místním vlivům. Dům ke svému okolí promlouvá hrubostí své fyzické matérie. Skoro bychom neměli mluvit o krabici, ale o důmyslném obalení plně proskleného obytného prostoru. Důležité jsou tu totiž výhledy ze všech místností, balkonu.
Téma koncepčního zpracování domu není nové. Obytným boxům na nožkách se architekti věnují minimálně od počátku šedesátých let. Vzpomeňme alespoň Neutrovy noblesní realizace. Co je tu ale v případě realizace v Jablonci jiného, nového? Vysoká abstrakce kompozičního schématu je spojena s množstvím smyslově vnímaných materiálů – především dřeva na obkladu –, ale i esteticky zdařilou kreací ocelových stojek pod domem.
Opětovná otázka – jaký je systém, struktura práce tohoto architektonického teamu? Předně – nejedná se pouze o kvalitní „dispoziční řešení“, které je již dnes u obdobných realizací vyžadováno jaksi automaticky. Tady jde o vědomé komponování jednotlivých provozních objemů s vědomím několika základních principů, při jejichž kvalitním ošetření vznikají elegantní a čisté vazby, vztahy.
Velký obytný prostor spojený s kuchyní a jídelnou, minimalizované pokoje, které však musí mít velmi dobré vazby na koupelnu, šatnu, komunikace. Pak už jen doplnit vestavěné skříně, multifunkční vestavěné stěny s knihovnami, dveřmi do pomocných místností, krbem, úložnými prostory.
Dům v Jablonci je něco mezi – mezi chatou a chalupou, mezi domem ve městě a vyhlídkou na osamělém vrcholu. Dům se intenzitou svého vnitřního prožitku stává doslova magnetem, ale zároveň si svou nepřístupnou pozicí udržuje vědomou distanc a chrání své obyvatele. Právě vyvážení tohoto vztahu – intimity, uzavřenosti, citlivosti proti otevřenosti, výraznosti, jisté radikality a včlenění do struktury města – lze považovat za jeden z nejsilnějších momentů této realizace.