Startovací bydlení pro mladý pár v Praze na Vinohradech. Koupelnu mají ve skříni
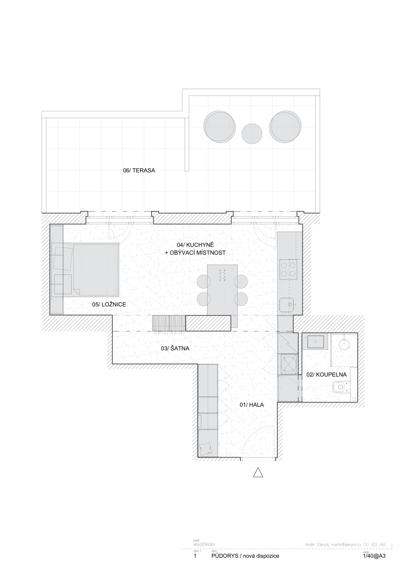
Mladý pár žije v jednom pokoji o rozloze 35 m². Mají tu vše, co potřebují - postel, kuchyň, koupelnu, a také prostornou terasu s výhledem na Prahu.
Viktorie Majoberová , 10. 1. 2025
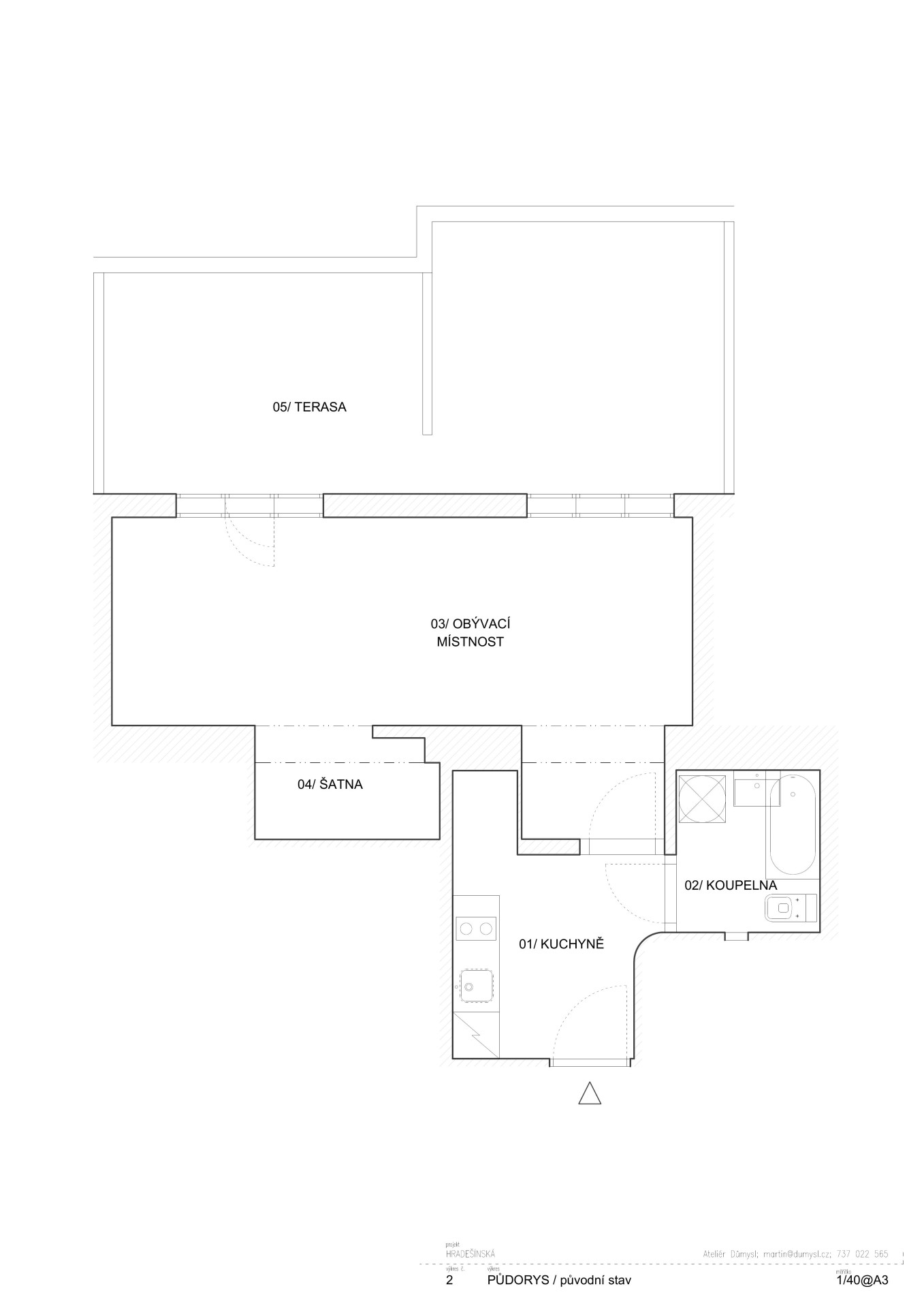
Mladý pár si přál zrekonstruovat malý byt o rozloze 35 m². Chtěli ho více otevřít, aby interiér působil prostorněji. Oslovili studio Důmysl, které vzalo rekonstrukci do vlastních rukou.

Byt se nachází v činžovním domě v Praze na Vinohradech. Prostor k bydlení je sice malý, ale náleží k němu také venkovní terasa o ploše 25 m². Tedy skoro stejná velikost venkovních a vnitřních prostor.
Jak se bouraly zdi
Architekti se rozhodli zbourat všechny vnitřní nenosné příčky, a tím otevřít celý vnitřní prostor. Byt nyní tvoří vstupní hala, která se postupně otevírá do hlavního prostoru, kde se nachází kuchyňský kout, jídelní stůl i postel. Obývací pokoj vrcholí okny, skrze které se vstupuje na venkovní terasu.
Dalším důležitým krokem rekonstrukce, který vdechnul bytu duši, bylo odhalení stropních betonových konstrukcí. Obnažený beton svým drsným charakterem rozbíjí jinak minimalistický interiér. Architekti byli věrní bílé barvě v kombinaci s dřevěnou březovou překližkou a černými detaily na nábytku. „Zvolený jednoduchý industriální koncept je pro tento typ dispozice a situaci klientů ideálním řešením startovacího bydlení,“ vysvětluje Martin Zima z ateliéru Důmysl. A kde se majitelé sprchují? Koupelnu mají ve skříni. Architekti chytře schovali průchod do vestavěné skříně z překližky.

Byt je krásně světlý, s terasou ho propojuje nové velké okno. „Díky otevřenosti klientů všem tvůrčím nápadům se podařilo interiér dobře propojit s terasou, která je se svým jedinečným výhledem jedním z velkých přínosů bytu,“ říká Martin Zima.
Více k tématu
Celou podlahovou plochu spojuje povrch podlahy, litá betonová stěrka s integrovaným topením. Namísto původních nefunkčních špaletových oken byly na míru vyrobené nové repliky. Uprostřed dispozice bylo odhaleno a opraveno zdivo původní komínové stěny následně natřené na bílo, aby si prostor uchoval svou čistotu.
Architekti vyčistili rozdrobený interiér v jeden prostorný pokoj. Chytře umístěný vestavěný nábytek navíc člení jeden pokoj tak, že vytváří malá zákoutí. Bydlet v jednom pokoji může být náročné, zde však má pár luxusní podmínky.
- Ateliér: Ateliér Důmysl
- Autoři: Martin Zima
- Země: Česká republika
- Fotograf: Radek Úlehla
- Město: Praha
- Adresa: Hradešínská