
3+1 architekti navrhli obyčejný venkovský dům s velkými přesahy sedlové střechy
V malé obci na Ústecku zrealizovalo lokální architektonické studio pokorný rodinný dům, který vychází ze zvyků tradičních venkovských stavení. Díky přesahům střechy vzniklo praktické zápraží i prostorné kryté terasy.
EARCH.CZ , 25. 8. 2022
Zavedené studio 3+1 architekti sídlí v Ústí nad Labem. V jeho regionu se nachází také většina realizací studia, které vede architekt Pavel Plánička se stavebním inženýrem Brunem Panenkou. Patří mezi ně také nedávno dokončený rodinný dům, který vyrostl ve dvoutisícové obci Povrly na levém břehu Labe.
Pozemek domu se nachází na okraji vsi, takže nabízí příjemné prostředí přírodního rázu s výhledy do krajiny. Architekti nemají jasně rozpoznatelný rukopis svých návrhů, pokaždé vycházejí z podmínek konkrétního místa a zadání. V tomto případě vsadili na stavbu, jehož forma připomíná tradiční venkovské domy. „Tradiční úzká dlouhá proporce domu nám tu připadá adekvátní,“ říkají autoři návrhu.
Více k tématu
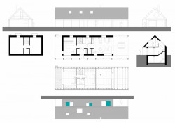
Ústřední motiv celého návrhu představuje sedlová střecha, která není pouhým „nostalgickým symbolem“ – její výrazné přesahy totiž vytváří kryté venkovní prostory, kolem kterých je organizována celá dispozice domu. Podél západní fasády směřující do zahrady vzniká loubí, na štítových stranách zase prostorné kryté plochy. Jedna z nich slouží jako praktický prostor pro skladování dřeva nebo kol, druhou využívají majitelé jako venkovní terasu, která je díky prosklené stěně s posuvnými dveřmi volným pokračováním hlavního obytného prostoru.

„Se sedlovou střechou je to v současnosti většinou boj – jak ji provést konstrukčně, jak ji efektivně prostorově využít, a jaké proporce jí dodat, aby dům nepůsobil neohrabaně a těžce,“ tvrdí architekti.
Napříč celou hmotou domu procházejí přiznané dřevěné trámy objevující se jak v obytných místnostech přízemí, tak i v krytých venkovních prostorech. Jak už bývá u domů z dílny studia 3+1 architekti zvykem, interiér je zařízen střídmě, ve světlých tónech a s důrazem na praktický provoz.

Původním záměrem architektů bylo opláštit fasádu směřující k příjezdové cestě „šupinami“ použitými na střeše, čímž chtěli dosáhnout „napětí mezi konzervativním tvaroslovím s konkrétností známých materiálů a abstraktní kůží domu“. To se však zrealizovat nepodařilo.
„Nakonec je tu tedy obyčejný dům na okraji vsi. Jestli to není málo se ukáže časem,“ uzavírají autoři domu. Výsledná podoba však jednoznačně dokazuje, že se jim podařilo zrealizovat dům, který může být svou střídmostí dobrým vzorem pro další stavby v okolí.
- Ateliér: 3+1 architekti
- Spolupráce: Ing. Martin Vejškrab (statika)
- Země: Česká republika
- Adresa:: Povrly
- Projekt: 2017
- Realizace: 2020
- Zastavěná plocha: 200 m²
- Užitná plocha: 250 m²
- Plocha pozemku: 1700 m²