
Věžák jako stoh knih. V téhle univerzitní budově má každý student výhled na město
Učebny, společenské místnosti i zelené terasy v devatenácti patrech nad sebou. To vše obsahuje „vertikální kampus“ – pozoruhodná univerzitní budova od kanadského ateliéru KPMB. Píše o ní naše spolupracovnice Nina Weinroth, která ji jako studentka Bostonské univerzity využívá.
Nina Weinroth , 9. 7. 2025
Když vejdete do téhle budovy, zůstáváte pořád tak trochu venku – prosklené stěny vnější a vnitřní prostředí dokonale propojují. Duan Family Center for Computing and Data Science (Centrum rodiny Duanových pro výpočetní a datové vědy) bylo vždy jedním z mých nejoblíbenějších míst v kampusu univerzity v Bostonu a nabízí také jeden z nejlepších výhledů na město. Většina budov v kampusu je z doby poválečné moderny, devatenáctipatrový výškový dům starý jen pět let na moderní principy navazuje, ale přidává důraz na udržitelnost. Vykonzolovaná patra připomínají ne právě pečlivě vyrovnaný stoh knih.

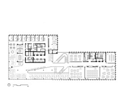
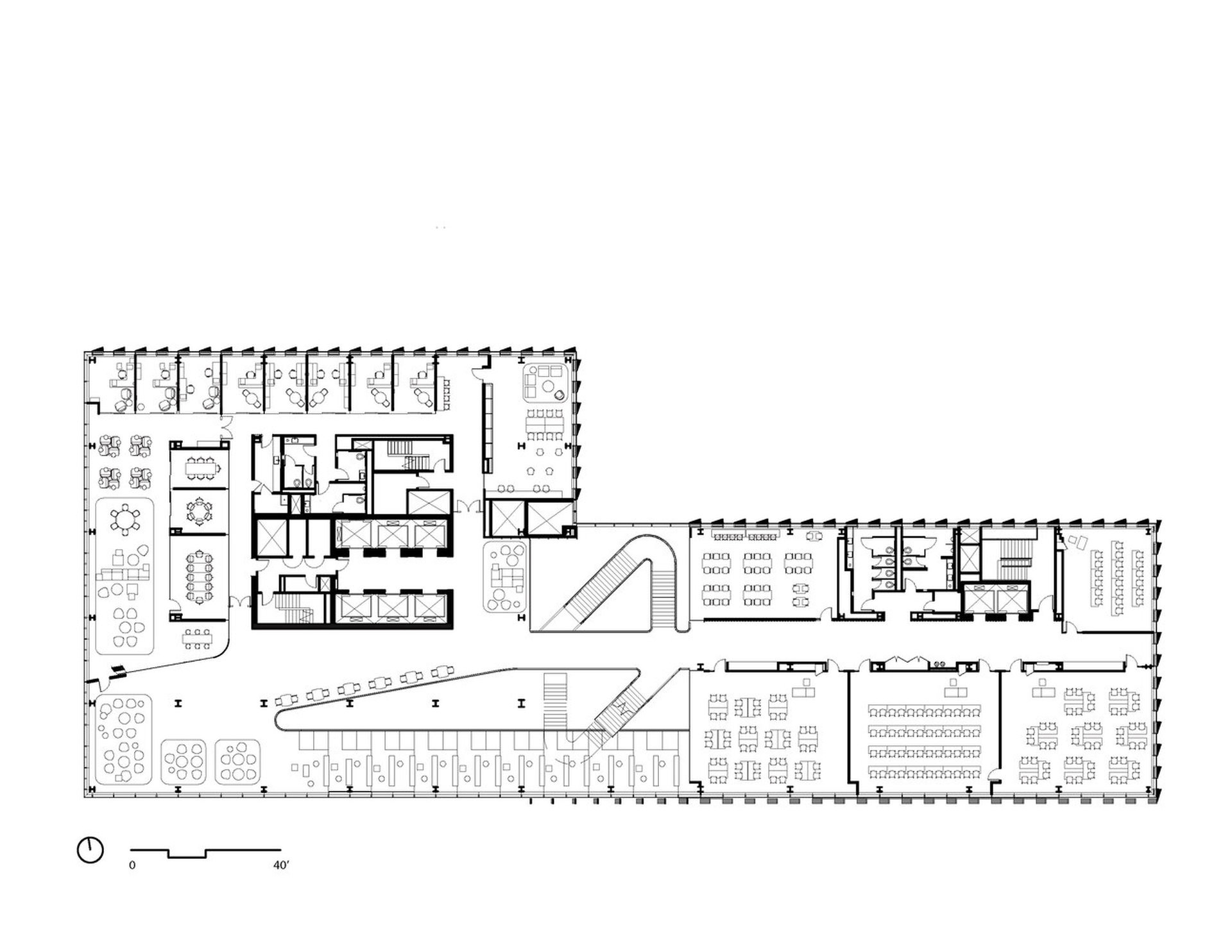
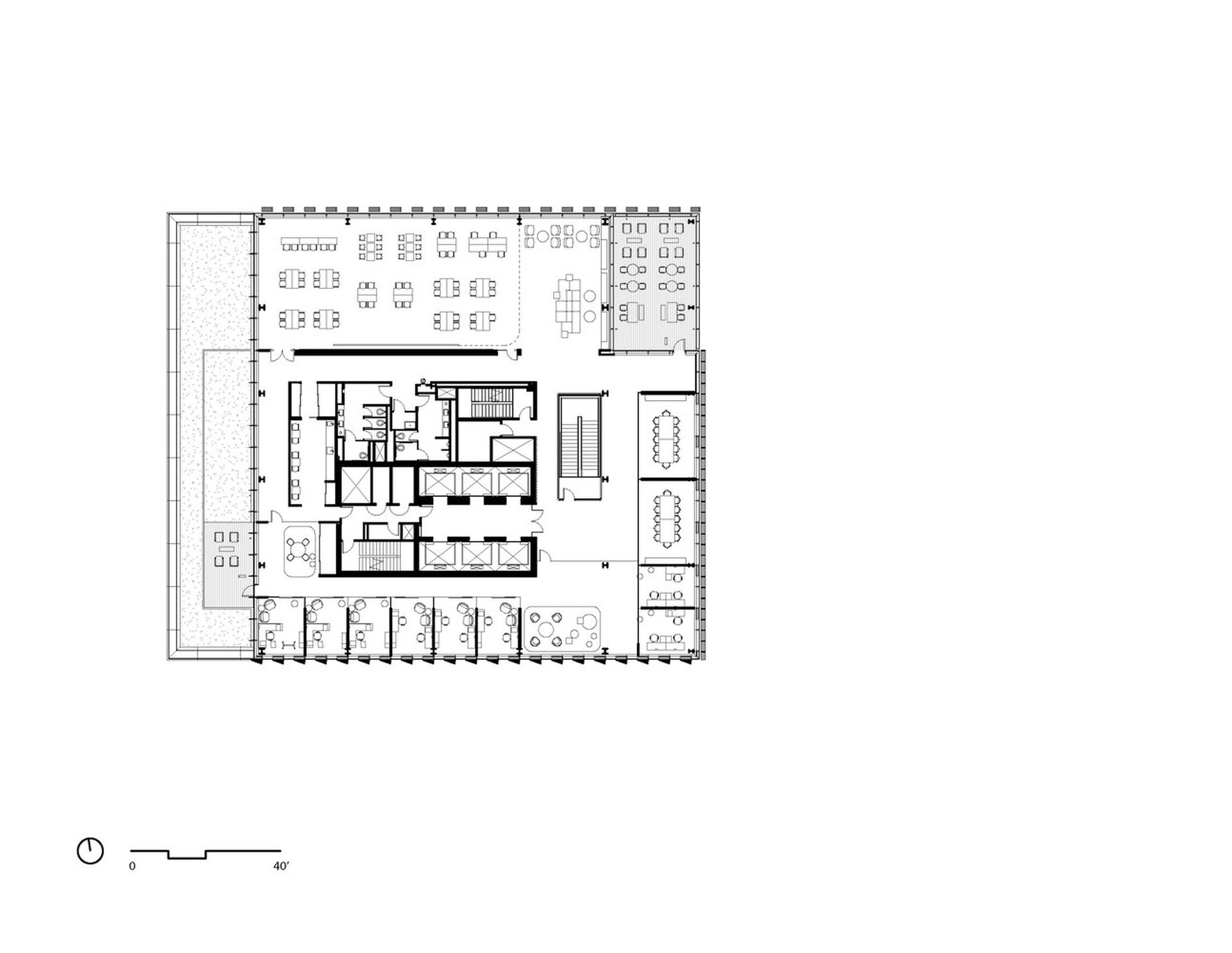
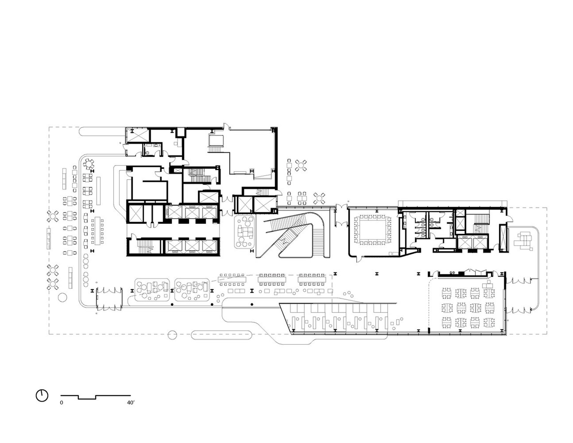
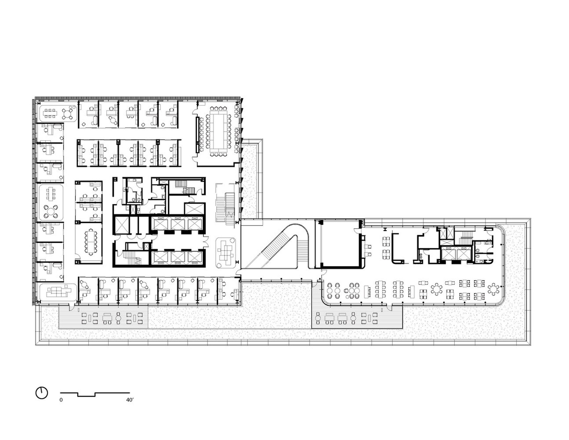
Stavba funguje jako společenské centrum a otevřený prostor pro studenty všech sedmnácti fakult Bostonské univerzity, je přístupná i veřejnosti. Nachází se zde Fakulta výpočetní a datové vědy spolu s katedrami matematiky, statistiky a informatiky. Celoprosklená fasáda vytváří pocit otevřenosti díky přirozenému světlu a zároveň umožňuje panoramatický pohled na město. Diagonální lamely jsou umístěny tak, aby odrážely slunce.
V přízemí je studentská kavárna, ve spodních patrech, která tvoří jakýsi podstavec vertikální věži, se nachází laboratoře a prostory pro společnou práci studentů. V horních patrech jsou umístěny odpočinkové zóny a kanceláře. Patra propojují schodiště z černé oceli a dřeva, které přispívají ke strohému, minimalistickému dojmu interiéru.
Design podporuje socializaci a život studentské komunity. V nejvyšším patře budovy se pravidelně konají různé akce, například bezplatné lekce jógy s výhledem na město a řeku. Na barevných sedačkách se scházejí skupiny studentů k neformální spolupráci.

Tyhle efektní kusy nábytku jsou ovšem také terčem kritiky za to, že tu zase jednou zvítězila forma nad funkcí – mnoha sedadlům chybí opěrka zad nebo místo pro odložení notebooku, což může být při práci nepraktické. Návštěvníci také upozorňují, že ačkoliv to má být budova pro 21. století, chybí tu základní technologická vymoženost, tedy dostatek zásuvek.
Více k tématu
Geotermální a zelená architektura
Podstatnější je ovšem celková koncepce budovy. CDS se od ostatních staveb v Bostonu odlišuje důrazem na udržitelnost, jedná se o energeticky nejúspornější budovu v oblasti Bostonu, která se obejde zcela bez fosilních paliv. Geotermální vrty do hloubky 450 metrů ji vytápějí a chladí. Budova má zelené střechy, které zadržují dešťovou vodu a jsou přístupné jako terasy. Kdokoliv sem může vyjet a prohlédnout si město z výšky. Zároveň budova ukazuje, pro jakou budoucnost Universita v Bostonu připravuje své studenty.
- Ateliér: KPMB Architects
- Země: Spojené státy americké
- Město: Boston
- Realizace: 2022
- Fotograf: Tom Arban