Vzdušný domov na 43 metrech. Rekonstrukce bytu v Karlíně
Malý byt s nevhodnou dispozicí prošel rekonstrukcí podle návrhu architekta Dominika Cvrčka a proměnil se v prostorný, světlý a funkční domov. Přestože jeho plocha není velká, díky promyšlenému propojení místností vůbec nepůsobí stísněně.
Adéla Vaculíková , 10. 6. 2025
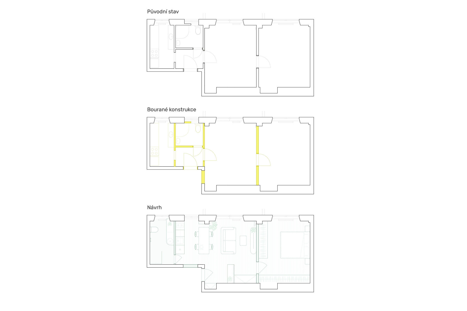
Byt ve starém činžovním domě v Praze-Karlíně nesl dědictví neuspokojivé dispozice. „Původní stav trpěl úzkou kuchyní, nevyhovující koupelnou a dvěma malými pokoji,“ popisuje architekt Dominik Cvrček. Navrhl proto zásadní změny – přesunout vstupní dveře, odstranit všechny původní příčky a postavit nové tak, aby vznikly lépe propojené a funkční prostory.
Kuchyň, dříve umístěná v malé podlouhlé místnosti, se nyní volně otevírá do obývacího pokoje. Vznikl tak poměrně velkorysý obytný prostor, kde lze vařit, jíst u jídelního stolu i odpočívat na gauči – místnost, ve které člověk může pohodlně trávit celý den.

Druhý pokoj, sloužící po rekonstrukci jako ložnice, si zachoval původní rozměry. Nová příčka však má dveře posunuté blíže ke svému kraji – v obývacím pokoji tak už nejsou dveře uprostřed čelní stěny, díky čemuž vznikl prostor třeba pro velký obraz.
Poloha vstupních dveří do bytu se také změnila. Původně vedly do malé, tmavé chodby bez oken, dnes uvádějí přímo do obývacího prostoru. Naproti dveřím stojí praktická komoda s botníkem v jednom, která současně formuje vstupní zákoutí – od hlavního obytného prostoru lehce oddělené, ale přitom stále zalité denním světlem.

Jasnost a vzdušnost jsou hlavními charakteristikami tohoto bytu. Architekt ji podpořil světlými barvami, které interiér opticky rozjasňují a odlehčují. „Severní orientace byla impulzem pro volbu světlých materiálů,“ vysvětluje Cvrček.
Na nábytku dominuje bílá – například vestavné skříně v ložnici jsou díky tomu nenápadné a prostor vizuálně nezmenšují. Jemné rastrování jejich dvířek zároveň místnost oživuje. Bílé jsou také bezrámové dveře včetně klik, stejně jako kuchyňské vybavení – dřez, baterie, trouba i indukční deska.
Více k tématu
Bílá barva pokračuje i v koupelně, kde ji doplňuje příjemná béžová velkoformátových obkladů. Ty vnášejí do prostoru propojení s dřevěnou podlahou v ostatních místnostech, která spolu s dalším nábytkem a detaily v dekoru dřeva interiér zútulňuje, aniž by narušila jeho svěží a světlý charakter.

Výsledkem je byt, který na 43 metrech čtverečních nabízí vše potřebné pro pohodlné městské bydlení. Díky promyšlenému propojení prostor, dostatku světla a pečlivě zvoleným detailům vůbec nepůsobí stísněně.
- Autoři: Dominik Cvrček
- Země: Česká republika
- Město: Praha - Karlín
- Adresa: Sokolovská, Karlín Praha 8
- Realizace: 2025
- Užitná plocha: 43 m²