
Rodinný dům v Bratislavě balancuje mezi ruchem ulice a klidnou zahradou
V jedné rušné bratislavské ulici navrhli místní architekti rodinný dům, který krásně zapadl do svého okolí. Zatímco při pohledu z ulice působí uzavřeně, směrem do zahrady se otevírá celoprosklenou stěnou obýváku.
EARCH.CZ , 18. 1. 2022 / Advertorial
Slovenské studio Lang Benedek Associated Architects dokončilo minulý rok ve čtvrti Trnávka, nacházející se nedaleko bratislavského letiště, pozoruhodný jednopodlažní rodinný dům s obytným podkrovím. Původně se mělo jednat o přestavbu a dostavbu poloviny stávajícího dvojdomu – vzhledem k jeho špatnému technickému stavu ale museli architekti přistoupit k návrhu novostavby.
Nový dům přesto na původní stavbu nezapomíná. Jeho podoba respektuje archetyp dvojdomu se sedlovou střechou, díky čemuž se stává přirozenou součástí zástavby ulice. Při pohledu zvenčí přesto tento dům zaujme více než ostatní. Pro jeho fasádu totiž architekti využili neobvyklý obklad z cihel na výšku, které vytvářejí specifický rastr dvojdomu.
Více k tématu
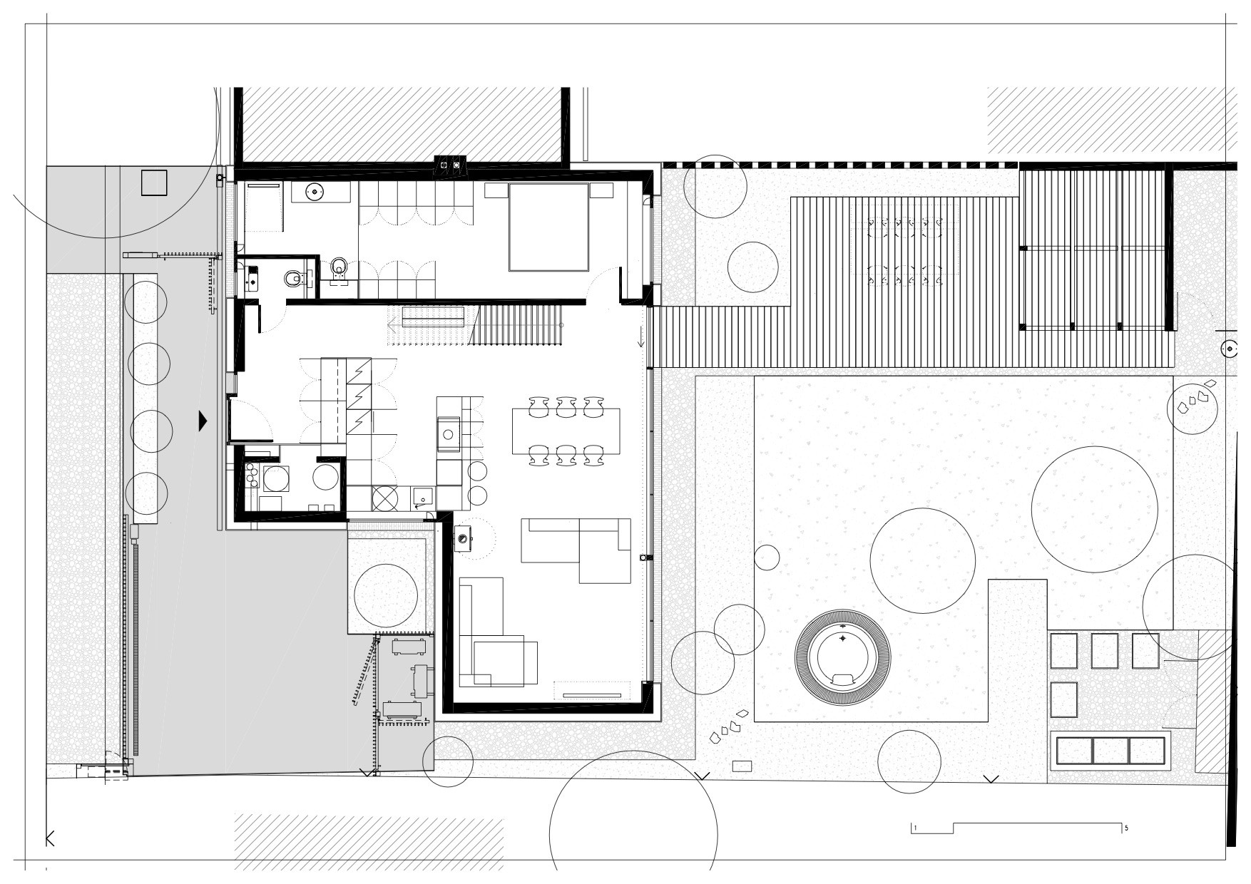
Naopak jako maximálně otevřenou část domu pojali architekti novou přístavbu sloužící jako obývací pokoj čtyřčlenné rodiny, která si tak díky prosklené stěně může užívat přímý kontakt se zahradou. Celkově se užitná plocha domu přístavbou a využitím podkroví zvětšila z pouhých 88 na velkorysých 150 metrů čtverečních.
Do domu se vchází vchodovými dveřmi, které se doslova ztrácejí ve fasádě – architekti pro ně totiž využili stejný cihlový obklad jako pro zbytek domu. Uvnitř stavby na nás čeká otevřený interiér pojatý v tlumených barvách, kde najdeme několik rafinovaně řešených prvků, jako je například schodiště či vestavěný nábytek.

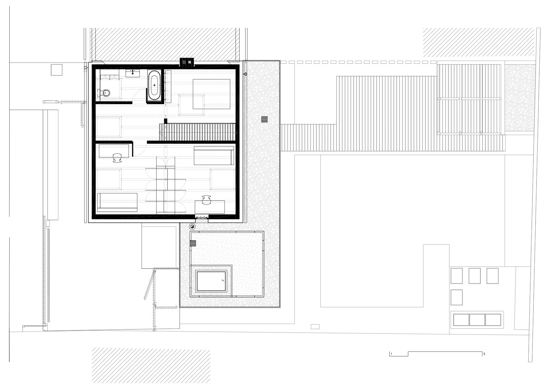
Do obytného podkroví vystoupáme po zavěšeném schodišti levitujícím nad podlahou. V podkroví najdeme dva dětské pokoje, které formálně odděluje pouze nábytek. Aby podkroví natrpělo nedostatkem denního světla, využili autoři několik střešních oken VELUX.
Dům slouží jako dělící prvek mezi rušnou ulicí a klidnou zahradou. Proto v uliční fasádě najdeme jen dvě podélná okna, zatímco nová přístavba získala celoprosklenou stěnu. Provázání interiéru se zahradou posiluje také dřevěná terasa ohraničující malou zahradu v asijském stylu.
- Autoři: Michal Lang, Borislav Bedenek
- Ateliér: LANG BENEDEK ASSOCIATED ARCHITECTS
- Realizace: 2019 - 2021
- Datum projektu: 2018
- Plocha pozemku: 385 m²
- Užitná plocha: 186,95 m²
- Zastavěná plocha: 114,35 m²