
Na chalupu k Atlantiku. Letní sídlo si rodina z Prahy vybudovala až v Bretani
Bretaň je nejdrsnější evropské pobřeží – útesy, vítr, rychlé změny počasí. Právě tohle učarovalo rodině z Čech, která si tam zakoupila dům. A začalo se s úpravami.
Karolína Vránková , 2. 10. 2025
„Vstoupíte dovnitř, projdete domem, a najednou se vám otevře výhled na oceán. Je pokaždé jiný, mění se každou chvíli podle přílivu a počasí. Nádhera,“ říká architekt Patrik Zamazal z ateliéru MOLO architekti. Není divu, že tenhle dům v severní Bretani okouzlil jeho klienty. S pomocí architekta tu postupně vybudovali rozlehlé letní sídlo pro sebe, své děti, prarodiče i přátele.

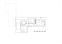
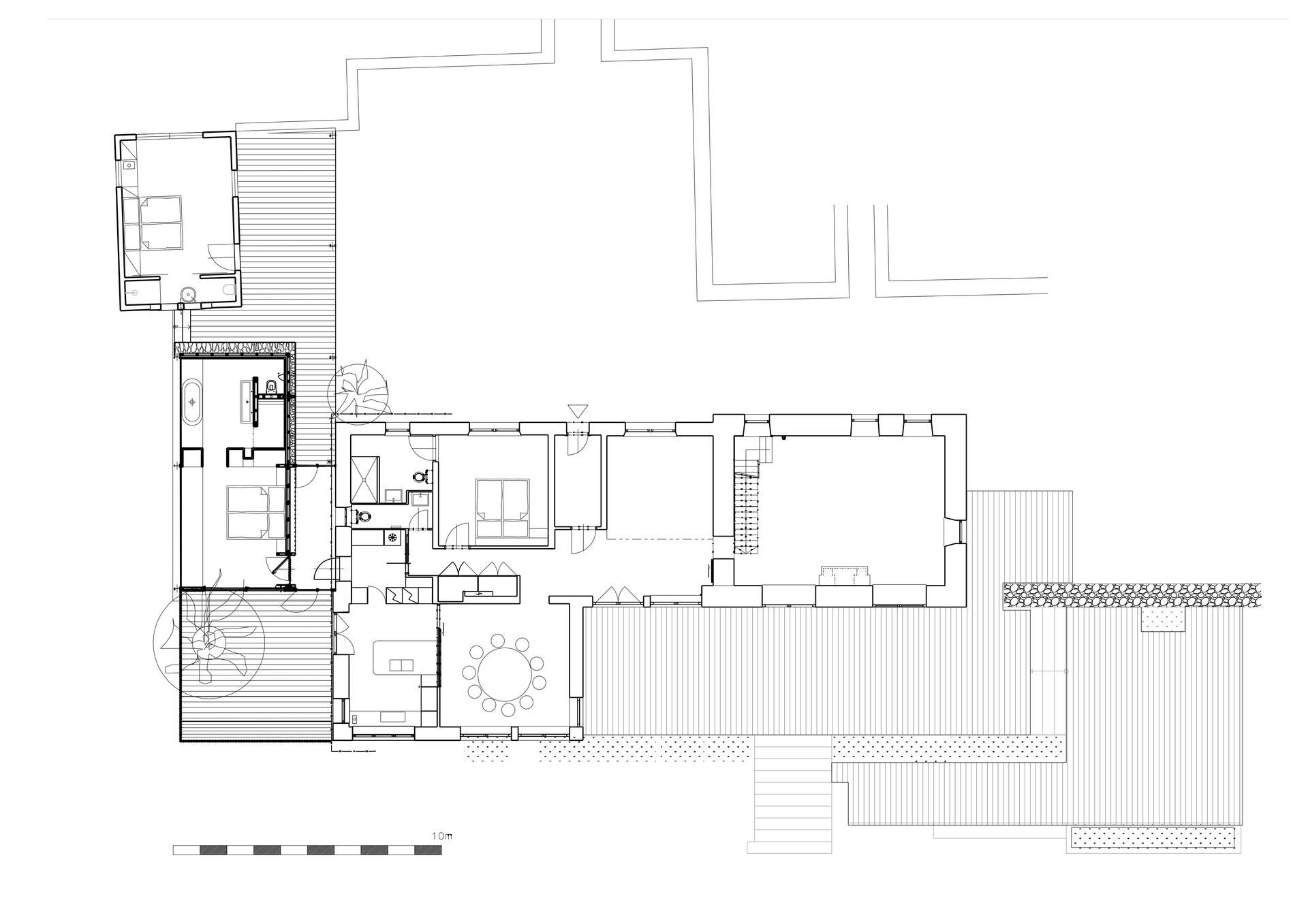
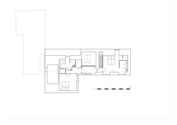
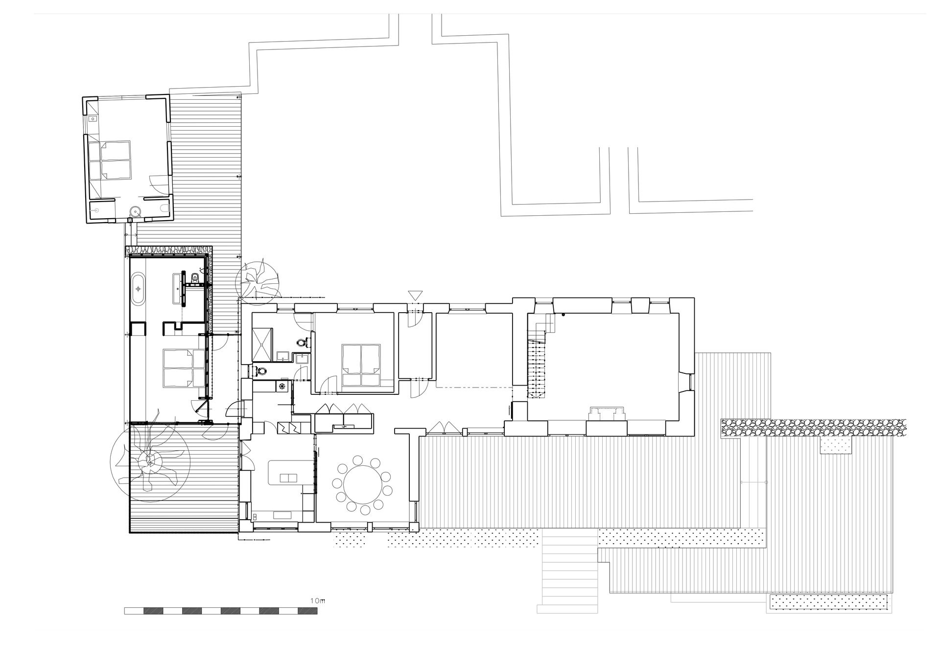
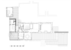
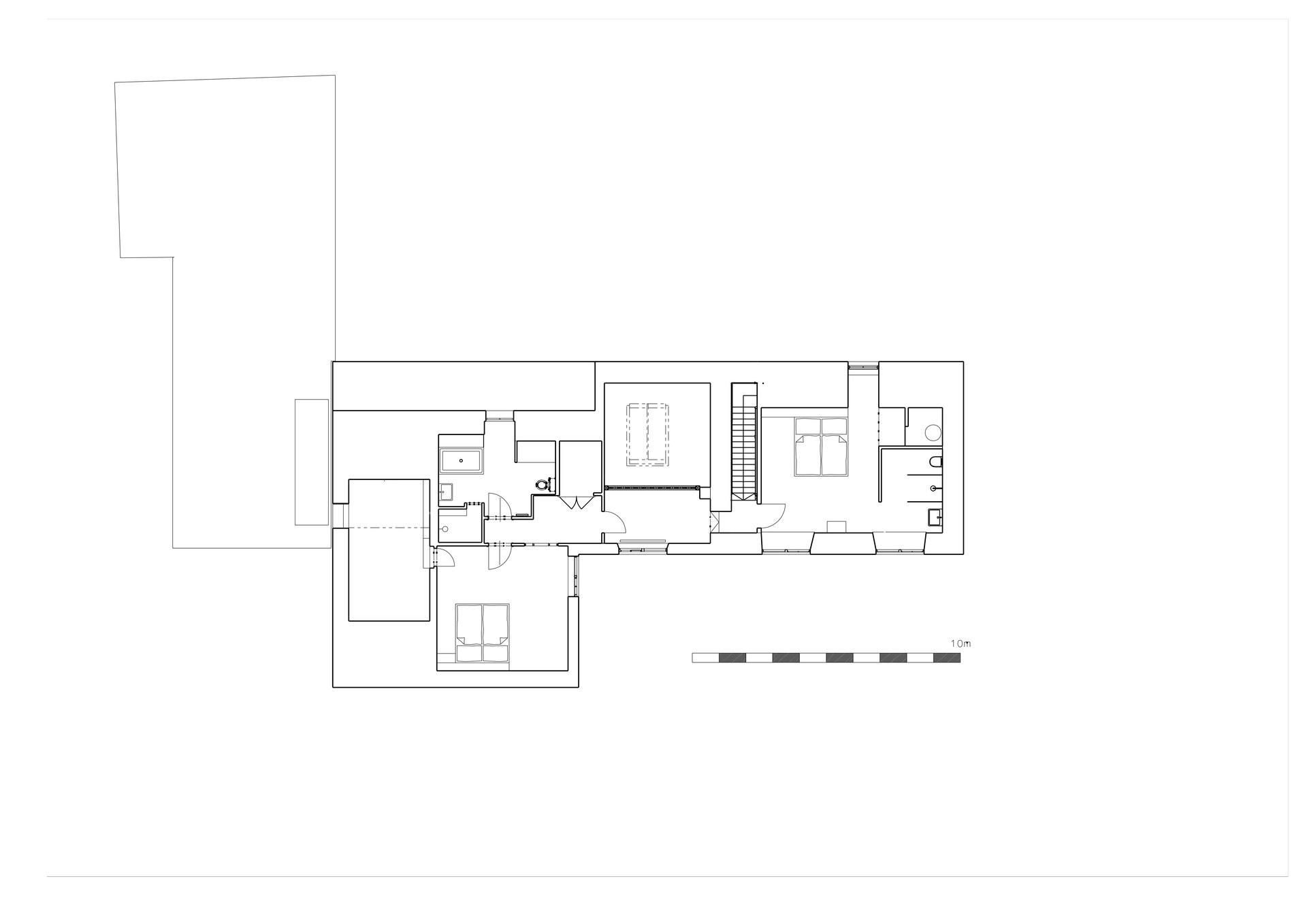
Dům měl původně dvě části, nejstarší kamennou a novější zděnou. Obě prošly úpravami pro potřeby rodiny, bylo ale potřeba více místa. „Cesta sem trvá dvacet hodin, takže kamarádi za vámi nejezdí na dva dny, ale spíš na týden nebo na dva,“ vysvětluje Patrik Zamazal. Tomu museli úpravy přizpůsobit. V obytnou část se proměnila i garáž, a vznikla navíc úplně nová přístavba. Teď má objekt celkem pět ložnic s koupelnami, kde mají hosté vlastní soukromí. Společně pak užívají kuchyň, obývací pokoj a terasu.
Nebylo ale vůbec snadné tohle vše do objektu dostat. Přístavby zdejší úřady omezují – musí mít plochu do 35 m² a musí dodržet zdejší principy památkové ochrany. „Místní památkáři mají svůj přístup velmi logický, dospělý a sebevědomý. Při rozšíření stavby existují dvě relevantní cesty. První je pečlivé dodržení všech tvarových i materiálových specifik lokální architektury. A ta druhá cesta je založena na přísném kontrastu,“ říká Patrik Zamazal. "Omezená plocha a přísná pravidla nám dala volné ruce ke kreativitě," dodává.
Vytvořili moderní přístavbu s ocelovou konstrukcí a stěnami ze skla. "Sklo je nejtenčí "zdící" materiál. Vynechali jsme také vnitřní příčky a prostor rozdělili jen vestavěnými skříněmi," vysvětluje architekt. Nosná konstrukce je z oceli, která je subtilní a zároveň umožňuje velkou přesnost. Jen malá část pláště je z místní žuly, aby se stará a nová část vizuálně propojily a sjednotily. Výsledkem je minimalistický dům, „splněný modernistický sen,“ jak to nazývá architekt.
Rekonstrukce nebyla složitá jen z hlediska navrhování, ale i realizace. Na místo se vozili z Česka pracovníci i materiál. I nová přístavba se nejprve postavila zkušebně v Česku, pak demontovala, a nakonec dovezla na místo. Architekt Patrik Zamazal tu tedy trávil spoustu dní a řešení dopracovával přímo na stavbě. Bylo třeba taky projekt správně rozdělit na etapy: „Na léto muselo být všechno v pořádku, protože majitelé tu chtěli trávit prázdniny,“ říká.

To, že na místě prožil v průběhu několika stavebních sezon řadu týdnů, nezůstalo bez následků. I on si zamiloval syrové bretaňské pobřeží a jeho obyvatele, větrem ošlehané Bretoňce. „Je to nejdrsnější evropské pobřeží. I lidé jsou takoví – připomínají mi horaly. Mám to tam moc rád,“ uzavírá.
Více k tématu
- Autoři: Patrik Zamazal, Pavel Griz, Jan Dobeš, Ladislav Kaduk
- Ateliér: MOLO ARCHITEKTI
- Země: Francie
- Realizace: 2021
- Návrh zahrady: Emmanuelle Le Carvennec
- Návrh původní stavby: Anne Fleischl
- Stavební povolení: Architecte atelier des 3 estuaires
- Hlavní dodavatel: N-STAVBY s.r.o.
- Subdodavatelé: iří Jelínek JJ-Konstrukt, Sklenářství Jelínek, Truhlářství Šváb, Betel s.r.o., Delta Light s.r.o. CAUSELEC, JARDIN-PUBLIC, LE-JJOLU, Constructions MERRIAUX, Fabienne et Jocelyn Buan
- Užitná plocha: 603 m²
- Zastavěná plocha: 887 m²
- Fotograf: Lukáš Žentel