Architektura / rodinné domy

Tvář z tvárnic

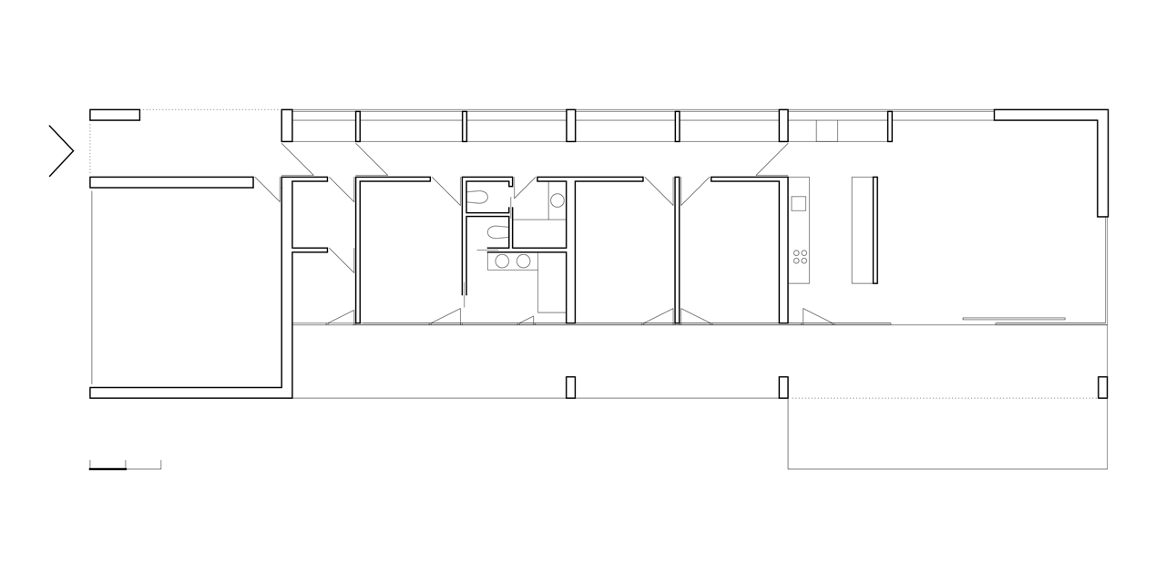
Surová a minimalistická estetika přízemního domu nezačíná lapidárním hmotovým řešením a nekončí pohledovými betonovými tvárnicemi v exteriéru, ale promítá se do každého koutu také uvnitř. Na vstupní část navazuje dlouhá chodba, která je lemována vstupy do jednostranně orientovaných pokojů a současně slouží jako šatna. Díky tomu má každá místnost přímý vstup na podlouhlou terasu.

ARCHTEAM , 23. 11. 2016

  • Autoři: Milan Rak, Alena Režná
  • Ateliér: ARCHTEAM
  • Země: Česká republika
  • Realizace: 2012
  • Město: Chrustenice
  • PSČ: 267 12
  • Datum projektu: 2007
  • Realizace: 2012
  • Foto ©: Filip Šlapal
  • autor: ARCHTEAM *
  • publikováno: * 23. 11. 2016
  • zdroj: * Autorská zpráva

Klíčová slova:

ARCHTEAM beton prefabrikace

Mohlo by vás zajímat

Generální partner
Hlavní partneři