Z kulturního domu radnice. Budova ze 70. let prošla velkou přestavbou podle návrhu Ondřeje Tučka
Středověké město Chlumec prošlo v 70. letech minulého století radikální přestavbou, během které došlo k plošné asanaci centra a vybudování nové zástavby z panelových domů. Do tohoto období spadá také původní podoba místního kulturního domu, který prošel v uplynulých letech rozsáhlou rekonstrukcí podle návrhu architekta Ondřeje Tučka a své sídlo v něm nově našla chlumecká radnice.
EARCH.CZ , 26. 2. 2021
Propojení do jednoho celku
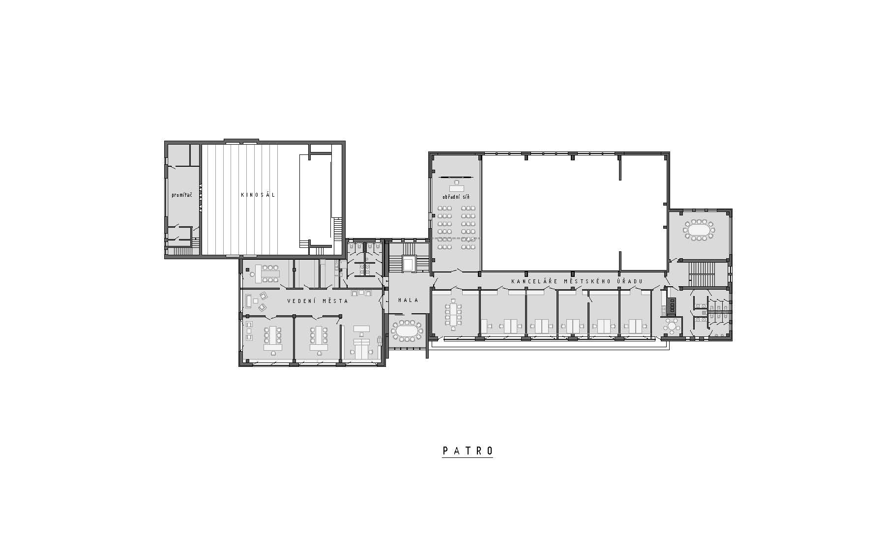
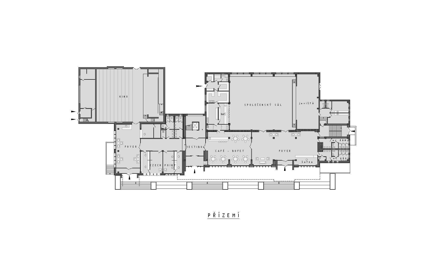
Původní budovu kulturního domu tvořil dvoupodlažní podsklepený objekt, který vznikal během dvou etap. Nejdříve tu totiž vznikl kulturní dům a až později se k němu připojilo také kino. Tato skutečnost pravděpodobně vedla k tomu, že budovy nikdy nebyly provozně propojeny, v místě jejich styku fungovala kuchyň restaurace. Jedním z hlavních bodů návrhu tak bylo vytvoření logické funkční i hmotové návaznosti obou budov.
Více k tématu

Architekt Ondřej Tuček do místa styku budov vložil vertikální hmotu, která zcela změnila kompozici celku. Soubor budov tak získal na první pohled čitelnou hierarchii s jasně artikulovanými vstupy do jednotlivých částí. Nový prvek tvoří věž s hodinami, kam autoři logicky umístili hlavní vstup do městského úřadu se schodišťovým prostorem s výtahem. Nová dominanta se odlišuje jak ve hmotě, tak v barevnosti a materiálovém provedení. K hladkým bílým omítkám nižších horizontálních hmot zvolil architekt kontrastní povrch v podobě hliníkového obkladu v tmavém měděném odstínu. Vstupy do dalších částí budovy – kina a společenského sálu – akcentují předsazené portály rovněž s obkladem z hliníkových kompozitních desek.

Potřeba většího otevření
Novému vnímání budovy napomohlo také přeformátování některých okenních otvorů. Jejich původní kompozici autoři v principu zachovali. V patře však sdružili stávající okenní otvory do větších dělených oken v tmavě šedých plastových rámech. V přízemí rovněž pracovali s větší plochou zasklení, díky čemuž vnitřní prostory opticky lépe komunikují s přilehlým náměstím. Díky novému členění prosklených ploch s pravidelným rastrem hliníkových profilů Aluprof s vysokými krycími lištami z exteriérové strany získala hlavní fasáda budovy jasný řád. Použitá sloupko-příčková fasáda současně umožnila vytvořit úzkou pohledovou šířku předělů mezi jednotlivými poli výplní. Fixní zasklení prosklených ploch místy doplňují vložené dveře. Tmavé plochy rámů i zasklení navíc kontrastují s bíle omítanými plochami fasád.

Kompletní modernizací prošly také interiéry včetně změny dispozic a výměny domovní technologie. Součástí obnovy byl i prostor společenského sálu, kde bylo potřeba věnovat zvýšenou pozornost akustice. Projektanti pracovali s akustickým stropním podhledem a akustickými obklady stěn. Úprav se dočkala také vstupní terasa a přilehlé náměstí, kde asfaltovou plochu parkoviště nahradila dlažba.
- Autoři: Ondřej Tuček, Viktor Tuček
- Spolupráce: Jan Binter
- Země: Česká republika
- Zodpovědný projektant: Correct BC, s.r.o., Petr Dlouhý
- Město: Chlumec
- Ulice, číslo: Muchova 267
- PSČ: 40339
- Datum projektu: 2015
- Realizace: 2019
- Zastavěná plocha: 1 550.00m2