Suché podlahy RigiStabil - Rigips

Suché podlahy RigiStabil jsou ideálním řešením pro novostavby i rekonstrukce, kde je potřeba lehká, ale zároveň pevná a stabilní podlaha s vysokou únosností.
Díky unikátní kombinaci sádrokartonových dílců a doplňkových komponentů nabízí tento systém vynikající mechanické vlastnosti, dlouhou životnost a snadnou montáž.
Klíčové vlastnosti
- Vysoká pevnost a únosnost – ideální pro bytové, komerční i veřejné budovy
- Rychlá a suchá montáž – žádné mokré procesy
- Výborná akustická izolace – redukce kročejového hluku
- Kompatibilita s podlahovým vytápěním – efektivní přenos tepla
- Odolnost vůči vlhkosti – vhodné i pro místnosti se zvýšenou vlhkostí
Systémové komponenty
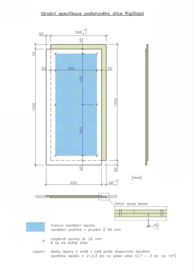
- Podlahové dílce RigiStabil E25 – pevné sádrokartonové desky určené pro rychlou instalaci
- Desky Isover T-P 25 mm – Čedičová vlna pro zlepšení kročejové neprůzvučnosti a tepelné izolace
- Roznášecí deska RigiStabil – zvyšuje pevnost a stabilitu podlahového systému
- Podlahové lepidlo Rigidur – zajišťuje pevné spojení jednotlivých dílců
- Suchý vyrovnávací podsyp – umožňuje snadnou nivelaci podkladu
- Šrouby do podlah RigiStabil – pro bezpečné a stabilní kotvení
- Tmel MAX – pro dokonalé zatmelení spár a hladký povrch podlahy

Oblasti použití
Systém suchých podlah RigiStabil je ideální pro rekonstrukce stávajících budov, dřevostavby, bytovou výstavbu i administrativní a veřejné prostory. Díky své nízké hmotnosti minimalizuje zatížení nosných konstrukcí, přičemž poskytuje vysoký komfort a dlouhou životnost.
Technické parametry a dostupnost
Podlahové dílce RigiStabil jsou dostupné v různých tloušťkách a formátech. Systém umožňuje kombinaci s různými podkladovými materiály a je plně kompatibilní s běžnými typy podlahových krytin.
Detailní technické specifikace a doporučené skladby podlahového systému RigiStabil jsou dostupné na webových stránkách nebo je možné kontaktovat technickou podporu.





