Obytný komplex na severu Bratislavy plně využívá možnosti prefabrikace

V atraktivní lokalitě Krče na okraji Záhorské Bystrice, která patří v rámci Bratislavy k nejdynamičtěji se rozrůstajícím obytným čtvrtím, vyrostl obytný soubor Karpatium Rezidence. Architekti ze slovenského studia FVA ve svém návrhu zohlednili specifika dané lokality, která promítli do architektonického výrazu komplexu.
Karolína Řeháčková , 10. 1. 2022 / Advertorial
Architektura bytových domů navazuje na rostoucí okolní výstavbu příměstského charakteru nízkopodlažní blokové zástavby a zástavby solitérních rodinných domů. Přiměřené měřítko jednotlivých domů i kompoziční uspořádání celého komplexu odpovídá okolní urbanistické struktuře a nesnaží se nijak dominovat. Obytný komplex Karpatium Rezidence nabízí 145 bytových jednotek různých velikostí. Parkování umístili architekti do podzemních garáží, na jejichž střeše se nachází zelená parková plocha – ústřední veřejný prostor, ze kterého se vstupuje do jednotlivých domů.
Více k tématu
Projektování v BIM a využití prefabrikace
Projekt pro zhotovení stavby byl kompletně zpracovaný v BIM, což výrazně usnadnilo koordinaci projektu a současně se eliminovaly případné chyby v projektu ještě během přípravy. Práce s informačním prostorovým modelem přinesla dále výraznou úsporu času a nákladů při přípravě stavby developerem.
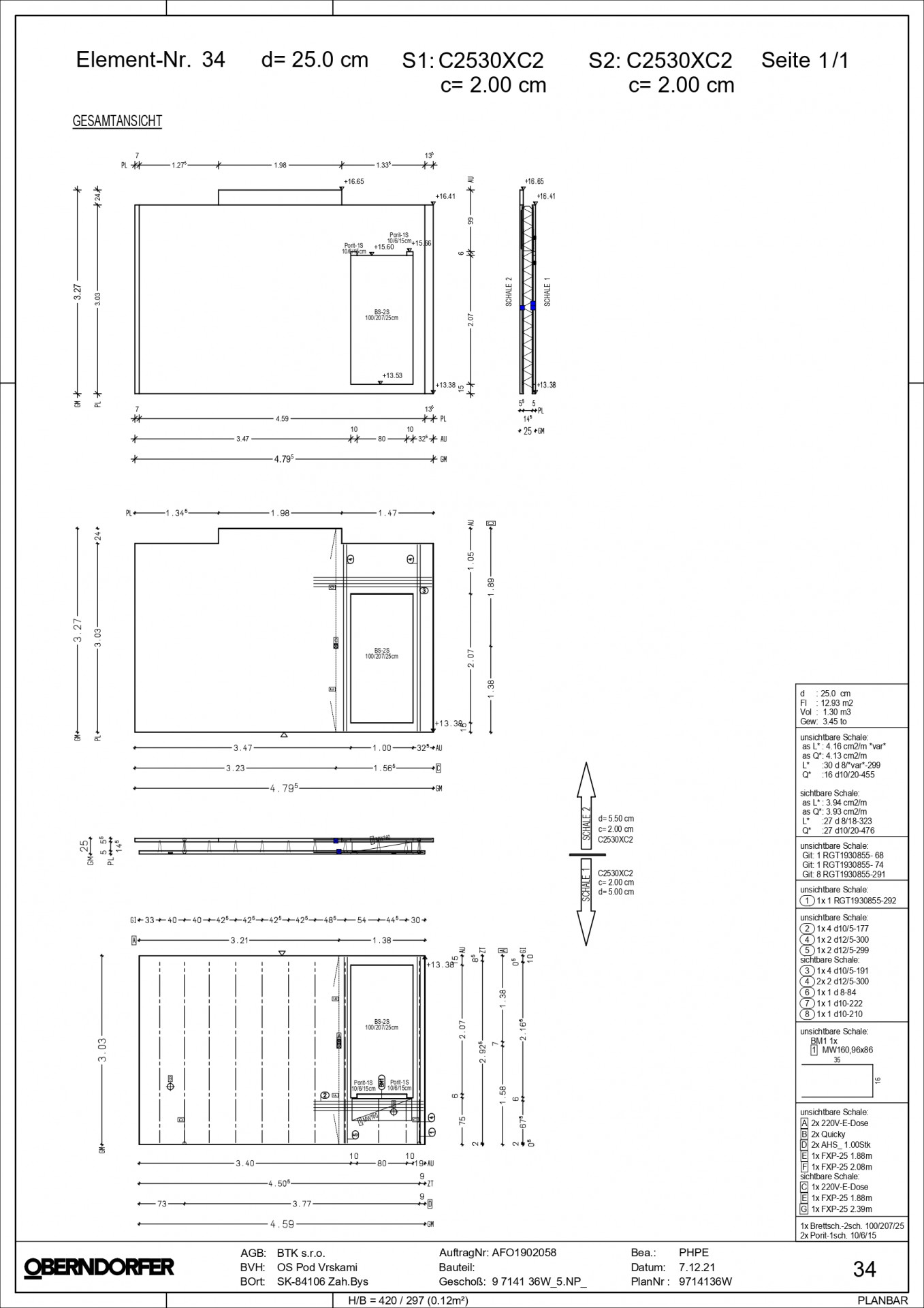
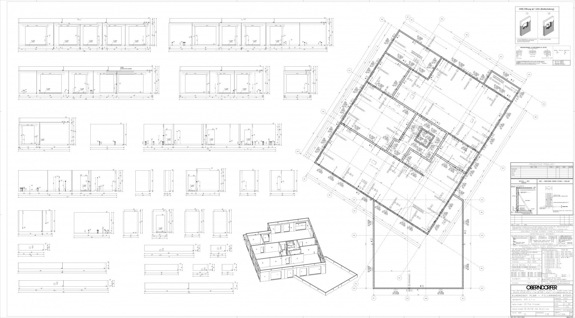
S ohledem na rychlost a přesnost výstavby zvolil investor cestu prefabrikace. Základ jednotlivých domů tak tvoří filigránové stěny a stropy. Také další prvky jako balkóny a schodiště představují prefabrikované díly. Prefabrikované konstrukce vznikaly pod taktovkou projektantů z Polivka, Hritz Precat Engineering s.r.o v programu Allplan Precast (dříve Allplan Planbar verze 2020-1-2).

3D model a NC-data
Propojení 3D modelovaní/ projektování s výstupem NC-dat pro plně automatizovanou výrobu je v programu Allplan Precast jedinečné a umožňuje projektantům soustředit se na samotné navrhování, přičemž řadu rutinních činností (jako např. dílenskou dokumentaci jednotlivých prvků, kótování, výkazy atd.) přebírá automaticky program.
Projektant vytváří reálný 3D model se všemi potřebnými zabudovanými prvky (jako např. elektroinstalace), veškerými otvory potřebnými pro jednotlivé profese, i se zabudovanou výztuží dle statického výpočtu. V pozadí se na základě přednastavených šablon pro jednotlivé typy prvků automaticky generuje dílenská dokumentace prefabrikovaných prvků. Stejně tak je automaticky k dispozici výkaz každého prvku s podrobným rozpisem. Sám program tak vygeneruje požadované množství hlavní a rozdělovací výztuže, výkazy zabudovaných prvků, plochy, objemy, třídu použitého betonu a množství dalších specifických hodnot. Program generuje i celkový sumář, který pak slouží jako podklad pro fakturaci a který je automaticky exportovaný do info-systému prefy. Data automaticky generovaná programem Allplan Precast pak využívají průmysloví roboti či jsou předávána lince na svařování sítí s požadovaným množstvím výztuže.

Betonové lego
„Součástí práce projektanta-technika je i optimalizace návrhu jednotlivých prefabrikovaných prvků v závislosti na možnostech jeřábu, který prvky transportuje na stavbě (jedná se především o maximální hmotnost prvku). Po schválení dokumentace všemi zúčastněnými subjekty (statik, architekt, profese, stavba) se exportují z Allplanu tzv.NC-data, t.j. data jednotlivých prvků, potřebná pro plně automatickou výrobu v prefě. Konečným výsledkem práce projektanta je tak kladečský výkres, který je potřebný pro montáž prefabrikovaných prvků na stavbě,“ vysvětluje postup práce s prefabrikovanými prvky Josef Hritz.
„Velkou výhodou celého systému projektování pomocí Allplan Precast je výrazné zefektivnění a optimalizace projekčních činností, včetně možnosti zohlednění změn v projektu tzv. „na poslední chvíli“, což se děje poměrně často. Jednoznačnou výhodou automatické výroby je možnost vyrábět prvky téměř libovolného tvaru (jakési „betonové LEGO“) s minimalizací chyb a dodávat je na stavbu prakticky „just in time“, což též urychluje proces samotné výstavby bez nároku na dodatečné skladovací prostory,“ doplňuje další výhody prefabrikace Josef Hritz.
Snahou tvůrců projektu Karpatium Rezidence bylo vytvořit dokonalé nadstandardní bydlení. Tomu odpovídají i navržené systémy větrání a vytápění, velkoplošná okna s izolačními trojskly či elektronicky ovládané exteriérové žaluzie. Ve své preciznosti tak nesměla pokulhávat ani hrubá stavba, která musela přesně sedět s projektem. Zvolená technologie výstavby pomocí filigránových stropů a stěn tento záměr zajistila dokonale.

- Realizace: 2021
- Realizační firma: BTK - bývanie, teplo, klimatizácia s.r.o.
- Projektant: FVA, s.r.o.
- Investor: BTK - bývanie, teplo, klimatizácia s.r.o.
- Projektant statiky: PROPLAN, s.r.o.
- Projektant prefabrikovaných systémů: Polivka, Hritz Precat Engineering s.r.o.
- Výrobce prefabrikačních dílů: FRANZ OBERNDORFER GmbH & Co KG
- Technická podpora: FRANZ OBERNDORFER GmbH & Co KG, Ing. T.Tupy
- Město: Bratislava
- Filigránové stěny (HWE): 17.884,13 m²
- Filigránové stropy (ED): 15.171,02 m²