Architektura / občanské stavby

Bočan 80: České velvyslanectví ve Tbilisi

Jan Bočan se svým týmem vyhrál v roce 2001 architektonickou soutěž na České velvyslanectví ve Tbilisi. Následně za něj získal cenu Svazu architektů a Ministerstva výstavby Gruzie za nejlepší realizaci roku 2005. Od tamní Fakulty architektury Technické univerzity ve Tbilisi získal profesuru honoris causa, kde poté několik let přednášel. Následující text sepsal sám Jan Bočan jako autorský popis projektu.

Jan Bočan , 19. 10. 2017

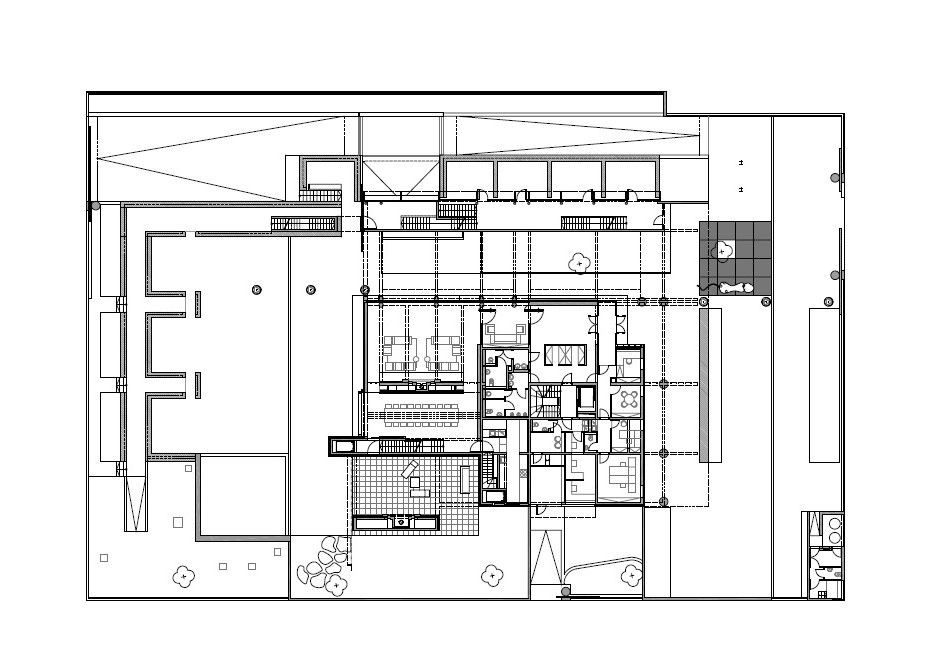
Objekt ambasády je situován na jedné z nejvýznamnějších tříd hlavního města Gruzie, v ulici Ilji Čavčavadzeho, která je prodloužením hlavní komunikační tepny městského centra – Rustaveliho třídy. Krásný pozemek se vzrostlou zelení určil koncepci řešení. Snažili jsme se vytvořit zahradní pavilon – dominantu parkového prostředí – a stávající zeleň zachovat v maximální míře. Objekt má tři nadzemní a jedno podzemní podlaží.

Seizmická oblast si vynutila stavební technologii monolitického železobetonu. V horních podlažích se uplatňuje dřevo ve statické i pohyblivé formě. Dřevěné nastavitelné žaluzie chrání prostory proti horkému slunci, ale i proti všetečným fotografům. Jednotlivé prostory jsou orientovány tak, aby byl znesnadněn vizuální kontakt s vnějším prostředím. Platí to o reprezentačních prostorech, kancelářích i o bytech, u kterých jsme se navíc snažili o vytvoření prostředí vhodného k životu, ne pouze k přebývání.

Železobetonová monolitická konstrukce je kombinována s dřevěnými partiemi a využívána je popínavá zeleň. Železový pohledový beton v kombinaci s dřevěnými obklady, pororoštovými stěnami s akronátovými detaily zastřešení a fasády ze stříkaného betonu – to vše vtisklo této architektuře romantický, brutalistický charakter. Mně osobně to připomíná začátek mé architektonické kariéry, kterou v mém architektonickém mládí ovlivnila tvorba japonských a amerických architektů. Dalším důležitým momentem bylo i to, že současná Gruzie ve svých technických možnostech jiné podmínky neposkytovala.

Stávající vzrostlá zeleň na pozemku byla v maximální možné míře zachována a zakomponována do prostorového řešení exteriéru a částečně i interiéru objektu. Recepční zahrada je založena pomocí jednoduchých konstrukcí z pletiva porostlého popínavou zelení. Ty vytváří ochranu proti vizuálnímu kontaktu z přilehlé ulice a ze sousedních pozemků, a pořádané společenské akce tak mohou mít intimní charakter. Toto řešení má zároveň i bezpečnostní význam. V severovýchodním cípu pozemku je umístěn objekt policejní ostrahy, kontrolující všechny vstupy na pozemek a k budově.

Pro mne je důležité vycházet při architektonické práci z daného prostředí. Při tvorbě prostoru vycházím zevnitř ven a opět se vracím dovnitř. Myslím, že pro tento postup je charakteristická jednota exteriéru a interiéru. Pro tento projekt se podařilo vytvořit názorově jednotný tým, to byl určitě předpoklad konečného úspěchu. Jsem přesvědčen, že jsme vytvořili současnou architekturu, která reaguje na potřeby investora – Ministerstva zahraničních věcí České republiky – a na místní podmínky. Zastupitelský úřad je místem prvotního setkání místního občana s Českou republikou a její kulturou. Z této skutečnosti jsme vycházeli a snažili jsme se ji abstraktně vyjádřit. Reprezentační prostory mají perfektně provedené dřevěné podlahy, omítky do výše 220 cm jsou na hliněné bázi s vysoce hladkým povrchem. Tento palácový charakter interiéru kontrastuje s pohledovými betony převýšených betonových trámů a betonového stropu. Z interiéru jsou atraktivní průhledy do nově založené zahrady. Gruzínci vnímají v naší architektuře její současnost a ctí ji. Pomáhá jim v jejich snaze cítit se poslední výspou evropské civilizace. Tato stavba získala od Svazu architektů Gruzie a Mini­sterstva výstavby Gruzie Cenu za nejlepší realizaci roku ve Tbilisi. 

  • autor: Jan Bočan *
  • publikováno: * 19. 10. 2017
  • zdroj: * Osobní popis autora

Nabídky práce

Mohlo by vás zajímat

Generální partner
Hlavní partneři