 
				
					
                    					1/40
				
			 
						
				 
				
					Administrativní ulice, Areál Ponávka, Studio Acht / Václav Hlaváček.
                    					2/40
				
			 
						
				 
				
					Administrativní ulice, Areál Ponávka, Studio Acht / Václav Hlaváček.
                    					3/40
				
			 
						
				 
				
					Administrativní ulice, Areál Ponávka, Studio Acht / Václav Hlaváček.
                    					4/40
				
			 
						
				 
				
					Administrativní ulice, Areál Ponávka, Studio Acht / Václav Hlaváček.
                    					5/40
				
			 
						
				 
				
					Administrativní ulice, Areál Ponávka, Studio Acht / Václav Hlaváček.
                    					6/40
				
			 
						
				 
				
					CT Boxy, Areál Ponávka, Studio Acht / Václav Hlaváček.
                    					7/40
				
			 
						
				 
				
					Bývalé škrobárny, Areál Ponávka, Studio Acht / Václav Hlaváček.
                    					8/40
				
			 
						
				 
				
					Bývalé škrobárny, Areál Ponávka, Studio Acht / Václav Hlaváček.
                    					9/40
				
			 
						
				 
				
					Bývalé škrobárny, Areál Ponávka, Studio Acht / Václav Hlaváček.
                    					10/40
				
			 
						
				 
				
					Bývalé škrobárny, Areál Ponávka, Studio Acht / Václav Hlaváček.
                    					11/40
				
			 
						
				 
				
					Bývalé škrobárny, Areál Ponávka, Studio Acht / Václav Hlaváček.
                    					12/40
				
			 
						
				 
				
					Bývalé škrobárny, Areál Ponávka, Studio Acht / Václav Hlaváček.
                    					13/40
				
			 
						
				 
				
					Bývalé škrobárny, Areál Ponávka, Studio Acht / Václav Hlaváček.
                    					14/40
				
			 
						
				 
				
					Bývalé škrobárny, fotografie před rekonstrukcí.
                    					15/40
				
			 
						
				 
				
					Koleje Domeq, Areál Ponávka, Studio Acht / Václav Hlaváček.
                    					16/40
				
			 
						
				 
				
					Koleje Domeq, Areál Ponávka, Studio Acht / Václav Hlaváček.
                    					17/40
				
			 
						
				 
				
					Koleje Domeq, Areál Ponávka, Studio Acht / Václav Hlaváček.
                    					18/40
				
			 
						
				 
				
					Koleje Domeq, Areál Ponávka, Studio Acht / Václav Hlaváček.
                    					19/40
				
			 
						
				 
				
					Koleje Domeq, Areál Ponávka, Studio Acht / Václav Hlaváček.
                    					20/40
				
			 
						
				 
				
					Koleje Domeq, Areál Ponávka, Studio Acht / Václav Hlaváček.
                    					21/40
				
			 
						
				 
				
					Koleje Domeq, Areál Ponávka, Studio Acht / Václav Hlaváček.
                    					22/40
				
			 
						
				 
				
					Koleje Domeq, Areál Ponávka, Studio Acht / Václav Hlaváček.
                    					23/40
				
			 
						
				 
				
					Koleje Domeq, Areál Ponávka, Studio Acht / Václav Hlaváček.
                    					24/40
				
			 
						
				 
				
					Koleje Domeq, Areál Ponávka, Studio Acht / Václav Hlaváček.
                    					25/40
				
			 
						
				 
				
					Koleje Domeq, Areál Ponávka, Studio Acht / Václav Hlaváček.
                    					26/40
				
			 
						
				 
				
					Koleje Domeq, Areál Ponávka, Studio Acht / Václav Hlaváček.
                    					27/40
				
			 
						
				 
				
					Koleje Domeq, Areál Ponávka, Studio Acht / Václav Hlaváček.
                    					28/40
				
			 
						
				 
				
					Koleje Domeq, Areál Ponávka, Studio Acht / Václav Hlaváček.
                    					29/40
				
			 
						
				 
				
					Koleje Domeq, Areál Ponávka, Studio Acht / Václav Hlaváček.
                    					30/40
				
			 
						
				 
				
					Koleje Domeq, Areál Ponávka, Studio Acht / Václav Hlaváček.
                    					31/40
				
			 
						
				 
				
					Areál Ponávka, Studio Acht / Václav Hlaváček, situace
                    					32/40
				
			 
						
				 
				
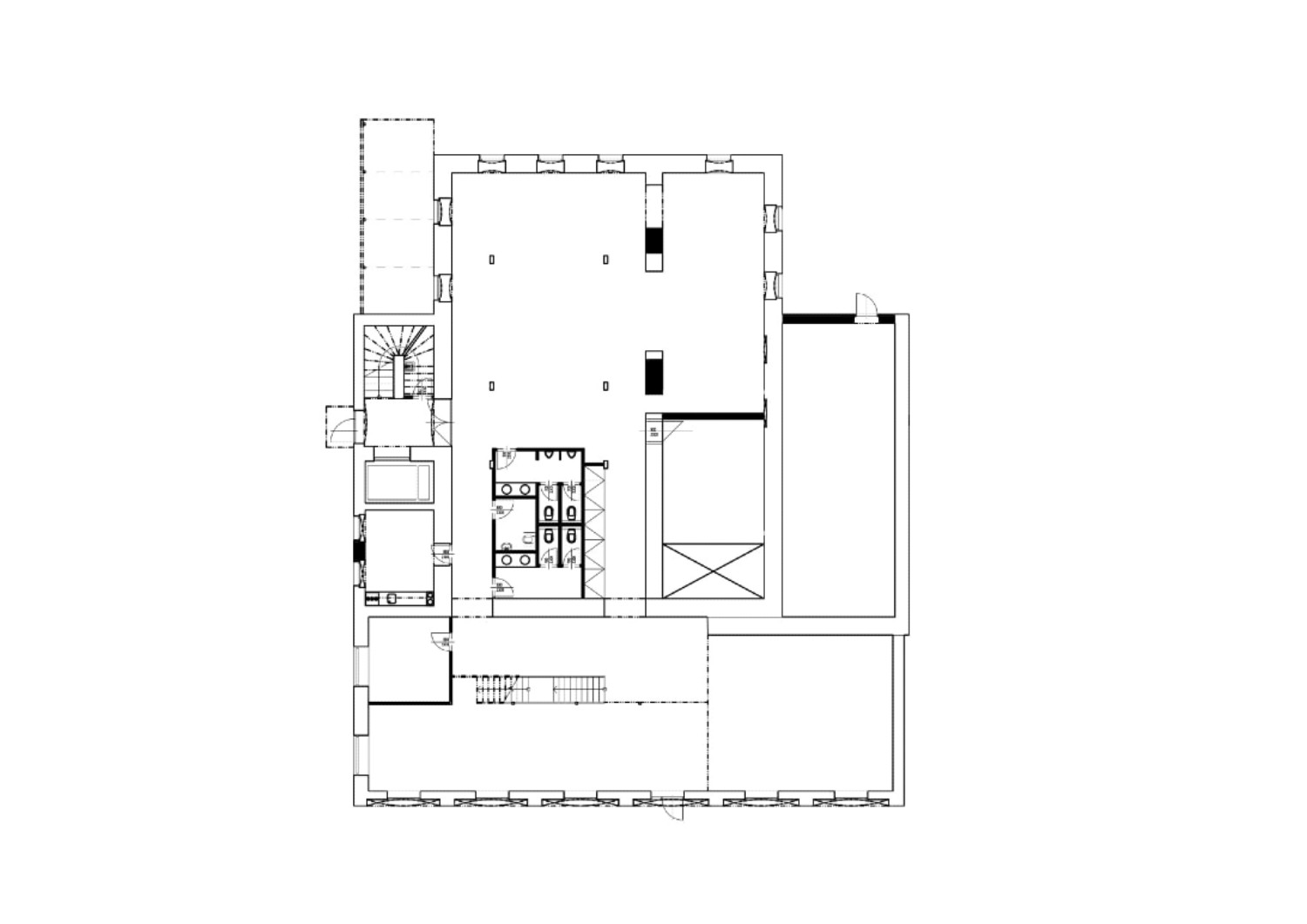
					Areál Ponávka, Studio Acht / Václav Hlaváček, administrativa 1NP
                    					33/40
				
			 
						
				 
				
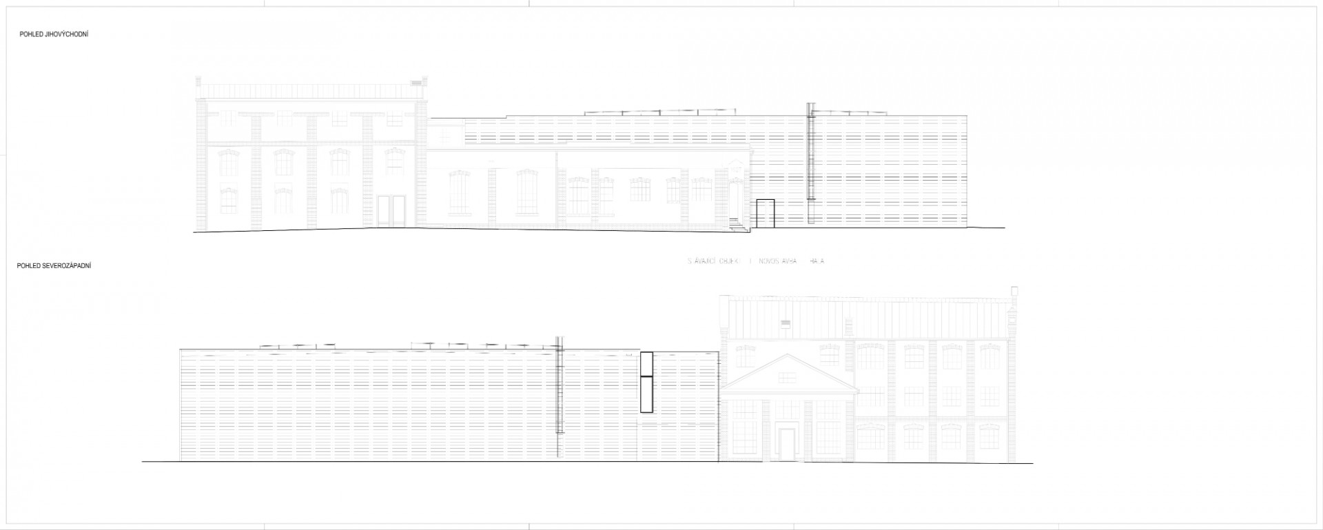
					Areál Ponávka, Studio Acht / Václav Hlaváček, situace, administrativa pohledy
                    					34/40
				
			 
						
				 
				
					Areál Ponávka, Studio Acht / Václav Hlaváček, administrativa řezy pohledy
                    					35/40
				
			 
						
				 
				
					Areál Ponávka, Studio Acht / Václav Hlaváček, administrativa řezy pohledy
                    					36/40
				
			 
						
				 
				
					Areál Ponávka, Studio Acht / Václav Hlaváček, administrativa řezy pohledy
                    					37/40
				
			 
						
				 
				
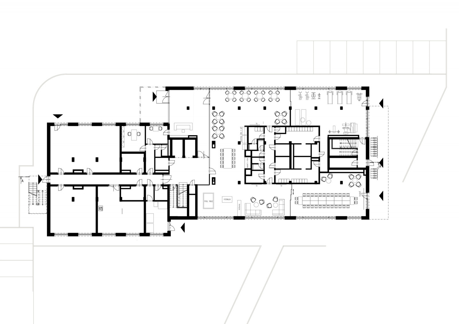
					Domeq, Studio Acht / Václav Hlaváček, půdorys 1NP
                    					38/40
				
			 
						
				 
				
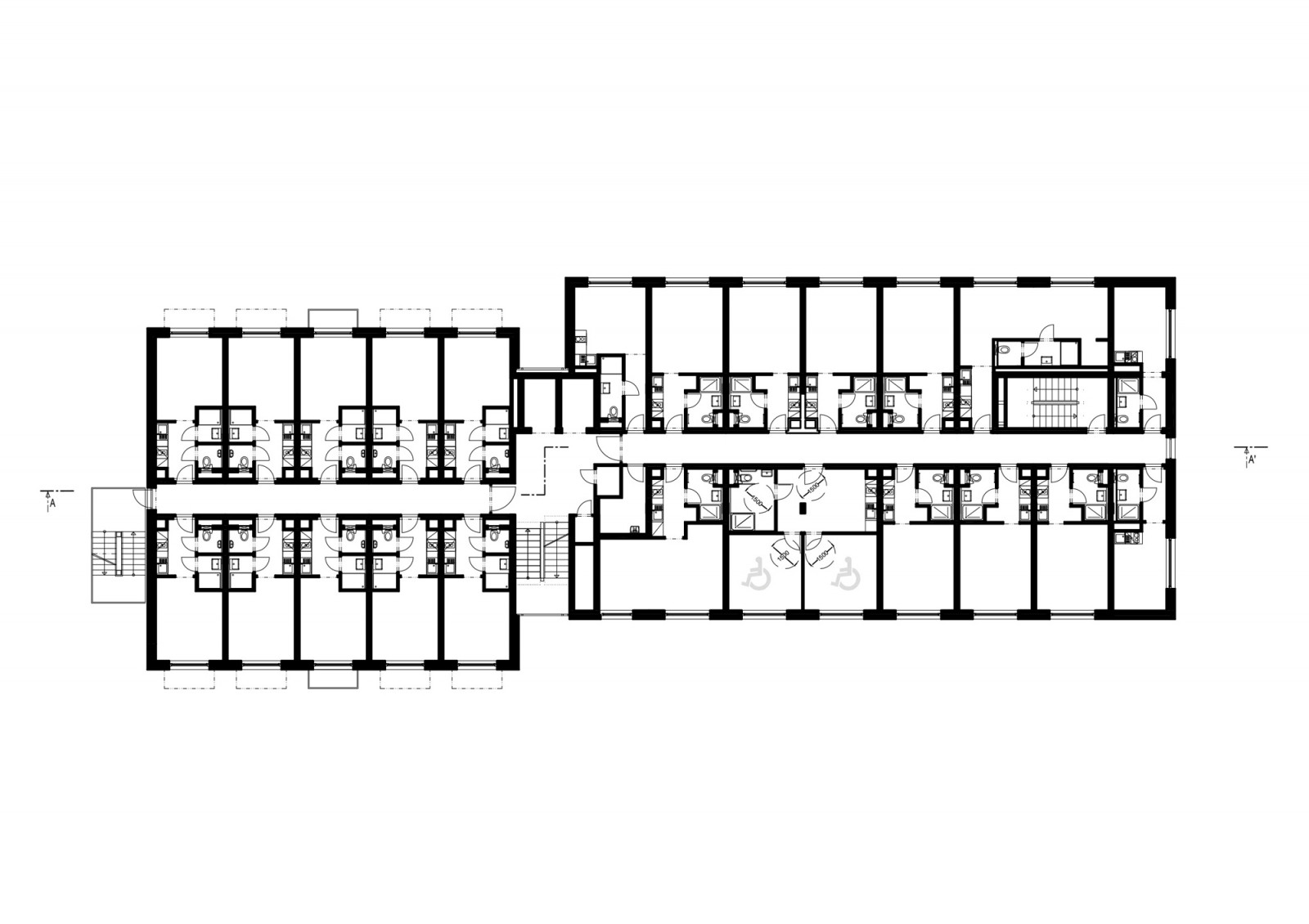
					Domeq, Studio Acht / Václav Hlaváček, půdorys typické podlaží
                    					39/40
				
			 
						
				 
				
					Domeq, Studio Acht / Václav Hlaváček, řez
                    					40/40