
Moderní háv pro starobylé vykopávky v Dánsku. Příkladný a odvážný přístup ke starým památkám
Moderní provozní budova fary a kostela zvaná Kannikegården se doslova vznáší nad vykopávkami přibližně z roku 800 n. l. Stavba Kannikegården stojí na hlavním náměstí Ribe, dánského města s nejzachovalejší středověkou památkovou rezervací, přesně naproti katedrále. Prostý, cihlami pokrytý objem se vznáší nad povrchem města, aby odhaloval otevřené přízemí s tisíc let starou cihlovou rozvalinou, kterou do sebe pojímá. Obojí, ruina i moderní opláštění, dohromady tlumočí příběh dánského historického a kulturního dědictví.
Lundgaard & Tranberg Architects , 7. 2. 2023
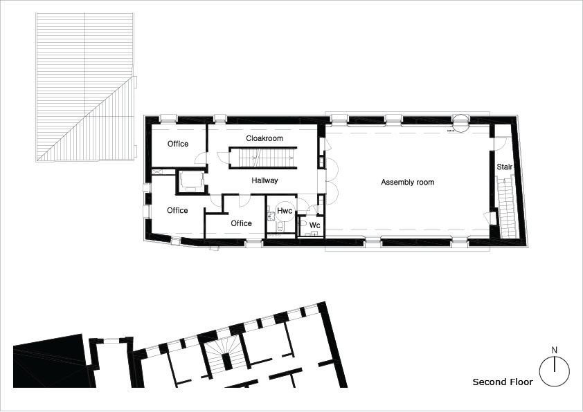
V budově nachází své přístřeší různé funkce nezbytné pro chod farní rady a pro personál kostela. Zároveň slouží jako vlídné prostředí pro konání událostí důležitých pro chod města: občanských rozprav, koncertů nebo promítání filmů.
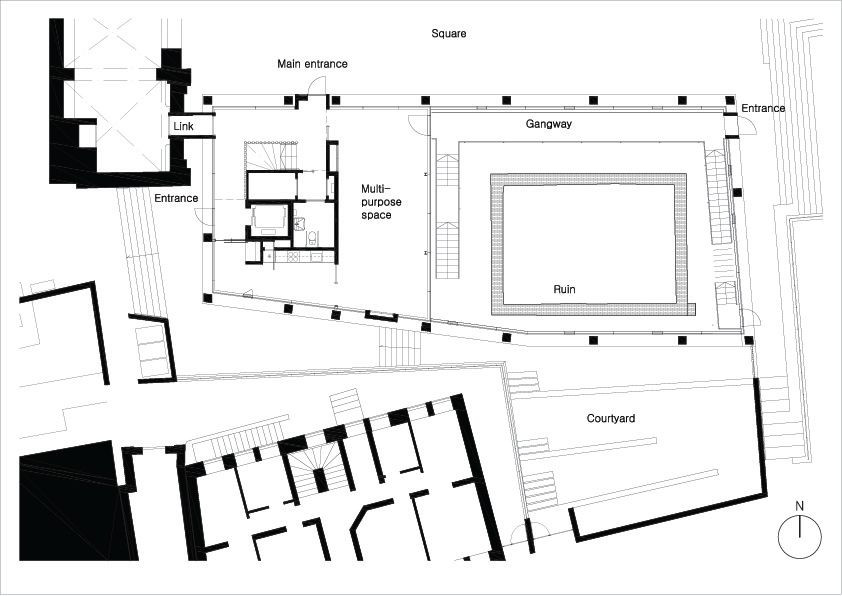
Samotný projekt stavby čelil mimořádným výchozím podmínkám: na místě staveniště byly již dříve nalezeny vykopávky svědčící o posledních bezmála tisíci letech dánské historie. Archeologický průzkum odhalil ostatky nejstaršího dánského křesťanského pohřebiště přibližně z roku 800 n. l., nesoucího svědectví o christianizaci starých Dánů. Nejviditelnějším pozůstatkem však byly památkově chráněné zděné ostatky kláštera augustiniánských kanovníků z 12. stol. Jeho zbytky nyní tvoří součást výstavních prostor, které byly upraveny tak, aby místo i nadále předávalo poselství mnoha historických vrstev minulosti.
Vlastní budovu tvoří jediná obdélníková hmota se skosenou střechou a nad chráněným archeologickým nalezištěm je držena pilíři. Podélnou stěnou se staví k náměstí a měřítko i skosení střechy navazují na okolní domy. Přizpůsobuje se tak rozměrům bezprostředního okolí. Archetypální tvar objektu narušuje pouze plasticky pojaté pokřivení směrem k jihu; to aby se k sousedícím budovám dostal dostatek světla a vzduchu. Tímto směrem je také zřízen diskrétní zelený dvůr.
Novostavba navazuje se svým historickým podložím hned několikerou nit, minulost dostává příležitost setkávat se zde s budoucností. Cihlová ruina – pozůstatek refektáře středověkého kláštera – je v překvapivé symbolické pointě dávným předkem nové budovy. Za pozornost stojí také fakt, že cihelné ostatky a samotná Kannikegården vypráví příběh techniky zdění posledních 1000 let. Dánský výbor pro kulturu přitom cihlovou rozvalinu považuje za jeden z nejzachovalejších fragmentů tohoto typu stavby v celé zemi, čímž si vysloužila status chráněné památky.
Samotná novostavba sestává z prosté ocelové konstrukce opláštěné odlehčenými fasádními prvky. Hmota domu leží na namístě odlitými pilíři, rostoucími z betonového podkladu v přízemí. Tento podklad potom propojuje různé úrovně kolem stavby s podpůrnými stěnami a rámuje místo pro expozici zděné památky, ležící asi 2,5 m pod úrovní přiléhajícího náměstí.
Ta část budovy, která stojí na pilířích, je obložena speciálně vyvinutými fasádními taškami v rudohnědých odstínech, odstínech charakteristických pro zděné domy jak města samotného, tak celého regionu. Vznášející se hmota stavby je potom činí jejich současnou interpretací. Šindele se vzájemně překrývají, podobně jako rybí šupiny, a rámují okna interiérů. Spodní část má skleněnou fasádu a tvoří místo otevřeného křížení celé budovy i všech jejích funkcí. Zároveň činí rozvalinu kláštera viditelnou pro okolí. Průhledná fasáda je přerušovaná pouze otočnými dubovými prkny. Ty tvoří zároveň stínění před sluncem i průzory v lidském měřítku.
Více k tématu
- Ateliér: Lundgaard & Tranberg Architects
- Země: Dánsko
- Město: Ribe
- Realizace: 2015
- Užitná plocha: 1 079.00m2
- Plocha pozemku: 624.00m2