Nantes transformuje brownfield na kulturní distrikt. Z průmyslového skladiště vznikla umělecká škola
Otázkou nevyřešených brownfieldů dodnes trpí mnoho evropských měst, ze kterých se během druhé poloviny minulého století vytratil těžký průmysl a zanechal za sebou obrovské chátrající areály. Navzdory často výhodnému umístění v městské struktuře a dobré dopravní dostupnosti tyto oblasti zůstávají nevyužity a pro města se stávají spíše noční můrou. Existují ale města, která se svým průmyslovým dědictvím nakládají vzorově. Kromě nové čtvrti Hamburku HafenCity je takovým příkladem projekt francouzského města Nantes, jež svůj rozsáhlý skladovací areál Alstom Warehouses postupně transformuje na nový umělecký distrikt. Na revitalizaci areálu se podepsalo také studio Franklin Azzi Architecture, které část místních skladů přestavělo na uměleckou školu.
Tereza Hůrská , 19. 12. 2018
Průmyslový areál v ostrovní části francouzského města Nantes prochází v posledních letech velkou transformací. Město postupem času skoupilo všechny místní sklady areálu Alstom Warehouses jejichž proměnou by měla vzniknout zcela nová městská část koncentrující v sobě umělecké aktivity. Bývalý brownfield na břehu Loiry by se měl stát domovem vysokých škol s více než 4500 studenty různých oborů, menších umělců, kreativních podniků a v neposlední řadě částečně také novou administrativní oblastí.
Své místo na ostrově Ile de Nantes našla také umělecká škola Higher School of Fine Arts, jíž architekti ze studia Franklin Azii Architecture umístili do dvou bývalých skladovacích hal slévárny Voruz. Před architekty však vyvstaly naráz dva úkoly – vytvořit návrh přestavby odpovídající nové náplni objektu a zároveň vytvořit z průmyslového areálu fungující urbanistickou strukturu.
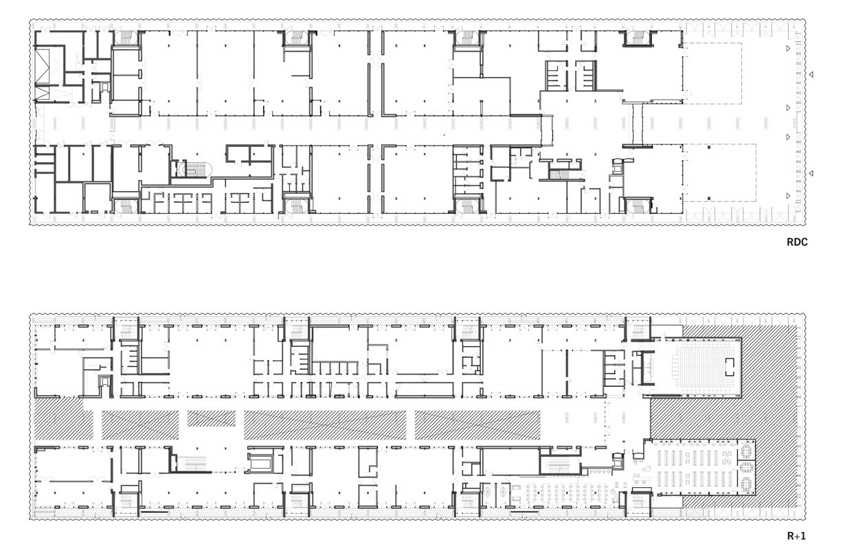
Na školní budovu přitom architekti nepohlížejí striktně jako na místo výuky, ale spíše jako na rozšíření či podnět k vzniku veřejného prostoru. Návrh proto pracuje s různými stupni otevřenosti a přístupnosti. Přízemí objektu zůstává částečně otevřeno, čímž vzniká krytý prostor sloužící k setkávání široké veřejnosti. Na ten navazuje dlouhá chodba prostupující napříč celým půdorysem, k níž přiléhají prostory sloužící jako veřejnosti přístupné přednáškové a výstavní místnosti. Učebny, výtvarné dílny a administrativní část školy se nacházejí převážně v patrech a jsou přístupné už pouze studentům a školním zaměstnancům.
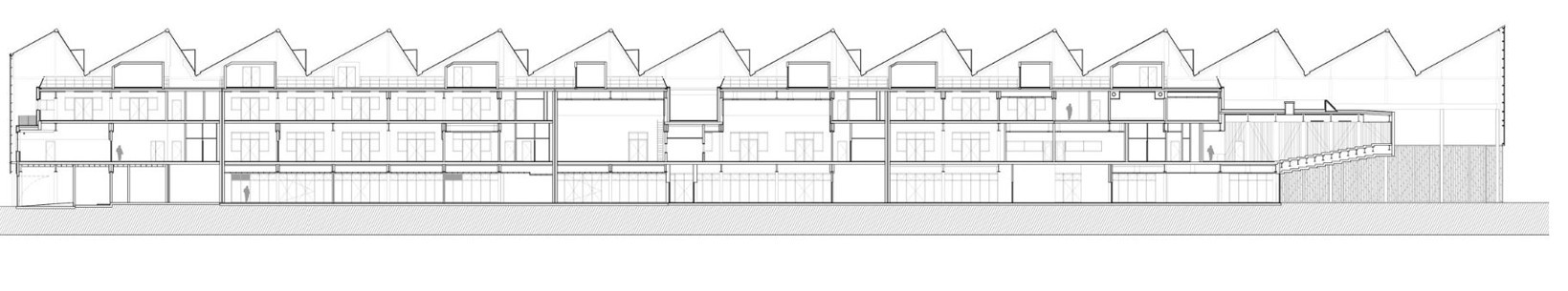
Dalšími z principů, které architekti v návrhu umělecké školy v Nantes uplatnili, jsou flexibilita a modularita. Nové prostory musí podle FFA vyhovovat jak dnešním, tak i budoucím potřebám. Navzdory respektu k průmyslovému dědictví areálu tak ze skladů č. 4 a 5 architekti zachovávají pouze jejich původní kovovou konstrukci – plášť objektů i vnitřní dispozice procházejí radikální změnou.
Do zachovaného objemu byly nově vloženy dva solitérní boxy vzájemně propojené soustavou subtilních lávek. Bílou hmotu boxů prořezávají nepravidelné okenní otvory otevírající učebny dle potřeb do prostoru vnitřní chodby. Architekti kladli velký důraz na dostatečný přísun denního světla a kromě využití střešních oken a světlíků proto po celém obvodu obalili budovu do průhledného polykarbonátového pláště. Ten kromě světelné prostupnosti navazuje také na výše zmíněnou myšlenku otevřenosti – průhledná obálka odhaluje vnitřní dění a podporuje soudržnost vznikajícího městského prostoru. Vzhledem k nedostatečným tepelně-technickým vlastnostem polykarbonátu tvoří tento materiál pouze svrchní obálku, která kryje kvalitní sklo zabraňující velkým tepelným prostupům. Lehce působící obálka navíc nechává vyniknout také zachované kovové konstrukci a škola tak stále udržuje dřívější průmyslovou atmosféru.
Projekt proměny skladovacích hal na uměleckou školu je jedním z kroků k celkové revitalizaci rozsáhlého areálů Ile de Nantes a představuje zdařilý vzor všem městům, jejichž brownfieldové oblasti, znamenající velký potenciál pro městský rozvoj, zůstávají stále bez povšimnutí.
- Ateliér: Franklin Azzi Architecture
- Země: Francie
- Město: Nantes
- Ulice, číslo: Ile de Nantes
- PSČ: 44200
- Datum projektu: 2011
- Realizace: 2017
- Užitná plocha: 9 827.00m2
- Plocha pozemku: 17 000.00m2


