Světlý byt pod starým krovem. Proměna půdy v elegantní mezonet
Dvě podlaží, dvě ložnice, dvě koupelny – a jeden soudržný interiér. Mezonet ve smíchovském činžáku využívá výšku podkroví a nechává vyniknout dřevěný krov jako hlavní výrazový prvek.
Adéla Vaculíková , 6. 6. 2025
Zobytňování půdních prostor je (nejen) v Praze tématem už od devadesátých let. A přestože řada z nich už má svého obyvatele, občas se ještě objeví půda, která čeká na přeměnu. Jednu takovou – v domě na Arbesově náměstí – naplnily nové byty. Interiér jednoho z nich navrhlo studio Formafatal, známé realizacemi, v nichž bývá kladen důraz na detaily a které mají vždy dávku něčeho extra.
Zadání investora k tomu v tomto případě přímo vybízelo – cílem bylo vytvořit byt „k exkluzivnímu pronájmu“. „Přáním klienta bylo vytvořit nadčasový a přitom nevšední prostor, který by zaujal potenciální nájemce. Důležitými aspekty byly praktičnost a udržitelnost použitých ploch a materiálů,“ popisují architektky Katarina Varsová a Petra Dangan z Formafatal.

Hlavním určujícím prvkem interiéru je stávající dřevěný krov. Architektky jej ponechaly odhalený a celý návrh situovaly mezi jeho trámy tak, aby působil přirozeně a nepřekrýval charakter původní konstrukce. „Velkou výzvou pro nás byla členitost starého půdního prostoru. Snažily jsme se s ním vypořádat citlivým zakomponováním jednotlivých prvků interiéru, které jsme navrhly a nechaly vyrobit, jak je u nás zvykem, většinou na míru,“ popisují.
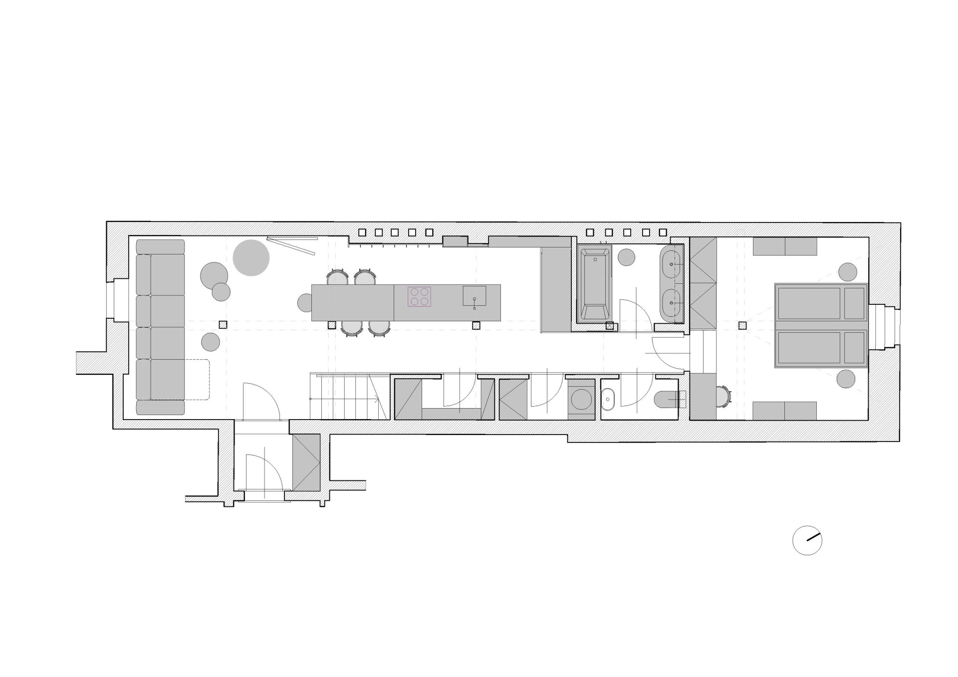
Vznikl tak prostorný mezonet o ploše 92 m², jehož dispozice zahrnuje hlavní obytný prostor, dvě ložnice, pracovnu, dvě koupelny a samostatné WC. V celém bytě převládají světlé tóny – smetanová bílá, jemné odstíny šedé a modré. Jednotnou paletu rozbíjejí barevné akcenty: terakotové věšáky v koupelně, židle u jídelního stolu nebo tyrkysové čalounění pohovky.
Obývací pokoj s touto pohovkou v čele se obrací ke kuchyni – vizuálně zajímavé, takže podstatně určuje charakter celého prostoru. V její zadní části se nachází tmavá kuchyňská skříň, která je součástí většího vloženého boxu. Ten zároveň tvoří obložení chodby a v ložnici přechází ve vestavnou šatní skříň. Bytem tak prochází jednotný tmavý objem, který kontrastuje se světlým laděním zbytku interiéru.

Prostor dvou podlaží propojuje ocelové schodiště s atypickým zábradlím z matně lakovaných profilů a perforovaného plechu. „V dolní části schodiště, kde je úložný prostor, je perforovaný plech podložen zrcadlovým nerezovým plechem. Tato kombinace vytváří efekt zrcadlení prostoru, avšak s praktickým přístupem ke skladování,“ doplňují architektky. Podobný princip funguje i u kuchyňského ostrůvku, jehož zrcadlová podnož téměř mizí v prostoru.
Více k tématu
Ačkoliv je podkroví svou výškou a odhaleným krovem samo o sobě výrazné a přitažlivé, neproudí do něj mnoho přirozeného světla. Střešní okna jsou totiž poměrně malá. Hlavní, s čím se tedy architektky musely vypořádat, bylo byt vybavit, ovšem nezahltit ho. Proto padla sázka na světlé barvy a celkově vzdušný charakter vybavení, které prostoru pomáhají vzdorovat ponurosti.
- Ateliér: Formafatal
- Autoři: Katarína Varsová, Petra Dagan
- Země: Česká republika
- Adresa: Arbesovo náměstí, Praha
- Projekt: 2021
- Realizace: 2024
- Užitná plocha: 92 m²
- Fotograf: BoysPlayNice
- Realizace stavební části:: DOMINO - promont
- Technický dozor: Petra Klapka
- Atypický nábytek: Interiéry Tesař TTK
- Zámečnické díly v rámci atypického nábytku:: Richard Bold
- Kovovýroba: Kurel
- Epoxidové stěrky: Different design
- Patinovaná výmalba: Artdecor Vladimír Jeniš
- Dodávka dřevěné podlahy a schodiště: Empiri Wood Design
- Dodávka keramické obklady a dlažby: Archtiles