
Od panského pivovaru k Port 1560. Navštivte zachráněný areál v centru Českého Krumlova
Areál bývalého schwarzenberského pivovaru se pod rukama architektů z ateliéru Domy Architects mění v kulturní centrum. Rekonstrukce čtyř klíčových budov zachovala historické vrstvy a přidala nové, originálně navržené intervence.
Adéla Vaculíková , 27. 6. 2025 / Advertorial
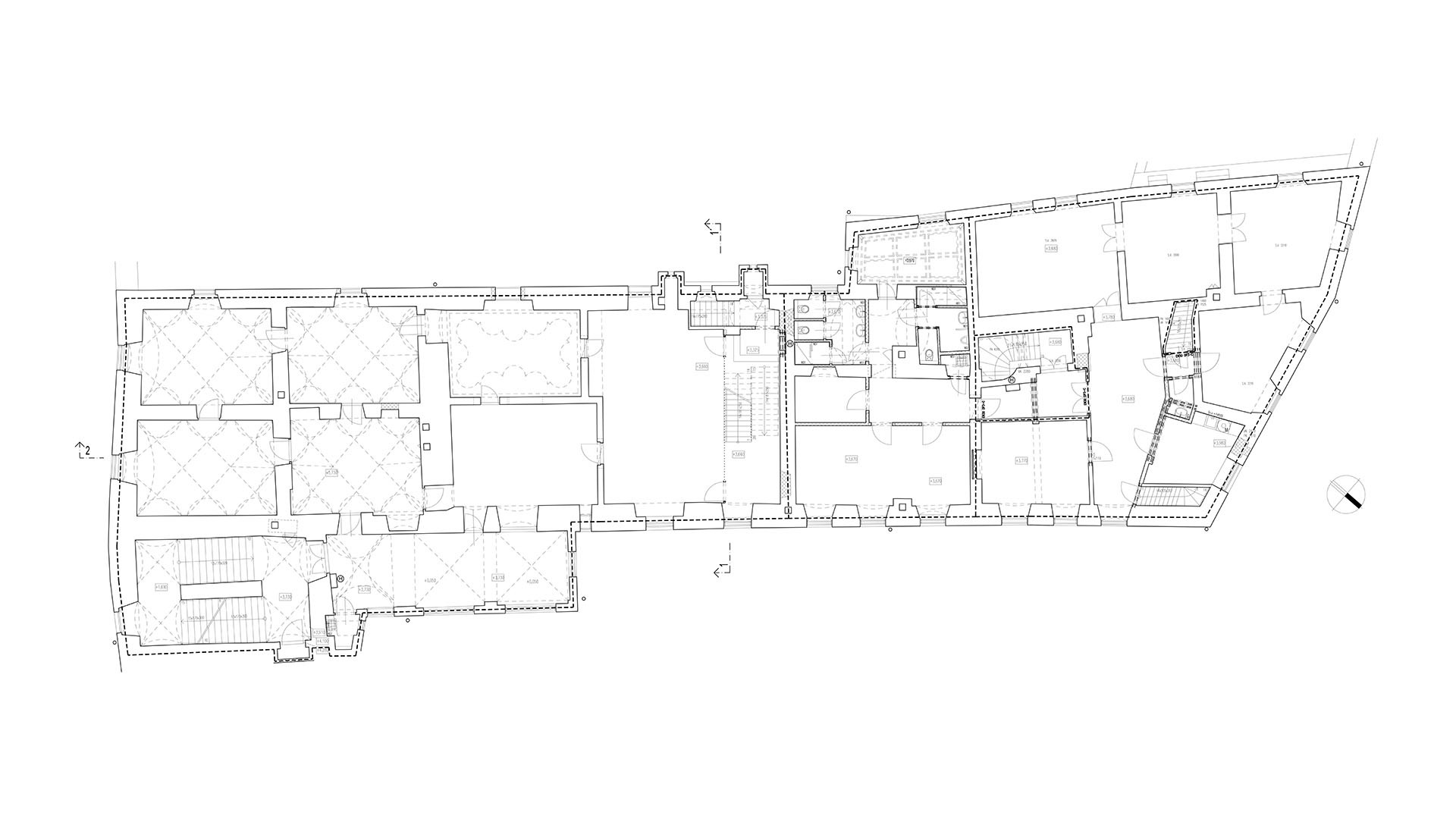
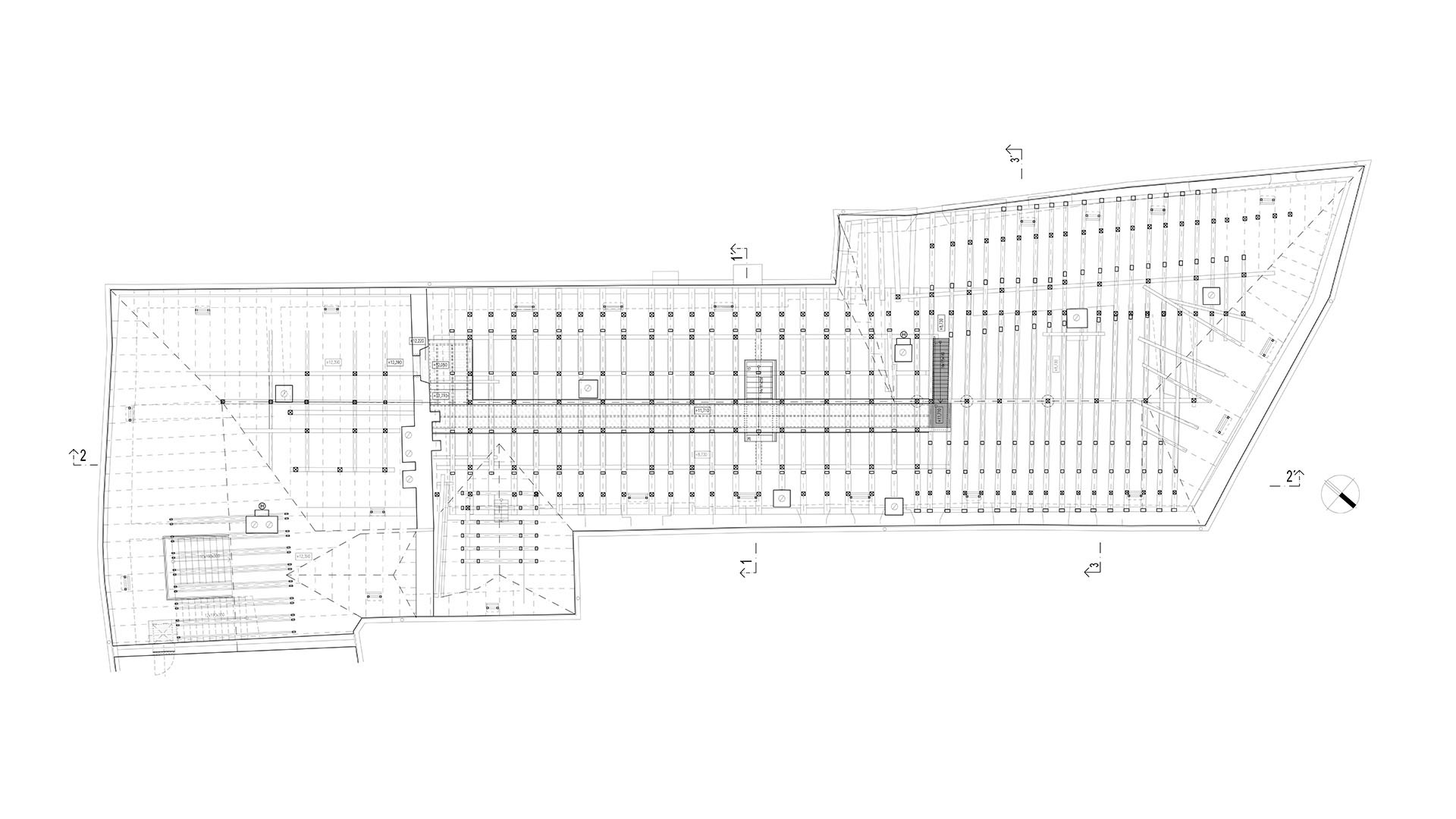
Bývalý schwarzenberský pivovar v Českém Krumlově je rozsáhlý komplex jedenácti budov různého stáří, účelu a vzhledu přímo v historickém centru Českého Krumlova. První pivo se zde uvařilo už v roce 1560, nejstarší části areálu však pocházejí z let 1490–1500 a patří k významným středověkým pamětihodnostem města. Přesto areál velmi dlouho chátral. Nynější rekonstrukce ho zpřístupnila – v industriálních kulisách nabízí prostory pro výstavy, expozice a společensko-kulturní události.
„Když jsme do pivovaru přišli poprvé, byl v hrozivém stavu. Výroba piva už byla ukončena a v areálu se nacházelo pouze pár městských sociálních bytů,“ vzpomínají architekti z ateliéru Domy Architects, který za rekonstrukcí stojí.
Realizace byla vyznamenána cenou Stavba roku 2024 a nominována také Národním památkovým ústavem na cenu Patrimonium pro futuro 2024 ve dvou kategoriích (Objev, nález roku a Prezentace a popularizace). „Díky investorově vstřícnosti a ochotě ke spolupráci s NPÚ mohl souběžně se stavbou probíhat odborný průzkum a doplňování poznatků o historii a stavebním vývoji komplexu,“ dodává NPÚ.

Staré a nové pospolu
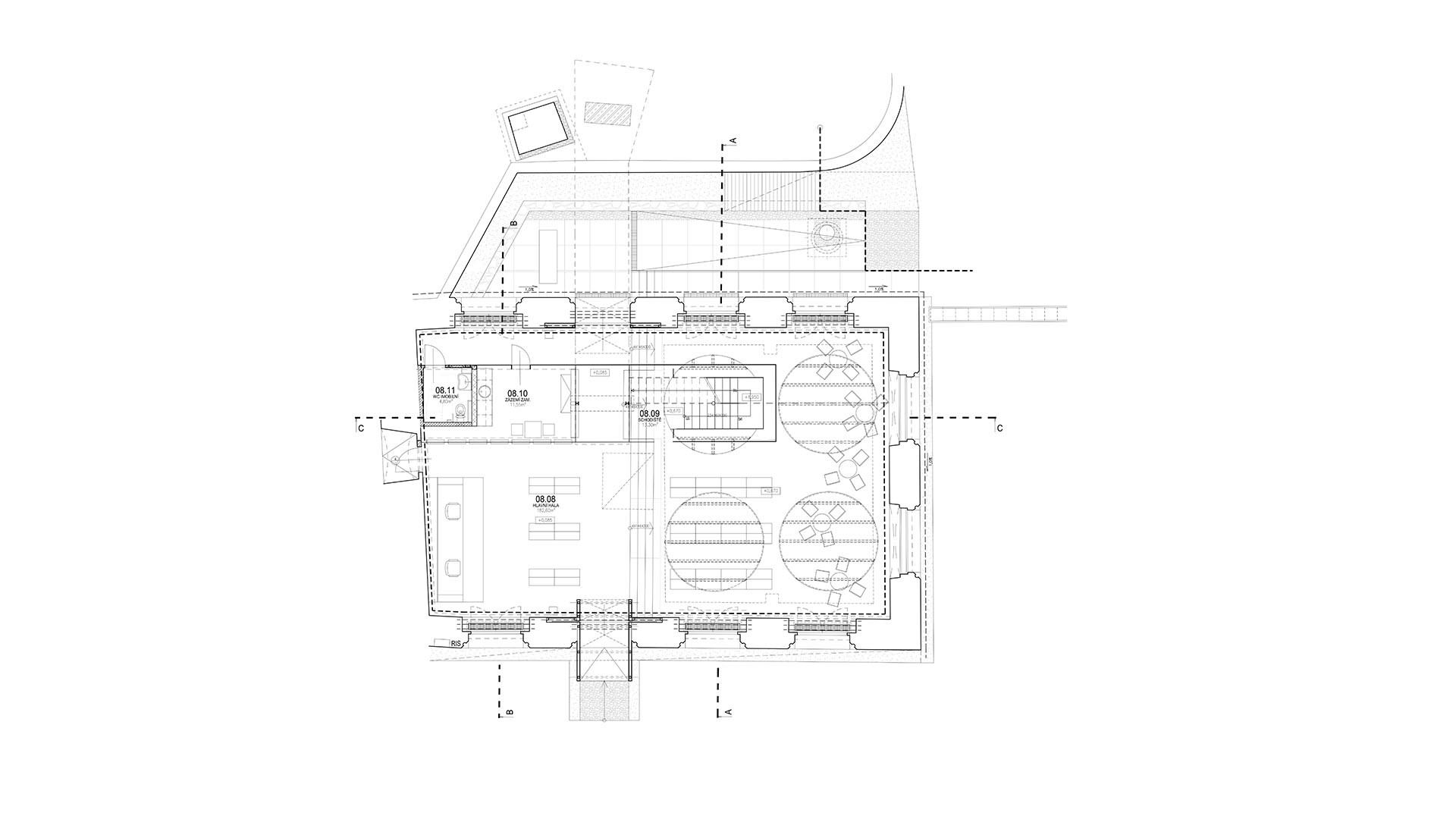
Jelikož je krumlovský pivovarský areál rozsáhlý, nezrekonstruoval se celý najednou. Mezi lety 2021 až 2023 se v něm podle návrhu Domy Architects opravily a zpřístupnily celkem čtyři objekty: Portál, Palác, Hvozd a Varna. Dnes tvoří jádro kulturního a společenského centra Port 1560.
Aktuálně jsou v Port 1560 k vidění různé výstavy a expozice, které přibližují také historii pivovaru a jeho budov. Atraktivní jsou nejen pro turisty, ale i pro místní obyvatele. Před rekonstrukcí totiž většina hodnotných částí areálu nebyla přístupná a často je překrývaly dodatečné stavební úpravy. Největším objevem se stal gotický sál, který se vynořil po odstranění příček a podhledů v přízemí Paláce.

„Dnešní dispozice vypadají jinak, než jak jsme je původně navrhli. Jelikož jsme při stavebních pracích neustále objevovali nové historické portály, ostění nebo celé sály a místnosti, museli jsme na ně reagovat a projekt upravovat,“ přibližují proces autoři.
Z hlediska architektonického konceptu pak architekti vyzdvihují dva přístupy. Na jedné straně kladení historických částí do kontrastu k novým, současným intervencím. Na druhé pak pečlivé restaurování a repasování původních prvků.
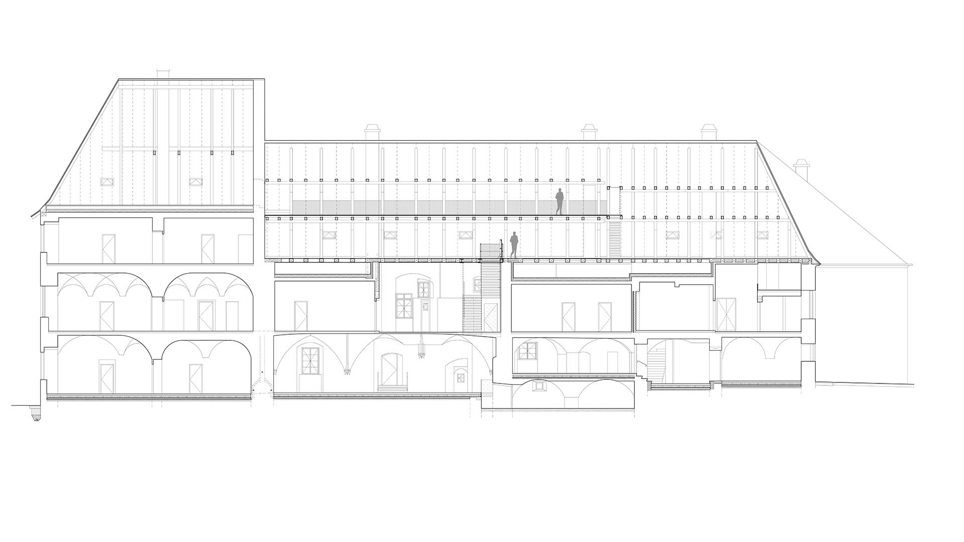
Například Varna s velkými pánvemi a kotli na vaření piva vypadá téměř stejně jako ve druhé polovině 19. století, kdy byla v areálu vybudována. Zachovaly se zde původní obklady, zámečnické prvky i technické vybavení. Obdobně se postupovalo také ve Hvozdu, objektu z roku 1882 původně určeném k sušení sladu. „Naším cílem nebylo všechno transformovat a přizpůsobit novému provozu, ale věrně ukázat, jak to v interiérech skutečně vypadalo,“ říkají architekti.

S důrazem na obnovení původního vzhledu se postupovalo i v Paláci – nejstarší části areálu, která původně sloužila jako panské sídlo obývané Annou z Roggendorfu. Uvnitř se našel reprezentační sál zaklenutý lomenými křížovými klenbami, kterému restaurátoři znovu vtiskli jeho původní barevnost. V objektu se zachovaly také dřevěné trámové a kazetové stropy, jejichž poškozené části byly stabilizovány tradičními metodami. Zvenčí se obnovila pro renesanci typická sgrafitová omítka a zůstal i hodnotný renesanční krov. Nyní se do něj dá v rámci vstupu do expozic Port 1560 podívat – mezi dřevěnými trámy zde vede skleněná lávka, kterou sami autoři rekonstrukce považují za jeden z nejefektnějších vstupů současné architektury do historického areálu pivovaru.

„Projekt oživuje historický komplex, zachovává jeho architektonické dědictví a zároveň ho přetváří pro kulturní a vzdělávací účely,“ říkají architekti. Aby areál mohl sloužit nové společensko-kulturní funkci, bylo potřeba ho technicky i prostorově přizpůsobit. Moderní vybavení, včetně systémů vytápění, ventilace a klimatizace, se podařilo integrovat tak, aby nenarušovalo architekturu historického areálu. A nenarušily ji ani ony nové, kontrastní vstupy. Po skleněné lávce renesančním krovem se mezi ně řadí také další komunikační prvky – například nová schodiště v Paláci nebo návštěvnickém centru Portál. Původně se zde chladilo pivo, dnes otevřenému a převýšenému prostoru dominuje kovové schodiště, které usnadňuje pohyb mezi areálem pivovaru a centrem města.

Do Port 1560 se dá vstoupit dvěma způsoby. Buďto od Pivovarské zahrady anebo z druhé strany z Pivovarské ulice. Vzhledem k členitosti Českého Krumlova zde panují výrazné terénní rozdíly – právě ty pomáhá překonat vnitřní schodiště návštěvnického centra Portál.
A co dál?
V areálu bývalého schwarzenberského pivovaru, dnes Port 1560, stále zůstává řada nezrekonstruovaných budov. Pravděpodobně se tedy i nadále bude proměňovat. Ateliér Domy Architects uvádí, že má v rámci již realizovaných rekonstruovaných objektů zpracovanou i komplexní studii celého území, která počítá také s dalším rozšířením areálu – konkrétně s výstavbou několika novostaveb na málo zastavěné ploše směrem k řece. „Umisťujeme tam například hotel, kongresové centrum a obchody. Podle našeho názoru by to pomohlo dořešit tuto zatím neoživenou část Českého Krumlova,“ říkají architekti.
Více k tématu
Prosadit zde novou výstavbu ovšem nebude jednoduché. Areál bývalého pivovaru totiž spadá do městské památkové rezervace Český Krumlov, která je od roku 1992 zapsaná na seznam světového dědictví UNESCO. Majitelem pozemků a objektů v bývalém pivovarském areálu je firma Centrum Český Krumlov – uvidíme, jakým směrem se bude tato část města dál rozvíjet. Udělená cena Stavba roku 2024 a nominace na ceny Národního památkového ústavu zatím svědčí o tom, že se dosud postupovalo kvalitně.
- Autoři: Jan Topinka, Michal Juha
- Ateliér: Domy Architects
- Spolupráce: Blanka Handrychová, Jakub Bednár, Roman Jarosil, Lukáš Haller, Martin Postupa
- Země: Česká republika
- Město: Český Krumlov
- Studie: 2016
- Projekt: 2022
- Realizace: 2022-2024
- Generální dodavatel stavby: Metrostav a.s.
- Zástupce investora: Ing. Karel Vavroušek