Nový parkovací dům v Ostravě bude mít hřiště na střeše a nabídne místa pro auta, lidi i zeleň
Parkovací dům u Krajského úřadu v Ostravě není pouze technickou stavbou. Architektonická studie vítězného ateliéru PROJEKTSTUDIO EUCZ ukazuje, jak lze na exponované městské parcele spojit dopravní funkci s prostorem pro lidi.
EARCH.CZ , 20. 6. 2025 / Advertorial
V centru Ostravy roste nový parkovací dům. Bude mít několik nepravidelných podlaží, porůstat ho budou rostliny a na střeše bude mít dětské hřiště. Už se staví a až bude dokončený, měl by sloužit jako důkaz, že parkovací dům může působit jako městotvorný prvek.
Vše začalo architektonickou soutěží, jež v roce 2019 vypsalo město Ostrava. Porota vybírala z více než čtyř desítek návrhů. Vítěznou studii zpracoval ostravský ateliér PROJEKTSTUDIO EUCZ pod vedením architekta Davida Kotka. Jejich návrh přesvědčil mimo jiné koncepcí, která se nesoustředí jen na efektivní parkování, ale přináší do města i kvalitní veřejný prostor a důraz na udržitelnost. Dnes už se parkovací dům staví. Výstavbu zajišťuje firma IPS Třinec, prováděcí dokumentaci zpracovává Kania a.s.

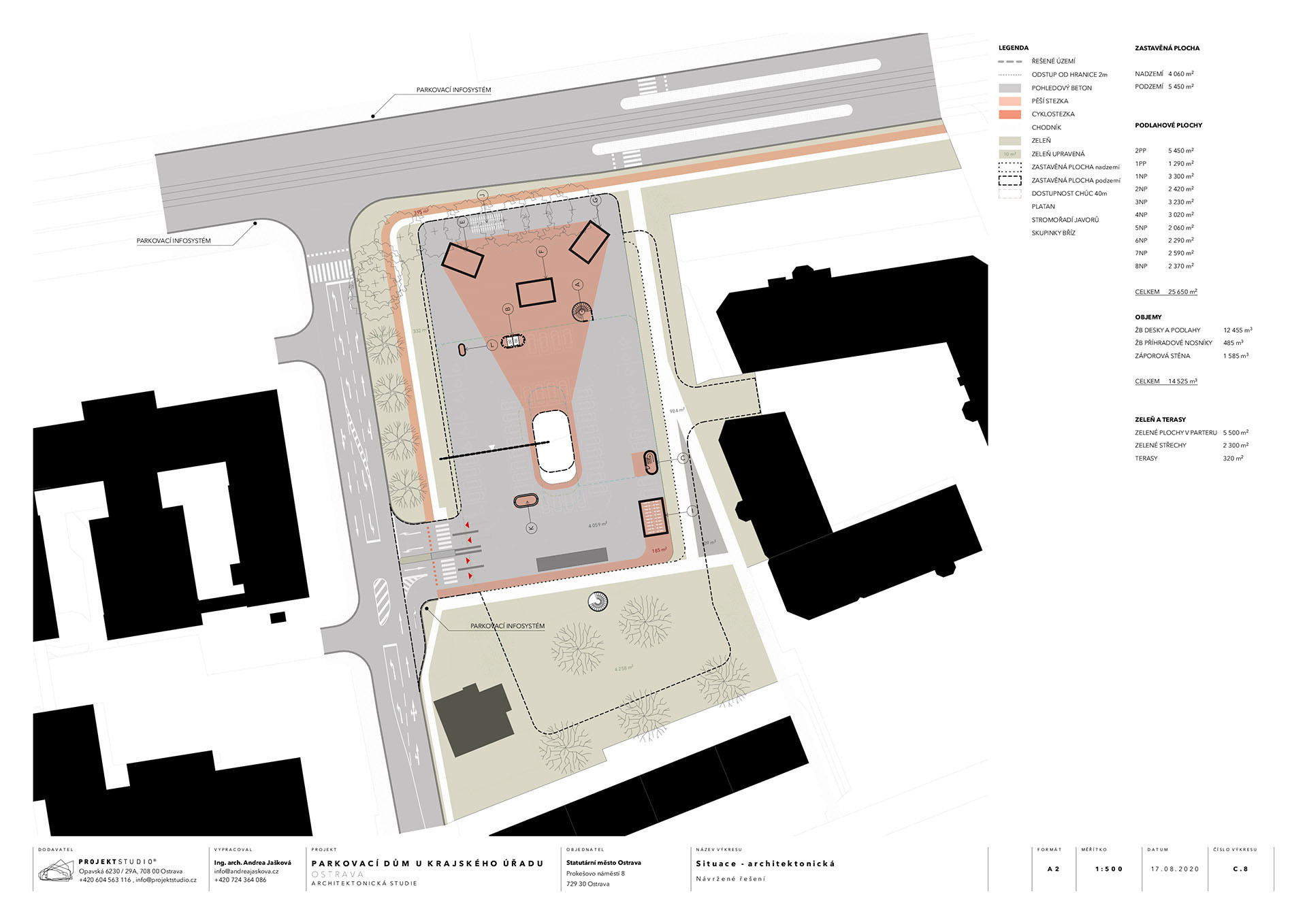
Parkovací dům vyrůstá na důležité městské parcele – přímo u jedné z hlavních ostravských tříd, nedaleko Domu kultury a krajského úřadu. Proluka, která dosud působila jako bariéra, dostává novou funkci. Město v ní nevidí jen prostor pro auta, ale i příležitost rozšířit občanskou vybavenost a zlepšit prostředí pro pěší a cyklisty. „Důležité bylo nevytvořit jen technickou stavbu, ale objekt, který bude součástí města a nabídne i něco navíc," říká David Kotek, spolumajitel ateliéru PROJEKTSTUDIO EUCZ.
Architektura spirály
Návrh pracuje s jednoduchou, ale funkčně efektivní logikou. Dominantním prvkem je spirálovitá rampa, podél níž jsou rozmístěna šikmá parkovací stání. Uživatel auta pouze následuje dráhu rampy – bez složité orientace, bez zbytečných provozních komunikací. Z hlediska efektivity využití prostoru jde o promyšlený a úsporný přístup. Architekti díky tomu eliminovali potřebu dalších pohybových ploch a zvýšili počet parkovacích míst.
Zásadní roli hraje také konstrukční řešení. Stavba využívá monolitický pohledový železobeton, včetně výrazných sloupů ve tvaru písmene V a A, které propůjčují objektu určitou rytmiku. Vodorovné stropní desky jsou bezprůvlakové, uspořádané do geometricky přesné šroubovice. Výrazným prvkem je i způsob, jakým jsou desky vysouvány – každé podlaží má jiný půdorysný přesah, čímž vzniká dynamická plastika, jenž stavbu vizuálně odlehčuje.
Fasáda bez zbytečností
Vnější plášť objektu je záměrně minimalizován. Tvoří ho bezpečnostní nerezová síť, která nejen plní funkci ochrany proti pádu, ale zároveň propouští světlo a vzduch. „Nechtěli jsme investovat do drahé a často samoúčelné fasády. Místo toho jsme zvolili úsporné řešení – šetří materiál a zároveň dává vyniknout samotné konstrukční logice objektu," doplňuje architekt Kotek. Sítě lze navíc osázet popínavými rostlinami, které mohou v budoucnu nahradit stínící prvky a podpořit ekologickou funkci domu.
Dům propojují tři vertikální komunikační jádra, jež slouží nejen jako výtahy a schodiště, ale i jako konstrukční stabilizační prvky. V rámci celkové koncepce byla navržena sekundární pěší trasa – jako stuha se vine vnitřním atriem a vystupuje až na střechu. Právě zde se nachází veřejně přístupné multifunkční hřiště, které dává domu další, komunitní rozměr. Podobný přístup dnes volí i řada měst na severu Evropy – například v Kodani, kde se z parkovacích domů stávají místa pro život, ne jen pro odstavení auta.
Zelené střechy i voda v retenční nádrži
Na střechách je osázena extenzivní zeleň. Dešťová voda je sváděna do retenční nádrže, která je součástí viditelného řešení, a má i edukativní charakter. Voda slouží k závlaze i k ochlazování mikroklimatu v okolí. Architekti celý návrh koncipovali s ohledem na pasivní principy. Objekt se větrá přirozeně, nepotřebuje klimatizaci ani složité systémy stínění.
Více k tématu
Navrženo v Archicadu
Architektonická studie byla zpracována jako komplexní BIM model v softwaru Archicad. Díky tomu vznikl v krátkém čase přehledný 3D dokument včetně výkresové dokumentace. Klíčový prvek návrhu, spirálová rampa, byl vymodelován v Rhinu pomocí přímkových ploch. Vizualizace pro soutěž zpracovalo externí vizualizační studio. Celý návrhový proces byl ale postaven na digitálním modelu, jež umožnil flexibilní práci a přesnou koordinaci.
- Ateliér: PROJEKTSTUDIO
- Autoři: David Kotek
- Země: Česká republika
- Město: Ostrava
- Adresa: Na Jízdárně, 702 00 Moravská Ostrava a Přívoz
- Zadavatel: Statutární město Ostrava