Architektura / bytové domy

Projekt pasivních bytových domů na Bílé Hoře

Z návrhu tvůrčího týmu ARCHCON atelieru vzešly dva osově souměrné vilové domy, které díky rozdělené menší hmotě měřítkem citlivě zapadají do okolní zástavby. Myšlenka osové souměrnosti domů i parteru byla přejata z podoby nedalekého kostela Panny Marie Vítězné na Bílé hoře.

Allplan Česko s.r.o. , 16. 5. 2016

Bydlení ve městě v kontaktu s přírodou

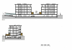
Vilové domy obsahují 16 bytů různých velikostí, které nabízejí bydlení v dojezdové vzdálenosti do centra a zároveň umožňují využití klidného bydlení v zeleni. Z ulice Na Bělohorské pláni byla navržena přímá krytá rampa do suterénu. Úroveň přízemí byla oproti okolnímu terénu zvýšena o 1 m. Nadzemní podlaží se tím dostala na platformu, která se mezi domy stává vyvýšeným společným prostorem s posezením pod stromy. Tím se autorům podařilo dosáhnout přirozené gradace parteru mezi domy. Objekt obsahuje čtyři nadzemní podlaží, z nichž 4.NP je částečně ustupující, čímž je dosaženo optického snížení celkové hmoty objektu. Tvarově je dům rozdělen do tří hlavních hmot, které jsou výškově i materiálově odlišeny.

Přírodní materiály v jemném barevném kontrastu

Fasády bytových domů byly navrženy v kombinaci tří hlavních materiálů: bílá omítka a velkoformátové vláknocementové desky Cembrit Cembonit šedého a cihlového odstínu. Šedý odstín fasádních desek je rozehrán kreativním nepravidelným spárořezem, naproti tomu cihlový odstín, použitý především na severní fasádě, využívá jednoduché horizontální členění. Balkony jsou vizuálně odcloněny dřevěnou treláží ze sibiřského modřínu, která se opakuje i na clonících stěnách mezi předzahrádkami a u bočních stěn pergol v 1.NP. Předpokladem návrhu bylo postupné porůstání pergoly a treláže popínavými rostlinami. Barevný kontrast fasádám dávají textilní rolety na oknech na jižní, východní a západní fasádě a textilní výsuvné markýzy na terasách v 4.NP v tmavě červeném odstínu. Veškerá okna byla navržena jako dřevohliníková s izolačním trojsklem a větracími štěrbinami. Zábradlí balkonů bylo pojato jako skleněné z poloprůhledného mléčného skla s ocelovými nosnými prvky. Vedle užití moderních materiálů bylo v projektu uvažováno i s využitím rekuperačního větrání a fototermických panelů pro ohřev teplé užitkové vody, čímž by bylo spolu s vhodnými skladbami konstrukcí a precizními detaily dosaženo nízkoenergetického až pasivního standardu domů.

3D model jako ideální nástroj pro komunikaci s klientem

Projekt by zpracováván v programu Allplan a od počátku byla studie zpracovávána jako 3D objekt. Tak bylo možno nabídnout investorovi několik variant hmotového řešení. V dalších fázích vývoje studie byly všechny změny vizuálně rychle patrné a investorovi se v projektu snadněji orientovalo. Autoři jsou zvyklí před konzultací s investorem exportovat rozpracovaný model do 3D ve formátu pdf a jednoduchých 2D výkresů. Toto usnadňuje průběh jednotlivých jednání, neboť investor je s projektem dopředu seznámen a dobře se v něm orientuje. Studie vila domů byla konzultována se specialisty, energetiky a stavebními fyziky. K tomu posloužily exporty a importy dwg. Výsledný výstup byl zpracován jako kombinace 3D a 2D. Model byl finálně detailně dopracován v programu Allplan, následné vizualizace pak byly vytvořeny v dalším softwaru.

  • Autoři: Irena Truhlářová
  • Spolupráce: Tereza Egertová
  • Země: Česká republika
  • Zodpovědný projektant: Irena Truhlářová
  • Město: Praha - Bílá Hora
  • Datum projektu: 2014
  • Zastavěná plocha: 1 169.00m2

Mohlo by vás zajímat

Generální partner
Hlavní partneři