
S neokázalou rázností. Mladí švýcarští architekti vnáší nový impuls do konzervativního prostředí
Kontext, materiál, řemeslná poctivost a celková srozumitelnost. To jsou hlavní principy, na nichž svou filozofii postavilo mladé švýcarské studio Marazzi Reinhardt. Že nejde jen o prázdná slova, dokazuje řada jejich realizací – včetně pokorně působivé budovy dětského stacionáře v prostředí historických vil.
Tereza Hůrská , 3. 8. 2021
NA DOMÁCÍ PŮDĚ
Reprezentativní vzorek tvorby Marazzi Reinhardt představuje projekt s názvem Sprössling (německy výhonek i potomek), který architekti navrhli pro domácí Winterhur – stotisícové zahradní město ležící severovýchodně od Curychu. Ač původně spíše průmyslový, představuje dnes Winterhur kulturní středisko bohaté na různorodé instituce, které poskytují dostatek prostoru pro rozvoj a prezentaci nejen místní kulturní scény. Muzea, divadlo nebo třeba koncertní síň převážně z 19. či první poloviny 20. století se pak nacházejí přímo v centru města, kde kotví v zeleném moři parků a zahrad. A právě do jejich společnosti umístili architekti zmiňovaný, nenápadně velkorysý objekt denního stacionáře pro (nejen) postižené děti, jehož východní křídlo slouží zároveň jako výstavní prostor a rozšíření sousední umělecké instituce Villa Sträuli.

Spojení těchto dvou, na první pohled neslučitelných, funkcí určilo zaměření investorů. Objekt totiž vzešel ze soutěže, již společně vyhlásila dvojice místních nadací – Sulzberg Foundation, zaměřující se na podporu kultury a Nadace Buchmann – Kullbrunner, která se věnuje osobám s postižením. V rámci soutěže pak tyto dva subjekty daly dohromady kromě peněz taky sousední pozemky svých sídel. Novostavbu tak Marazzi Reinhardt navrhovali do přímého sousedství historizujících vil vyzařujících noblesu a klid, s nimiž dominují svým zahradám.

Větší než vypadá
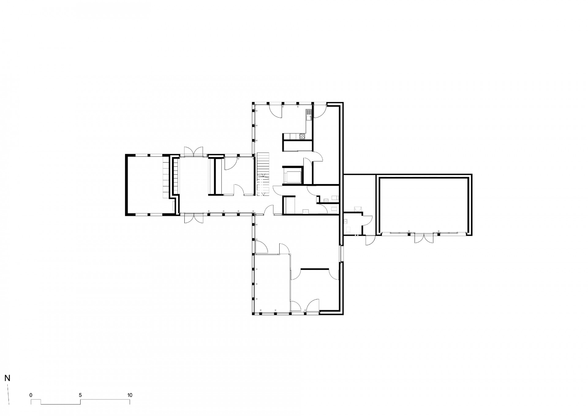
Zachování klidné atmosféry, kterou v této části Winterhuru historické objekty a zejména množství zeleně nastolují, bylo jedním ze základních východisek ateliéru. Architekti proto navrhli jednoduchý objekt, který svým prostorovým a materiálovým řešením charakter prostředí nijak nenarušuje. Se svým okolím stacionář komunikuje především díky půdorysnému tvaru kříže, který mu dovoluje areál mezi vilami členit na intimnější dvorky s možností různorodého využití. Křížový půdorys pak také generuje řadu zajímavých průhledů na kompozici domu – ze žádného místa však nespatříte celou hmotu budovy. Novostavba se tak vždy jeví menší, než ve skutečnosti je, což opět přispívá k její harmonické koexistenci s okolím.

Z provozního hlediska je dům ve svém přízemí rozčleněn na tři části, mezi nimiž díky půdorysnému tvaru nedochází k nežádoucímu křížení. Severojižní dvoupodlažní hmota je věnována dětskému stacionáři, boční přízemní křídla pak plní funkci multifunkčních prostorů. Díky množství francouzských oken se všechny části domu otevírají svému okolí a interiér plynule přechází v exteriér. Velká okna navíc zajišťují příjemné prosvětlení prostorů, které tak působí vzdušně a čistě.

Švýcarská osobitost
Minimalisticky čistou formu objektu zajišťuje zejména volba materiálů. Jako snad ve všech svých předcházejících projektech, i zde Marazzi Reinhardt hojně použili beton, který ať už v podobě tvárnic či in-situ provedeného věnce zkombinovali se světlým jedlovým dřevem. V exteriéru se pak dřevo uplatňuje zejména na fasádě druhého podlaží vyšší hmoty stacionáře, které architekti obalili pravidelným rastrem subtilních vertikálních lamel. Ač se od sebe podlaží materiálově liší, udržuje si stavba rytmus a působí jednotně.

Beton i dřevo, které udávají atmosféru uvnitř i zvnějška domu, ponechali architekti v jejich přiznané formě, takže časem získají specifickou patinu. Stejně jako materiály nezakrývají architekti ani různé (a pro někoho snad trochu neelegantně řešené) detaily, ať už se jde o nejednotnou výšku betonového věnce, parapetu, atiky nebo o odhalené rozvody vytápění. Naopak je staví na odiv, tvoří z nich přednosti, akcenty, které stavbu ozvláštňují a zároveň podporují její nenucenost a pravdivost.
Pohledový beton, typický pro tvorbu Marazzi Reinhardt nebo dřevěné lamely byste na sousedních neohistorických vilách hledali jen stěží – i přesto ale do jejich prostředí stacionář zcela přirozeně zapadá. Kombinací jednoduchých materiálů, horizontálně pojaté hmoty, pravidelného rytmu jednotlivých prvků a celkové pokory, která ze stavby dýchá, se architektům povedlo vytvořit objekt, který je vůči svému okolí maximálně empatický, zároveň však elegantní a působivý. Suma sumárum, další doklad úrovně švýcarské architektury s osobitým rukopisem.


Tento článek vznikl za podpory společnosti Českomoravský beton v rámci popularizace tématu "Beton v architektuře".
Českomoravský beton, a. s., je holdingovou společností, která prostřednictvím vlastních betonáren a dceřiných společností dodává transportbeton v široké škále pevnostních tříd a druhů na území České a Slovenské republiky. Skupina, jejíž vznik spadá do počátku 90. let minulého století, v současné době provozuje sedmdesát nově postavených nebo zrekonstruovaných betonáren, které mají zavedený systém řízení jakosti ČSN EN ISO 9001 a splňují nejpřísnější ekologická kritéria. Celá skupina – holdingová společnost a její dceřiné společnosti – vystupují pod jednou společnou obchodní značkou Českomoravský beton.
- Země: Švýcarsko
- Město: Winterhur
- Realizace: 2020
- Užitná plocha: 570.00m2