Pokorná majestátnost. Prohlídka nové budovy největšího muzea umění ve Švýcarsku podle návrhu Davida Chipperfielda
Mladá filmařská skupina 9sekunden zachytila první okamžiky po otevření nové majestátní budovy Kunsthaus Zürich. Krátkometrážní film se soustředí na atmosféru architektury podle návrhu Davida Chipperfielda, provázání stavby s okolním městem a pohyb návštěvníků.
Kunsthaus Zürich je dnes největším muzeem umění ve Švýcarsku. Vděčí za to berlínské pobočce architektonické kanceláře pod vedením věhlasného britského architekta Davida Chipperfielda, která pro tuto instituci loni dokončila novou budovu. Nachází se naproti historickému sídlu Kunsthaus Zürich, jehož podobou se architekti částečně inspirovali.
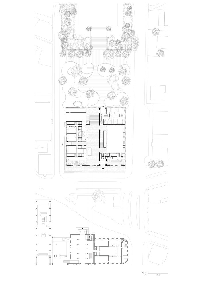
Novostavba, jejíž návrh vznikl na základě architektonické soutěže roku 2008, vyrostla v dopravně vytížené části Curychu. Na rozlehlou parcelu usedla svou přísně kubickou hmotou, která velmi dobře reaguje na urbanistické podmínky místa. Architekti totiž kromě budovy samotné navrhli hned dvě nová veřejná prostranství, která lokalitu zpříjemňují – malé náměstí na jižní straně a uměleckou zahradu na severu, která slouží jako poklidná oáza pro pobyt obyvatel i studentů sousední kantonální školy.
Více k tématu
Jak krátký film ukazuje, fasáda obložená lokálně těženým vápencem po vzoru historických budov v okolí vytváří nenucenou hru světla a stínů díky úzkým lamelám řazeným v pravidelném rytmu. Uvnitř na návštěvníky čekají strohé prostory z pohledového betonu, které jsou bohatě osvětlené sluncem prostřednictvím úzkých vertikálních oknen procházejících od podlahy ke stropu.
Prostorový koncept nového muzea umění je pojat jako sestava uzavřených prostorů, ve kterých najdeme jednotlivé expozice. „Tato myšlenka se projevuje v různých provedeních místností, ať už jde o jejich velikost, orientaci, materiály nebo osvětlení, což propůjčuje každé z nich individuální charakter a vytváří rozmanitý sled prostorů,“ vysvětlují architekti.

Veškeré veřejné provozy, jako je kavárna, posluchárna či muzejní obchod, jsou umístěny kolem velkorysé centrální vstupní haly v přízemí, která se táhne přes celou délku budovy. Tato hala, do které může vstoupit kdokoli bez nutnosti zakoupení vstupenky, zároveň slouží jako spojnice, kudy si lidé mohou zkrátit cestu mezi zmiňovanými novými veřejnými prostory. Podzemní chodba pak spojuje novostavbu se sídlem Kunsthaus Zürich.
Pokorně působivá budova z dílny David Chipperfield Architects hezky zapadá do mozaiky dalších muzejních budov z různých období, které demonstrují architektonický vývoj posledních sta let.

- autor: EARCH.TV *
- publikováno: * 23. 11. 2022