Architektura / občanské stavby

Studijní a vědecká knihovna v Hradci Králové

Studijní a vědecká knihovna v Hradci Králové od pražského ateliéru Projektil architekti.

EARCH.CZ , 17. 6. 2009

Urbanistická koncepce

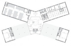
Geometrie objektu knihovnicko-informačního centra (půdorys tvaru písmene X) přeškrtnutím pozemku toto místo neruší, ale zviditelňuje. Něco začíná. Budova je na pozemku posunutím k nábřeží řeky Orlice blíže k historickému centru – komunikuje. Na jižní straně je pozemek využit k parkování, které je zahrnuto do parkových úprav nezastavěné plochy pozemku (otevřené a přikryté zelení – mizí. Přechod parkoviště v korunách stromů, nechceme k takové instituci, jako je SVK, navrhovat povrchové stání typické pro příměstská obchodní centra).

Foto: eArch
Budova SVK je ve svém parteru v místě vstupů do knihovny průchozí. Umožňuje tak volné úhlopříčné propojení Hradecké ulice s nábřežím řeky Orlice nebo s univerzitním kampusem. Otevřený parter se účastní na životě okolí, podporuje ho a ovlivňuje. Budova má pevný tvar a zaujímá jasný postoj. Je to instituce. Dává okolí smysl a orientační bod. Otevírá se uživatelům ze tří stran. Nabízí různorodé pobytové plochy v parteru (lavička, tráva, strom, průchod, knihovna). Parter mohou oživit doplňkové provozy v „nohách“ jihovýchodního a severovýchodního křídla (kavárna, galerie – výstavní síň, pronajímatelné prostory u průchodů budovou). Budova SVK svým konvexním tvarem směrem ke strojní průmyslové škole zvětšuje odstup od této kulturní památky a dává možnost novým pohledům a vztahům dvou sousedních budov. Nepřevyšuje a nedominuje. Architektonické řešení Dům SVK je objekt půdorysného tvaru písmene X. Plášť budovy – litý beton – svým charakterem podtrhuje dynamičnost a čitelnost tvaru (odlitá litera). Plášť je perforován kulatými okny, zvolenými pro svou schopnost vytvořit intimní a soustředěné vnitřní prostředí. Okna jsou umístěna ve dvou parapetních výškách. V rámci řádového rastru jsou nepravidelně rozmístěná podle vnitřních prostor (kód). Velká prosklení na koncích ramene u Hradecké ulice zakončují a prosvětlují hlavní knihovnické prostory. Studovny v posledním patře jsou prosvětleny kruhovými světlíky. Okna na rameni se sklady jsou co do kvantity minimalizována. Objekt budovy je umístěn na dlážděné a mlatové ploše, která navazuje na okolní komunikace (chodníky, vozovky) a na zelenou plochu střech garáží. Garáž (parkování pro veřejnost) je umístěna v otevřeném soklu jižně před budovou SVK a zastřešena pouze rastrem sítí porostlých zelení. Garáží prorůstá strom – stromořadí. Tyto stromy jsou vysazeny také v bezprostředním okolí budovy SVK. Barevná propojení stromů a fasády budovy tvoří výtvarný celek. Budova SVK je pevným a výrazným objektem respektujícím to kvalitní v okolí, se zážitkem průhledu a průchodu a s klidným vnitřním prostředím.   Provozní a dispoziční řešení

(popis orientován od hlavního vstupu) Budova je na západní straně obsluhována zásobovací rampou do suterénu, kde je manipulační prostor. V suterénu navazují na všechna nadzemní patra hlavní služební vertikální komunikace s výtahem a nákladní (evakuační) výtah s baterií čtyř knihovnických výtahů. Ve služebním – administrativním– severozápadním křídle jsou v rámci sociálního jádra navrženy dva knihovnické výtahy a požární schodiště uprostřed dispozice, které je používáno i pro krátké propojení kancelářských pater. Tyto vertikální komunikace procházejí celou budovou ve služební části. Knihařská dílna v suterénu má samostatný přístup pro zákazníky po schodišti v rohu jihozápadního křídla. Další provozy jsou technologické a skladovací s návazností údržbářské dílny. V suterénu záměrně neumisťujeme sklady a depozitáře z bezpečnostních důvodů (hladina spodní vody, stoletá voda = technicky náročné řešení).

Foto: eArch

Foto: eArch
Foto: eArch
Foto: eArch

 

V druhé části suterénu – druhém rameni – je parkoviště pro návštěvníky a zaměstnance. Zaměstnanci mohou projít suterénem do služební části, návštěvníci vystoupí po schodišti do zádveří knihovny.

  V přízemí je budova proříznuta k Hradecké ulici. Nabízí tak možnost průchodu a rozptýlení dnes velké frekvence pěších a cyklistů (kryté stání kol). V odříznutých částech budovy – „nohách“ – se nabízí zcela oddělené prostory k pronájmu (literární kavárna a výstavní sál).
Foto: eArch
Foto: eArch
Foto: eArch
Foto: eArch
Foto: eArch
Foto: eArch
  Z průchodů vedou dva vstupy do vestibulu SVK. Vestibul je centrálním prostorem přes dvě patra. Je prosvětlen kruhovým atriem s hlavním schodištěm, které prochází celou budovou až ke střešnímu světlíku. Patro vestibulu s internetovým klubem je vizuálně propojeno dalšími kruhovými otvory. Ve vestibulu jsou dva výtahy. V zadní části vestibulu (za schodištěm) je vstupní obslužný pult (zřízení průkazky, vracení knih, prodloužení výpůjček, základní informační služba), terminály a volná místa k pobývání a setkávání. Od hlavního pultu vpravo je v průhledu vidět centrální šatna. U centrální šatny je zádveří služebního vchodu se služební vrátnicí (kontrolním bodem), přímo napojené na vertikální komunikaci služební části. Tento přístup je možné použít pro semináře v konferenčním sálu, které mohou být nezávislé na provozu knihovny. Jihozápadní křídlo nalevo od pultu je ve všech patrech navrženo jako sklad knih. V 1. NP je depozitář s kompaktními regály a v části 2. NP klimatizovaný sklad. Všechny sklady jsou přímo napojeny na nákladní a knihovnické výtahy.   V 2. NP severozápadního křídla, které je propojeno s ostatními služebními patry hlavním a únikovým schodištěm, je umístěno vedení SVK (ředitel, náměstci, vedoucí provozu, public relations, regionální funkce).   Ve 3. NP jsou z prostoru vestibulu s obslužným pultem a se zázemím přístupné hlavní prostory volného výběru v severovýchodním a jihovýchodním křídle. V jihovýchodním křídle je vložena střední galerie 4. NP. Prostor je na obou koncích otevřen přes všechna tři patra knihovny s oknem na celou výšku. Na sever na staré město a na jih, je odcloněn slunečními žaluziemi, směrem na Nový Hradec. Intimní část uvnitř dispozice je přisvětlena kruhovými okny o výšce dvou parapetů. Nižší (600 mm), kde je umístěn stolek a čtenář si může s vybranou knihou přisednout k oknu, a vyšší (1 500 mm) pro osvětlení vnitřní dispozice. Ve služební části je v severozápadním křídle ke starému městu umístěn administrativní provoz knihovny, ve 3. NP se nachází odbor služeb čtenářů, ve 4. NP pak doplňování a zpracování fondů.  
Foto: eArch
Foto: eArch
 
Foto: eArch
  Stoupáme světelným tubusem do 5. NP studoven. Zde se v severozápadní části nachází studovna přes dvě patra a v jihovýchodním křídle jsou patrové studovny, přisvětlené kruhovými světlíky s rozptýleným světlem. Ochozy – galerie jsou nasvětleny kruhovými okny a koncový prostor přes všechna patra knihovny velkým štítovým oknem. V tomto patře v zadním severozápadním křídle k městu je umístěn konferenční sál a učebny. Lze je obsluhovat jak ze služební, tak z veřejné části SVK. Strop konferenčního sálu je vyzdvižen nad střechu budovy s horním osvětlením.  

Interiér Vnitřní prostory odlité z šedého betonu chápeme jako neutrální pozadí k výraznému barevnému řešení interiéru. Barva jako orientace (výběr), umělecký zážitek (obraz – reprezentace), nálada (odpočinkové prostory, studovny). Nedílnou součástí vnitřních prostor budovy je orientační systém a doplnění interiéru výtvarnými díly.

   

Foto: eArch
Foto: eArch
Foto: eArch
Foto: eArch
STUDIJNÍ A VĚDECKÁ KNIHOVNA HRADECKÁ 2, HRADEC KRÁLOVÉ KLIENT Studijní a vědecká knihovna v Hradci Králové, Ministerstvo kultury ČR AUTOŘI Projektil architekti, s.r.o. / Mgr. akad. arch. Roman Brychta, Ing. arch. Adam Halíř, Ing. Ondřej Hofmeister, Ing. arch. Petr Lešek SPOLUPRÁCE Markéta Jurečková, Jan Kolář VIZUÁLNÍ STYL, INFOSYSTÉM Kultivar / Zuzana B. Horecká, Jana Honecová, Jean-Marie Delafontaine; Pixl-e / Ondřej Doležal, Pavlína Doležalová, Filip Mont VÝTVARNÉ DÍLO Martina Novotná GENERÁLNÍ PROJEKTANT PRO KIC – sdružení ateliérů Projektil Architekti, s.r.o.; Deltaplán, s.r.o. (Ing. Miloš Kosek, Ing. Petr Kniha) ZASTAVĚNÁ PLOCHA 2920 m2 OBESTAVĚNÝ PROSTOR 57 303 m3 ČISTÁ UŽITKOVÁ PLOCHA KNIHOVNY 11 232,2 m2 KOMERČNÍ PLOCHA (KAVÁRNA) 285,6 m2 NÁKLADY 394,5 mil. Kč / 16,5 mil. eur REALIZACE 2008 Psáno pro časopis Architekt 05 2009

NA OKRAJ / JULIUS MACHÁČEK | REKONSTRUKCE HISTORICKÝCH STAVEB / TEXT TOMÁŠ ŠANTAVÝ, HANA LUŠTICKÁ | STUDIJNÍ A VĚDECKÁ KNIHOVNA, HRADEC KRÁLOVÉ / PROJEKTIL ARCHITEKTI / PŘIPRAVILI MICHAL JANATA A MARTIN VERNER / KŘÍŽIT A KROUŽIT, RECENZE / MICHAL JANATA | NOVODOBÝ URBANISTICKÝ ROZVOJ HRADCE KRÁLOVÉ, URBANISMUS / KAREL KUČA | VELKÉ NÁMĚSTÍ, HRADEC KRÁLOVÉ / ROMAN KOUCKÝ, ŠÁRKA MALÁ | HOLEŠOVICKÉ MLÝNY – CLASSIC 7, PRAHA 7 / DAVID R. CHISHOLM, VÍT A. MÁSLO / RECENZE / ZDENĚK LUKEŠ | ADMINISTRATIVNĚ- -PROVOZNÍ BUDOVA MLÉKÁRNY, HLINSKO / MILAN KOŠAŘ | WINES HOME, PŘESTAVBA TOVÁRNY VE DVOŘE, PRAHA 1 / IVANA DOMBKOVÁ, ROSTISLAV ČERNÍK | VÝTAHY JOSIPA PLEČNIKA A OTTO ROTHMAYERA, PRAŽSKÝ HRAD / DAVID PRUDÍK | S KARLEM KUČOU, POZNAT A ZACHOVAT / PŘIPRAVIL MICHAL JANATA | SKLENĚNÝ DŮM / JANA HLADÍKOVÁ / ATELIER MILOŠE FLORIÁNA / ATELIÉR FLOW / FA ČVUT | DŮM NA DOMĚ / ATELIÉR JANA ŠÉPKY A PETRA HÁJKA / FA ČVUT V PRAZE | ALEŠ LAMR – OBRAZ V ARCHITEKTUŘE / TEXT JAN KŘÍŽ | STANOVISKO ČKA | MIROSLAV BAŠE / POCTA ČKA ZA ROK 2008 | MĚSTO – SUBURBIE –VENKOV / MIROSLAV BAŠE V GJF | STAVBA PLANETÁRIA V PLZNI / JAN SOUKUP, JITKA RŮŽIČKOVÁ / ATELIER SOUKUP | ROCKWOOL – ČESKÝ NÍZKOENERGETICKÝ DŮM | KDE SE PIVO (NE)VAŘÍ, TAM… / TEXT MICHAL JANATA | PORTUGALSKO ZA HRANICEMI PORTUGALSKA / GJF | HOROR VACUI / URBANISTICKÉ IMPLOZE V HOLANDSKU | PSYCHOLOGICKÉ ASPEKTY PŘÍPRAVY NAVRHOVÁNÍ STAVEB / KAREL SMEJKAL | PRO VAŠI KNIHOVNU

Nabídky práce

Mohlo by vás zajímat

Generální partner
Hlavní partneři