
Ulice, která povstala z popela
Projekt ateliéru Assemble v Liverpoolu je na hranici mezi architekturou, ekonomickou a sociální intervencí a komunitním plánováním. Slovo a ruka architekta ale dokázaly zchudlé, rozpadající se a téměř opuštěné oblasti začít navracet život. Ve spojení s místní komunitou a s pomocí minimálních, ale citlivých prostředků se architektům podařilo najít pro pár zanedbaných ulic novou perspektivu. Tvůrci projektu nám zároveň připomínají, jakou moc má architektura nad našimi životy. Překvapivý, ale zasloužený finalista ceny Miese van der Rohe 2017.
ASSEMBLE , 29. 3. 2017
Ateliér Assemble na celém projektu spolupracoval se Steinbeck Studios a s komunitním pozemkovým spolkem Granby Four Streets (komunitní pozemkové spolky neboli CLT jsou organizace zajišťující rozvoj a správu dostupného bydlení, zahrad, občanských i komerčních služeb atd. a podporující ekonomickou diverzitu, dostupnost bydlení a přístup ke službám ve svém okolí). Cílem bylo představit novou vizi pro oblast ulice Granby v Liverpoolu a přetavit tvrdou práci místní komunity do renovace tamějšího bytového fondu a veřejných prostor, ale i poskytnout nové pracovní příležitosti. Za tím účelem vznikly Dílna v Granby a Zimní zahrada.
Granby Street bývala rušnou hlavní třídou v samém jádru jedné z etnicky nejvíce různorodých liverpoolských komunit. Ze všech ulic s původní viktoriánskou řadovou zástavbou však dekády „regeneračních“ programů přežily jen čtyři ulice. Kdysi prosperující komunita se tak náhle octla odtržená od okolního světa. Zůstaly po ní pouze „čtyři ulice v Granby Street“, jak jsme projekt nazvali, které jsou navíc jen řídce osídlené a složené z na sebe namačkaných domků. Účelem renovačního projektu bylo opravit deset ze stávajících domů a dát je k užívání místním rodinám. Nadto je zde zřízena Dílna v Granby, společnost zaměstnávající místní obyvatele a specializující se na výrobu předmětů, jež mohou být užity místními domácnostmi, ale i dále prodávány. Dílna se nachází přímo v Granby.
Třetím projektem je Zimní zahrada, veřejně přístupný krytý skleník nacházející se v torzech dvou opuštěných budov, který má do budoucna sloužit jako prostor pro setkávání. Při renovaci byl brán zřetel na užité materiály. Projekt vzhledem k nedostávajícím se zdrojům zužitkovává vše, co ulice nabízí, a zároveň má ambici poskytnout kvalitně provedené a trvanlivé bydlení. Celý návrh bral v potaz bohatou rozmanitost svých uživatelů, jejich časové i investiční schopnosti, jež celý projekt umožnily zrealizovat.
Jak bylo řečeno, deset ze čtrnácti ulic s viktoriánskými řadovkami bylo strženo. Se zbývající komunitou jsme zvolili strategii drobných kroků a připravili jsme řadu dílčích úkolů, jež se dají dobře provést i v malém měřítku. Strategie spočívá v opravách a adaptacích, v individuální práci s každým z renovovaných domů. Množství prvků bylo například třeba ručně zhotovit: to se týkalo kachliček do koupelen, dveřních klik nebo krbů – všechny tyto součástky jsou nyní živoucím důkazem času, práce a péče, kterou do obnovy domů komunita věnovala. K jejich výrobě posloužila dílna, kterou jsme na jednom z dvorků otevřeli; při renovaci jsme přistoupili i ke sběru a recyklaci poškozených cihel, štěrku a suti. Opuštěné domy a ulice se náhle proměnily v místa neutuchající produkce.
Sami jsme se usídlili v domě č.p. 48, jemuž se přezdívalo „projekční dům“. Ubytovali jsme se v prvním patře a dílnu zřídili na dvorku, komunitní schůze se konaly v obýváku a v kuchyni se otevřela malá kavárnička, provozovaná komunitou a pro komunitu.
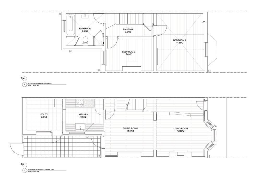
Domy na Cairns Street byly postavené okolo roku 1900. Jak bylo v té době typické, mají nepórovité a neizolované cihlové zdi s dřevěnými trámy, původně zakrytými břidlicovými taškami. Každý z domů má výklenek s pískovcovým ostěním a přístřeškem. Materiálově je definují dva základní prvky: nosné zdi jsou cihlové, střechy, podlahy a ostatní zdivo je dřevěné.
Zatímco vkus 19. století by tyto materiály nevystavoval, nyní jsme je ponechali obnažené: konstrukční kostra nyní odhaluje něco z podmanivé historie celé oblasti. Například odstraněním podlahy v prvním patře se náhle odhalil elegantní oblouk, který vzniká ve spoji komínů. Celkový renovační přístup spočíval jen v minimálních zásazích, třeba i jen v nabízení nových pohledů na starší prvky. Nový vklad spočívá v užití robustních a zároveň dostupných materiálů, jež jsou sice pro domácí užití neobvyklé, ale vybavení každého z domů trochou ručně zhotovených součástí ve výsledku oslavuje jedinečný charakter celé oblasti.
- Ateliér: ASSEMBLE
- Země: Velká Británie
- Město: Liverpool
- Ulice, číslo: Granby Street, Cairns Street
- Realizace: 2016
- Užitná plocha: 650.00m2
- Plocha pozemku: 650.00m2
- Poznámka: foto © ASSEMBLE a Lewis Jones