
Multifunkční „kulturák“ pro menší město, na kterém se nešetřilo
Folkestone je známý především tím, že v něm ústí železniční Eurotunel. Jinak se jedná o přímořské město velikosti Jihlavy, kde jsou lidé živi i něčím jiným než obřím dopravním terminálem. Zanedbávané centrum podstupuje regenerační proces, který je pozoruhodný právě tím, že se do centra obce snaží přivést kulturu a umění. Projekt razí charitativní trust The Creative Foundation a jeho součástí je i Quarterhouse, víceúčelové centrum umění a obchodu od Alison Brooks Architects.
Josef Řídký , 2. 5. 2017
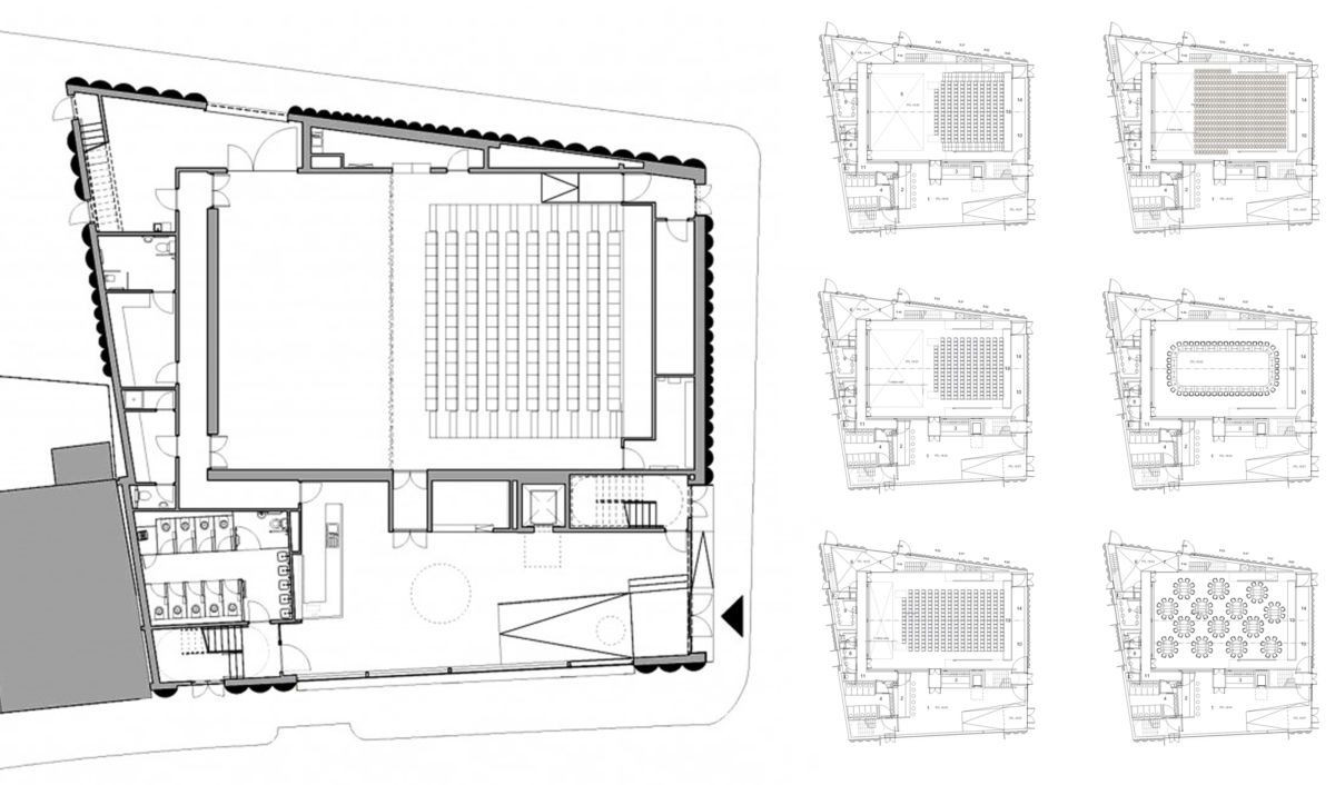
V budově se nachází multifunkční sál pro hudební produkci, tančírny, divadelní představení, promítání filmů a konference s kapacitou 220 míst k sezení a 500 míst k stání. V přízemním patře je foyer a výstavní prostory, v prvním patře café s barem a v nejvyšším patře centrum pro podnikání a obchod. (S tímto multifunkčním pojetím „kulturního domu“ a víceúčelovým rozdělením sálů se mimochodem setkáváme i v České republice, jedná se zjevně o vhodnou strategii pro ty obce, které si nemohou dovolit samostatný palác pro každou zmíněnou funkci. Leč omezené rozpočty našich municipalit nedovolují tak velkorysé architektonické provedení jako ve Velké Británii.)
Quarterhouse je první vlaštovkou, „vlajkonošem“ iniciujícím zrod nového kulturního střediska ve Folkerstone a zároveň organicky zceluje a ukončuje blok meziválečných domů, formujících stáčející se Tontine Street. Nejvýraznějším rys budovy představuje obložení vroubkovaným pletivem, které je v noci zevnitř osvětlováno. Tento motiv přitom odkazuje na blízkost moře hned dvojím způsobem: jednak na přímořskou ikonografii Folkestonu – na frontony se vzorem mušlí, na městské přístavy a pláže –, jednak na křehkou a průsvitnou texturu mušlí, které zde moře každý den vyplaví.
Opláštění bylo vyvinuto tak, aby budovu chránilo. Přestože je fasáda plochá, síť vytváří modulovaným rozmístěním rýh a vroubkování iluzi zakřivení – podobá se tak divadelní oponě a zároveň v závislosti na denní době a osvětlení proměňuje vizualitu budovy. Dynamické vzezření má evokovat pulzující život a radost z kreativity, jež budovu naplňují.
Budova také získala hodnocení „velmi dobré“ podle certifikátu šetrnosti a udržitelnosti BREEAM.
- Autoři: Alison Brooks
- Ateliér: Alison Brooks Architects
- Země: Velká Británie
- Město: Folkestone
- Ulice, číslo: Tontine Street
- Suma: 112 000 000.00
- Měna: CZK
- Datum projektu: 2006
- Realizace: 2009
- Užitná plocha: 1 550.00m2
- Poznámka: foto © Dennis Gilbert