Architektura
/
rodinné domy
VIMOB – Dům levitující nad jakýmkoliv terénem
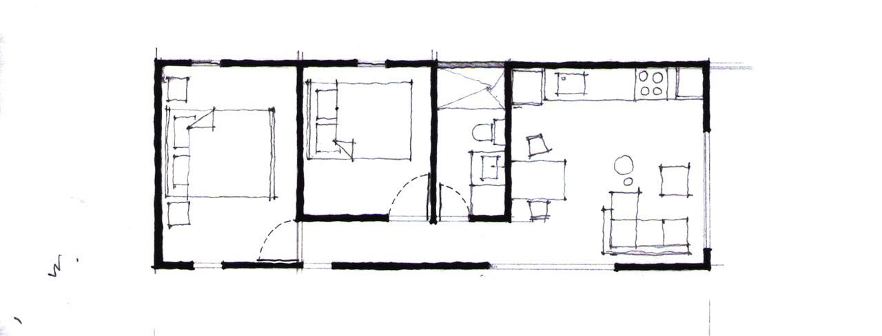
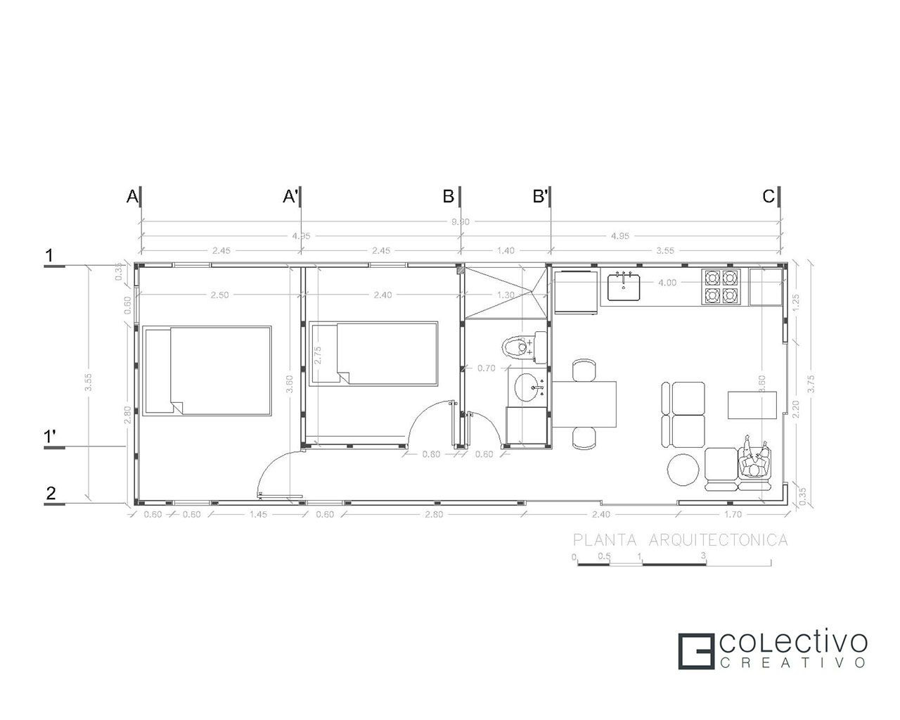
Jednoduchý modulární dům můžete umístit kdekoliv na světe a užívat si luxus nevšedních výhledů bez dlouhé a obtížné realizace na místě. Autoři si kladli za cíl navrhnout objekt, který může vzniknout i v nepřístupných oblastech aniž by utrpěla kvalita provedení či pohodlí uživatelů.
Colectivo Creativo Arquitectos , 18. 3. 2016
Více k tématu
- Ateliér: Colectivo Creativo Arquitectos, Colectivo Creativo Arquitectos
- Země: Kolumbie
- Realizace: 2015
- Město: Corregimiento de Matapalo - Palmira
- PSČ: Valle del Cauca
- Realizace: 2015
- Užitná plocha: 37.00m2
- Poznámka: Foto © Mauricio Carvajal, Felipe Orvi