Dům ukrytý ve vinohradu, neruší krajinu, nabízí soukromí i výhledy na Pálavu
Na svahu kopce Výhon nad Židlochovicemi vznikla vila, která reaguje na charakter vinohradnické krajiny i mimořádné výhledy na panorama Pálavy. Dům pracuje s promyšlenou dispozicí, propojením interiéru s exteriérem a střídmou paletou přírodních materiálů.
Kateřina Hrachová , 27. 3. 2026
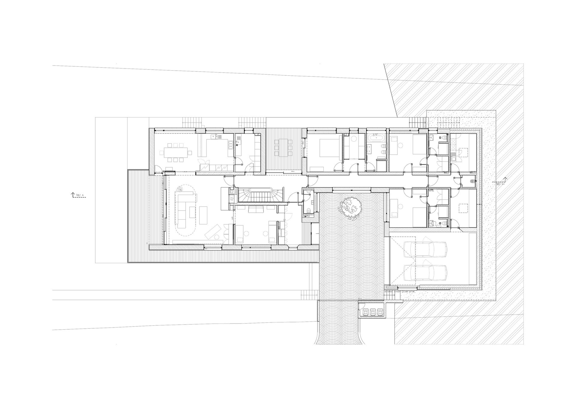
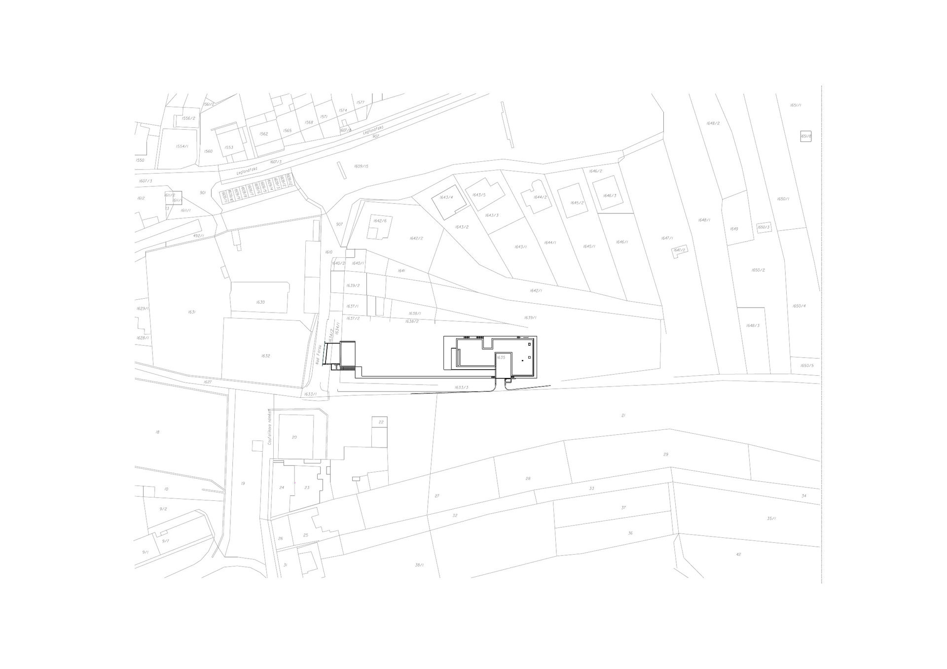
Pozemek leží ve svahu, který se nad historickým jádrem Židlochovic postupně proměňuje v pás vinohradů. V krajině charakteristické rytmem vinic a otevřenými horizonty architekti z ateliéru RAW hledali způsob, jak stavbu zasadit tak, aby se stala přirozenou součástí terénu. Výsledkem je podélná, relativně subtilní hmota zapuštěná do svahu. Dům je rozvržen do dvou výškových úrovní a jeho střecha sleduje sklon vinohradu, takže stavba nepůsobí jako dominanta, ale spíše jako nenápadný doplněk krajiny.
K domu lze přicházet dvěma způsoby. Z nižší části parcely, v úrovni okolní zástavby, je umístěna garáž a vstupní bod, odkud vede vzhůru kaskádová cesta. Druhou možnost nabízí komunikace podél jižního okraje pozemku, která umožňuje přímý příjezd k domu. Samotný vstup se nachází v horní úrovni dispozice.

Za vstupními dveřmi se otevírá hala navazující na centrální schodišťový prostor. Ten je prosvětlen velkým oknem orientovaným do malého vnitřního atria, které přivádí denní světlo hluboko do dispozice. Už při vstupu je patrné základní prostorové uspořádání domu, na jedné straně obytná část, na druhé klidová zóna s ložnicemi.
Obývací prostor tvoří srdce domu. Velkorysé prosklené otvory rámují výhled na krajinu a propojují interiér s okolními vinohrady. Obytný pokoj je plynule propojen s jídelnou a kuchyní a může se otevřít i směrem k pracovně. Na tuto část navazuje lodžie, která funguje jako přirozené rozšíření obytného prostoru tedy místo, odkud lze pozorovat proměny krajiny během dne i jednotlivých ročních období.

Soukromá část domu je organizována podél podélné chodby. Dětské pokoje orientované k jihu využívají slunce a výhled do krajiny, zatímco ložnice rodičů směřuje do klidnějšího atria.
Spodní podlaží je věnováno odpočinku a relaxaci. Bazén a víceúčelová společenská místnost se otevírají do velkorysého krytého venkovního prostoru – saly terreny. Ta funguje jako druhá obytná terasa a zároveň jako přechod mezi domem a kaskádově řešenou zahradou. V této úrovni je umístěn také pokoj pro hosty a technické zázemí domu.
Více k tématu
Konstrukčně je stavba řešena jako kombinace zděných stěn a sloupových nosných prvků. Zdivo z keramických cihel doplňují betonové a ocelové sloupy. V exteriéru se střídá světlá omítka s pohledovým betonem, jehož struktura vznikla otiskem úzkého prkenného bednění. Kovové rámy oken a vstupních dveří jsou řešeny v tmavě šedém odstínu.

Interiér pracuje s omezenou paletou přírodních materiálů. Podlahy kombinují přírodní kaučuk, vápenec a dřevěné parkety, stěny mají většinou bílou omítku a vestavěný nábytek využívá přírodní dýhy nebo lakované povrchy. Materiálová střídmost nechává vyniknout prostorovým vztahům i tomu nejdůležitějšímu – výhledům do krajiny, která se stává nedílnou součástí každodenního života domu.
- Ateliér: Atelier RAW
- Autoři: Tomáš Rusín, Ivan Wahla
- Spolupráce: Libor Šupler, Kateřina Pacolová, Martin Klaška, Promed Brno spol.s.r.o
- Země: Česká republika
- Město: Židlochovice
- Fotograf: Filip Šlapal, Bořivoj Čapák
- Zastavěná plocha: 439,0 m²
- Obestavěný prostor: 2 530 m³
- Realizace: 2022
- Dodavatel: ORAK – stavební společnost s.r.o.
- Zahrada: Eva Wágnerová