Vila jako venkovský dům. Má verandu zvanou „gánok“ a dřevěné okenice
Ve vinařské vesnici Limbach vyrostl dům, kde je mnoho místností, garáž pro dvě auta a samostatné křídlo pro děti. Do okolí je ale zasazený velmi nenápadně.
Karolína Vránková , 27. 11. 2025
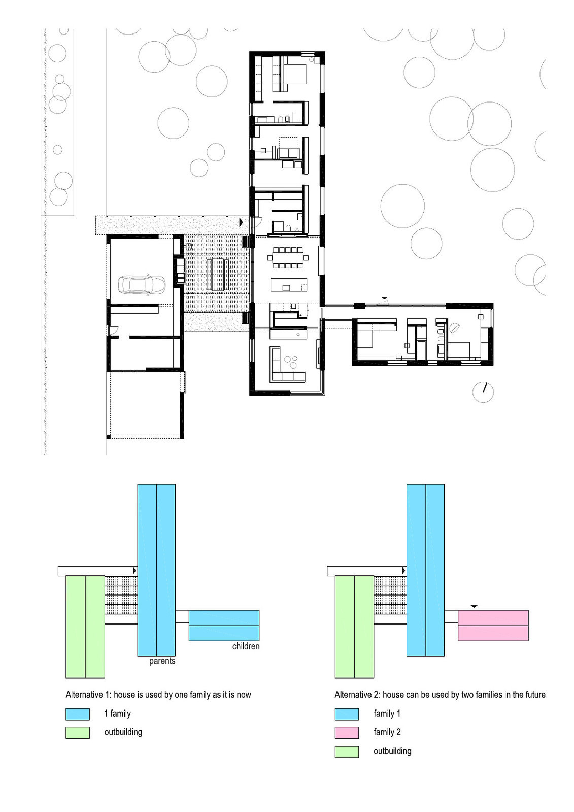
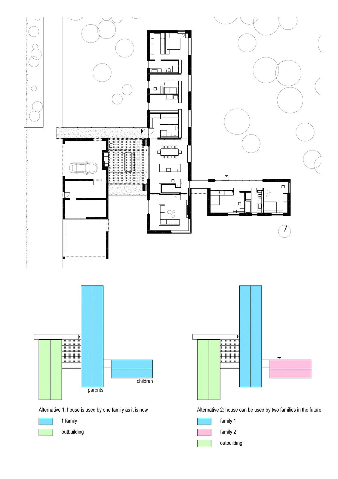
Limbach je vesnice na ideálním místě: dvacet kilometrů od Bratislavy, kolem vinice a příroda podhůří Malých Karpat. Rodina, která tu už delší dobu žila, se rozhodla si tu postavit nový komfortní dům, který by ale do vesnice zapadl. Je to stavba rozlehlá s užitnou plochou přes 300 m². Tvůrcům ze studia ARCHITEKTI mikulaj&mikulajová se ji povedlo rozdělit tak, aby se podobala okolním venkovským domům. Skládá se vlastně ze tří staveb: v první je garáž a dílna, ve druhé obývací pokoj s jídelnou a ložnice rodičů a třetí patří odrůstajícím dětem, které tam mají od rodičů dostatečný distanc.

„Koncept vychází z původní sídelní struktury – jádro vesnice tvoří dlouhé domy se sedlovými střechami, řazené vedle sebe na úzkých parcelách,“ popisují architekti. Výhodou tohoto „miniurbanismu“, jak půdorysné řešení nazývají, je vznik tří zahrad s různou atmosférou: „Jižní zahrada je orientovaná do vinice, východní zahrada má výhled na les a vstupuje sem ranní slunce, a pak je tu ještě ozeleněný vstupní dvůr,“ popisují architekti.
Kolem domu je zastřešení a pod ním terasa, která se dá používat po celý rok – v létě jako letní kuchyně, v zimě ji lze zavřít za pomoci skleněných posuvných stěn a používat jako zimní zahradu s kamny. Na terasu navazuje zastřešené podloubí, což trochu připomíná „gánok“, verandu typickou pro slovenské venkovské stavby.
Terasa je propojená s velkým obývacím pokojem a jídelnou - srdcem celého domu. Na ni navazuje noční část rodičů, orientována do tišší části pozemku, směrem k lesu. Krčkem se prochází do domu dětí – je tu společný vstup s knihovnou a pak samostatné pokoje. Všechny místnosti mají okna přesně nasměrovaná na nejlepší výhledy. Vůbec je interiér plný promyšlených detailů: působivé je třeba rohové velkoformátové okno, anebo parapet, na němž je možné posedět jako na lavici.
Až bude hnízdo prázdné…
U podobně rozlehlých nemovitostí je velkou otázkou, co s nimi bude, až děti odejdou z domova. Tady na to investoři a architekti mysleli: to, co je dnes „dětská část“ se může do budoucna stát samostatným bytem pro jedno z dětí, anebo i „vejminkem“ pro staré rodiče.

Stavebním materiálem je pálená cihla. V obytných prostorech je sedlová střecha otevřená, její konstrukci tvoří krov z ocelových nosníků. Ztužení stavby zajišťují betonové štíty, které zůstávají v interiéru přiznané. V ostatních částech domu je střecha řešena jako klasický hambalkový krov uložený na betonových stropních deskách. Součástí energetického konceptu je rekuperace, fotovoltaické panely na střechách a využití studny pro potřeby zahrady. Zdrojem tepla je plynový kotel doplněný kamny a krbem.
Co se týče materiálů, hledali architekti „přirozené řešení, které v tomto prostředí bude působit, jako by tu bylo odjakživa.“ Proto je použitá škrábaná hrubozrnná omítka, pálené tašky a dřevěné okenice. Objemy, tvar a materiály se zkrátka přizpůsobily kontextu a výsledná stavba je důkazem, že i rozlehlé a komfortní sídlo se dá vybudovat s respektem k místu.
- Ateliér: ARCHITEKTI mikulaj & mikulajova
- Autoři: Juraj Mikulaj, Andrea Ambrovičová Mikulajová, Jana Machalová
- Země: Slovensko
- Fotograf: Matěj Hakár
- Město: Limbach
- Plocha pozemku: 2157 m2
- Užitná plocha: 306,4 m2
- Zastavěná plocha: 432 m2
- Projekt: 2019 - 2021
- Realizace: 2021 - 2024