Architektura / občanské stavby

Centrum pro výzkum fyziky a pevných látek sídlí v nové budově zahalené do skleněného pláště

Studio Bogle Architects navrhlo novou budovu Fyzikálního ústavu Akademie věd České republiky na pražském Ládví
Studio Bogle Architects navrhlo novou budovu Fyzikálního ústavu Akademie věd České republiky na pražském Ládví

Bogle Architects navrhli novou budovu Fyzikálního ústavu Akademie věd České republiky. Nachází se v ní na 55 speciálních laboratoří, kanceláře i přednáškové a výukové místnosti. Stavba s trojkřídlým uspořádáním uzavřela vědecký areál na pražském Ládví.

EARCH.CZ , 19. 12. 2022 / Advertorial

Centrum SOLID 21

Fyzikální ústav Akademie věd České republiky už rok využívá laboratoře, kanceláře a přednáškové místnosti v nové budově na Praze 8. Ve víceúčelovém pavilonu, který vznikl podle návrhu architektonické kanceláře Bogle Architects, funguje centrum pro výzkum fyziky pevných látek SOLID 21.

Kancelář Bogle Architects má své pobočky kromě Prahy také v Londýně a v Hong Kongu. Konkrétně v České republice se Fyzikální ústav AV ČR stal jejím klientem už podruhé. V minulosti podle jejich návrhu vzniklo i výzkumné laserové centrum ELI Beamlines v Dolních Břežanech. V jeho blízkosti nyní s FZÚ AV ČR spolupracují na třetím projektu, kterým je Brain4Industry zaměřující se na digitální technologie

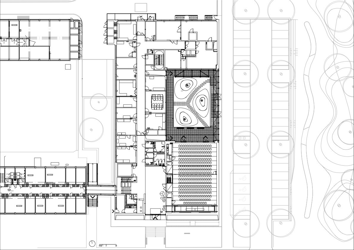
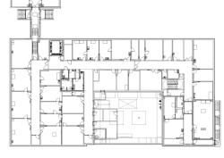
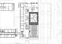
Nový pavilon FZÚ se nachází hned vedle stávající hlavní budovy ústavu v Praze Ládví. Stavba na půdoryse písmene U se k ní připojuje z její východní strany a vymezuje tak hranu celého vědeckého areálu. Fyzikální ústav totiž na Ládví nesídlí sám, v jeho blízkosti funguje mnoho dalších ústavů Akademie věd České republiky.

„Architektonický návrh budovy od studia Bogle Architects dokázal propojit náročné technologické potřeby výzkumného centra s požadavkem na nezbytnou komunikaci jednotlivých výzkumných týmů. Výsledný projekt se svým stylem blíží ke stavbám univerzitních kampusů obklopených zelení,“ říká Petra Köppl ze Skupiny PR a komunikace FZÚ.

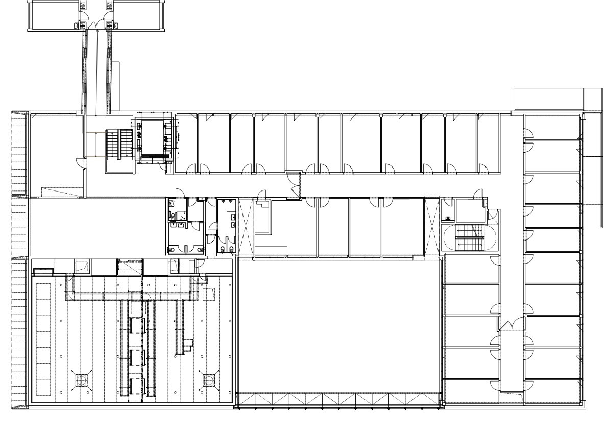
Foto: Víceúčelová budova má půdorys tvaru písmene U, obklopuje vnitřní dvůr plný zeleně

Laboratoře, kanceláře i výukové místnosti

Důvodem pro stavbu nové budovy byl především nedostatek laboratoří a potřebného zázemí ve stávajících budovách FZÚ. Nový pavilon od Bogle Architects zůstává se sousední budovou hlavního pracoviště v přímém kontaktu, stavby vzájemně propojuje prosklený krček.

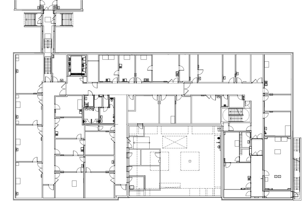
Pavilon FZÚ má dohromady tři podlaží. První podzemní a první nadzemní podlaží je věnováno především laboratornímu provozu, nachází se zde ale i přednáškový sál pro 300 posluchačů nebo seminární místnost. Budova obsahuje 55 laboratoří, které slouží pro výzkum nanoelektroniky, fotoniky, magnetismu, funkčních a bioaktivních materiálů a plazmatických technologií. Nejvyšší patro obsahuje kanceláře vědeckých pracovníků.

„Požadavky na konstrukční a technologické řešení jednotlivých laboratoří vycházejí z budoucího umístění vědeckých přístrojů, jejich velikosti, citlivosti na vibrace, citlivosti na čistotu a dalších,“ vysvětlují architekti.

Foto: V budově se nacházejí laboratoře, přednáškové místnosti a kanceláře vědeckých pracovníků

Lehký plášť

Pavilon ve své otevřené trojkřídlé dispozici svírá obdélníkový dvůr, který mohou pracovníci FZÚ a návštěvníci budovy využívat k odpočinku. Od ulice ho odděluje kovová konstrukce pro popínavé rostliny, která opakuje rastr aplikovaný na fasádách. Monolitický železobetonový skelet stavby je opláštěn především panely ze smaltovaného skla. „Část fasády v návaznosti na hlavní vstup je navržena jako zavěšená celoprosklená rastrová fasáda ze systémových hliníkových profilů tmavě šedé barvy,“ dodávají architekti.

Obvodový plášť pro pavilon FZÚ řešila stavební firma HINTON. „Jak je znát už na první pohled, tato zakázka patřila k těm velmi technicky náročným, na počet svých nevyřešených detailů musela rovněž proběhnout v krátkém čase. Dodávkou této zakázky byly sloupko-příčkové fasády systému Reynaers CW 50 HI, dále vložené dveře a okna do fasád systému Reynaers MasterLine8, k zasklení bylo použito tepelně izolačních trojskel, často o celkové tloušťce přesahující 50 mm. Pro neprůhledné výplně sloupko-příčkové fasády propojovacího krčku bylo použito lakovaných izolačních dvojskel do sestavy s tepelnou izolací. Pro izolační trojskla je dodržena hodnota Ug = 0,5 Wm2/K,“ vysvětluje Tomáš Pevný, výrobní ředitel Divize hliníkových fasád – HI okna HINTON.

Foto: Způsoby zasklení pro pavilon FZÚ řešila stavební firma HINTON

„Dominantou ze sloupko-příčkových fasád je vstupní fasáda, kterou zdobí prosklená markýza. Prostoru vstupu dodávají potřebný přísun světla světlíky, které jsou vybaveny střešními okny pro případné odvětrání,“ dodává. Maximální využití přirozeného denního světla v laboratořích a kancelářích oceňují i pracovníci FZÚ.

Za pozornost stojí také energetická náročnost budovy. „Návrh splňuje požadavky české legislativy na budovu s téměř nulovou spotřebou energie,“ říkají architekti. Na střeše budovy bylo instalováno množství technologií potřebných pro její provoz. Aby však nenarušovaly estetické vyznění stavby, nechali je architekti skrýt za kovovou žebrovanou zástěnu.

  • Ateliér: Bogle Architects
  • Země: Česká republika
  • Adresa: Pod Vodárenskou věží 2531/3, 182 00 Praha 8
  • Město: Praha
  • autor: EARCH.CZ *
  • publikováno: * 19. 12. 2022
  • zdroj: * Reklamní sdělení

Mohlo by vás zajímat

Generální partner
Hlavní partneři