
Trend japandi spojuje styl Japonska a Skandinávie. Objevil se i v domě za Brnem
Rodinný dům budoval developer, do interiérů ale promluvily architektky. Propojily v něm syrovost betonu s teplem přírodních materiálů. Vytvořily tak vzdušné bydlení, které je minimalistické, ale zároveň útulné.
EARCH.CZ , 5. 9. 2025 / Advertorial
Rodinný dům v Popůvkách u Brna je zvenčí dílem developera, jeho duši ale vtiskly architektky ze studia Atel!er. V interiéru propojily syrovost betonu s jemností přírodních povrchů a vytvořily nadčasové bydlení v duchu stylu japandi – kombinace japonské střídmosti a skandinávského „hygge“.
Materiály, které určují atmosféru
Charakter interiéru určují surové i ušlechtilé materiály, čisté linie a promyšlené detaily. Na nábytku se uplatnila dubová dýha. Dominantou se stal pohledový betonový strop. Ten měl být původně omítnutý, ale zanechal se v surové podobě, a tak po něm esteticky vedou rozvody osvětlení, obojí v černé barvě, takže ladí s antracitovými okny.

Do této skladby materiálů architektky zasadily i tvrzený kámen od Technistone, jehož vzhled připomíná přírodní mramor, ale zároveň nabízí odolnost vhodnou pro každodenní provoz. Architektky měly s materiálem už zkušenosti a v rodinném domě v Popůvkách ho použily hned na dvou místech – na kuchyňském ostrůvku a také v koupelně, kde z něj navrhly atypické umyvadlo do úzké niky.
„TechniStone je skvělý odolný materiál, který používáme rádi nejen do kuchyní vyššího standardu. V projektu Japandi interiér jsme z dekoru Crystal Calacatta Silva navrhli i umývátko do úzké koupelnové niky, kde nebylo možné použít běžnou typovou sanitu. Výsledný efekt prostor výrazně posunul,“ vysvětluje architektka Kateřina Horych. Na dekoru Crystal Calacatta Silvy se jí líbilo jeho středně výrazné žilkování. „V poslední době jsme si ale oblíbili také dekor Ambiente Light – nadčasový, živý ve své textuře. Z kraje letošního roku jsme ho navrhli použít v dalším projektu, který se brzy začne realizovat. V interiéru se bude opět opakovat na více plochách,“ dodává.

Funkční zónování
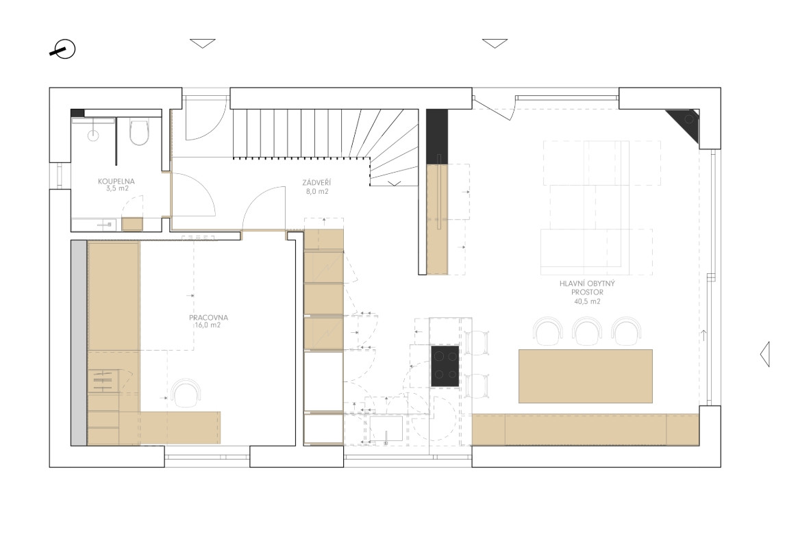
Studio Atel!er promlouvalo čistě do interiéru – exteriér rodinného domu už byl totiž daný, v rámci většího souboru ho zde budoval developer. Architektky se však k projektu dostaly včas a stihly tak ovlivnit i vnitřní dispozice. Pro výsledek se to stalo zásadním. Interiér domu charakterizují vzdušné prostory, členěné do funkčních zón.
Prostor pomohly rozdělit například lamely. Objevují se na velkých skříňových plochách, které v sobě skrývají úložné prostory, ale i vstupy do koupelny nebo pracovny. Další najdeme na opěradle lavice při jídelním stole.

„Kromě dekoru mramoru od Technistone, který vytváří jemný kontrast k surovému betonovému stropu, jsme v interiéru pracovali s velkoformátovými plochami sahajícími od podlahy až ke stropu. Ty slouží jako vizuální protiváha výrazné stropní textuře. Zároveň nám pomáhají akusticky členit prostor pomocí zakomponovaných lamel, které mají i praktickou funkci – například ukrývají vzduchotechniku za kuchyní nebo sklopné háčky ve vstupních prostorách,“ komentuje Kateřina Horych nejen práci s lamelami.

Architektky z Atel!er se vyhýbají krátkodobým trendům a místo nich volí přístupy, které obstojí v čase. Patří mezi ně také práce s odolnými materiály, které vydrží a časem získávají patinu – není třeba je po pár letech měnit, což snižuje nadprodukci. V případě Japandi interieru se mezi tyto materiály řadí například přírodní dýha, se kterou byl vyroben kvalitní zpracovaný nábytek na míru, trvanlivá polyuretanová podlaha nebo také tvrzený kámen.
Více k tématu
Architektky své tíhnutí k nadčasovosti promítly rovněž do úrovně prostorového uspořádání. Jednotlivé prostory od sebe neoddělují pouze dveře, ale také šikovně rozmístěné příčky. Výsledkem je praktické a projasněné bydlení, které ale nepozbývá na útulnosti. „Je nám blízký tzv. soft minimalismus – tedy čisté linie a přírodní materiály, ale v měkkém, přívětivém pojetí,“ shrnuje Kateřina Horych. Na realizaci Atel!er v Popůvkách je to vidět.
- Autoři: Kateřina Horych
- Ateliér: Atel!er
- Spolupráce: Lucie Streďanská
- Země: Česká republika
- Město: Popůvky
- Realizace: 01/2023–03/2024
- Fotograf: Jan Martinek
- Použité produkty TechniStone: Crystal Calacatta Silva
- Dodavatelé: Dřevodílo Rousínov, v.d., Stavby Šmíd, Šolc design, Granit spol. s r.o